Descrição
Um Sobrado Contemporâneo para Viver com Plenitude
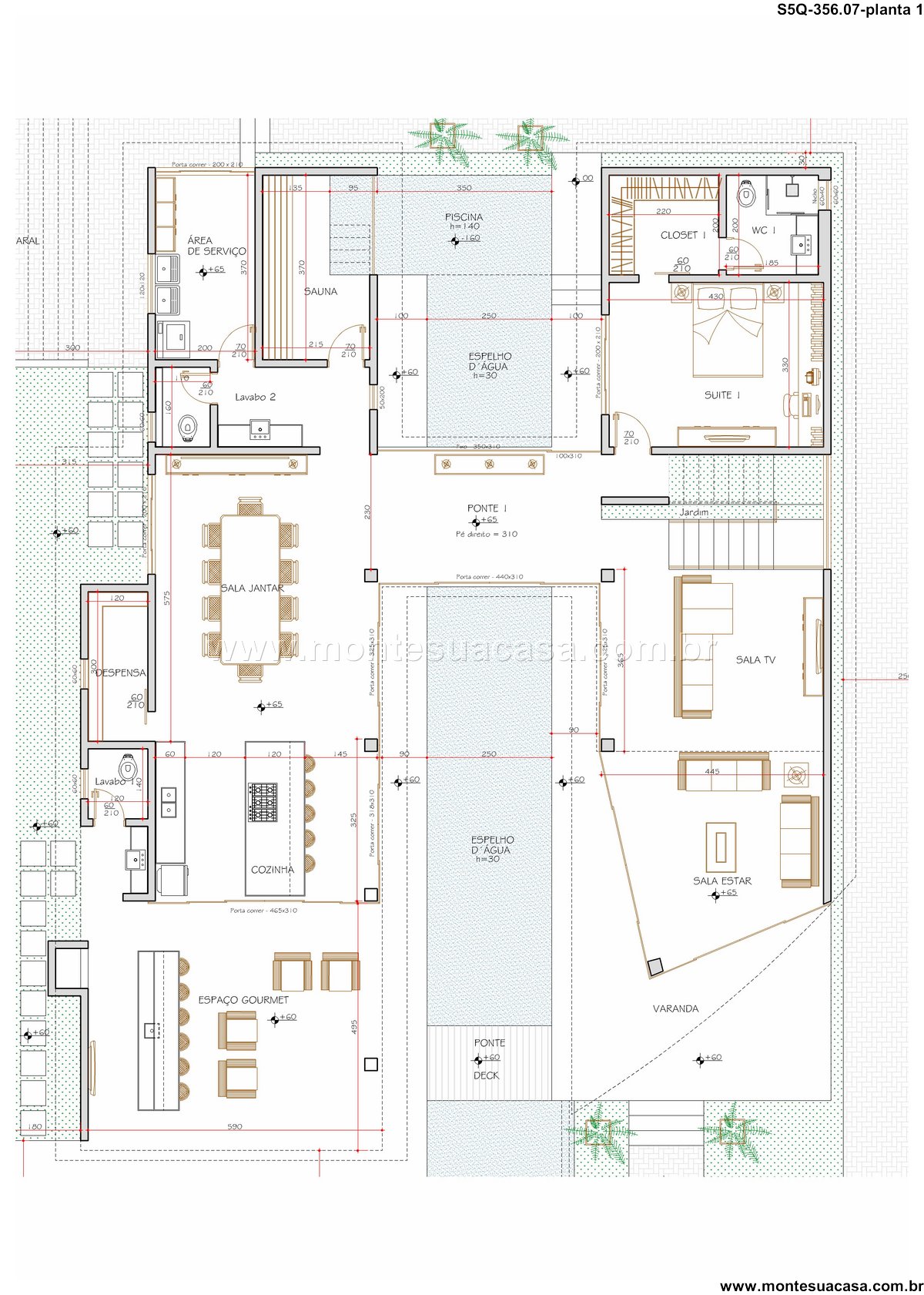
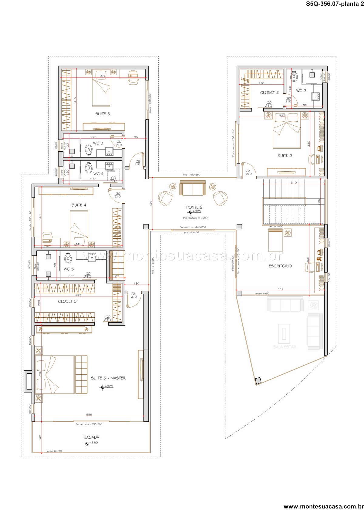
Este projeto de sobrado moderno, com 356.07 metros quadrados, é uma celebração do espaço familiar e do lifestyle contemporâneo. Projetado para oferecer conforto incomparável, a residência apresenta uma planta inteligente que distribui cinco quartos de forma harmoniosa, garantindo privacidade e funcionalidade para todos os moradores. A arquitetura valoriza linhas puras e volumes bem definidos, criando uma identidade visual forte e atemporal que se integra perfeitamente ao seu entorno.
A fachada do sobrado já impressiona pela sua composição equilibrada de materiais e pela generosidade de seus vãos. Grandes janelas e aberturas estratégicas não apenas compõem a estética moderna, mas também possuem uma função crucial: permitir a entrada abundante de luz natural e promover uma ventilação cruzada eficiente. Dessa forma, a casa respira, criando um ambiente interno sempre fresco, iluminado e conectado com os jardins externos, verdadeiramente integrado à natureza.
Espaços Sociais Integrados e Funcionais
Ao adentrar a residência, você é recebido por uma ampla área social que flui naturalmente. A sala de estar, espaçosa e aconchegante, conecta-se diretamente à área gourmet, um verdadeiro coração para encontros e celebrações. Este espaço é completo, equipado para transformar qualquer refeição em um momento especial. A integração proposital entre os ambientes potencializa a sensação de amplitude e favorece a convivência, seja em noites familiares tranquilas ou em grandes reuniões com amigos.
Os cinco quartos foram meticulosamente planejados para serem santuários de descanso. O suíte master é um refúgio de luxo, oferecindo amplo espaço, closet organizado e um banheiro que funciona como um spa privativo. Os demais quartos, igualmente confortáveis, atendem perfeitamente às necessidades de filhos, hóspedes ou podem ser adaptados como escritório e quarto de estudos, garantindo versatilidade para as demandas da vida moderna.
Conforto, Lazer e Sustentabilidade
O projeto vai além do básico, incorporando áreas de lazer que elevam a qualidade de vida. Um jardim privativo oferece um pedaço de natureza para momentos de tranquilidade, enquanto a piscina se torna o ponto central para o lazer nos dias quentes. A arquitetura também incorpora princípios sustentáveis, com previsão para sistemas de aquecimento solar e reaproveitamento de água, demonstrando um compromisso com o futuro e com a eficiência dos recursos.
Cada detalhe deste sobrado de 5 quartos foi pensado para criar uma experiência de morar única. A escolha de acabamentos premium, a iluminação cuidadosamente estudada e o paisagismo integrado completam um projeto que é muito mais que uma casa. Esta residência é a materialização de um estilo de vida moderno, sofisticado e em perfeita sintonia com o bem-estar de seus moradores.



















Avaliações
Não há avaliações ainda.