Descrição
Esta residência de 145.99m2 foi meticulosamente planejada para oferecer conforto, funcionalidade e um apurado senso estético para famílias que necessitam de amplo espaço. O projeto arquitetônico valoriza a integração entre os ambientes, promovendo uma fluidez que amplia a sensação de espaço e convivência. A fachada contemporânea impressiona à primeira vista com suas linhas clean e composição de materiais de alta qualidade. Cada detalhe foi cuidadosamente desenhado para criar uma identidade visual única e moderna, garantindo um lar que é tanto um refúgio pessoal quanto um espaço ideal para receber.
Conceito e Distribuição Interna
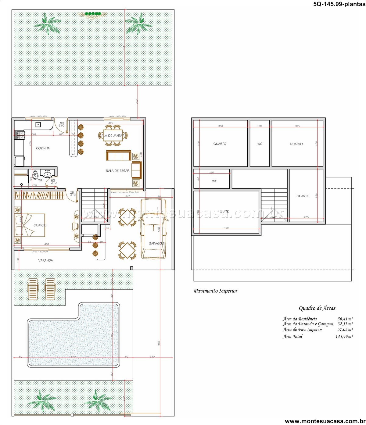
A planta inteligente distribui harmonicamente os cinco quartos, incluindo uma suíte master espaçosa. Os ambientes sociais são integrados, conectando a sala de estar e de jantar a uma área gourmet. Dessa forma, a casa se torna perfeita para encontros familiares e eventos sociais. A circulação foi otimizada para proporcionar privacidade aos dormitórios, criando zonas bem definidas. A iluminação natural é uma prioridade, com grandes janelas e aberturas estrategicamente posicionadas.
Fachada e Integração com o Exterior
A fachada se destaca pelo uso de texturas e volumes que criam um jogo de luz e sombra fascinante. Acabamentos premium e a escolha de paleta de cores moderna conferem personalidade e charme ao conjunto. A arquitetura busca uma transição suave entre o interior e o exterior, estendendo a área de vida para o jardim. Este design não só embeleza o lar, mas também valoriza todo o terreno.
Conforto e Sustentabilidade
O projeto incorpora soluções pensadas para o bem-estar e a eficiência energética. O sistema de ventilação cruzada assegura o conforto térmico em todos os cômodos durante o ano todo. Além disso, previu-se a instalação de sistemas sustentáveis, como aquecimento solar e reaproveitamento de águas pluviais. Essas características resultam em uma residência que alia luxo a uma consciência ambiental, reduzindo custos de manutenção.









Avaliações
Não há avaliações ainda.