Descrição
278.72m² Casa 3 Quartos Projeto Personalizado
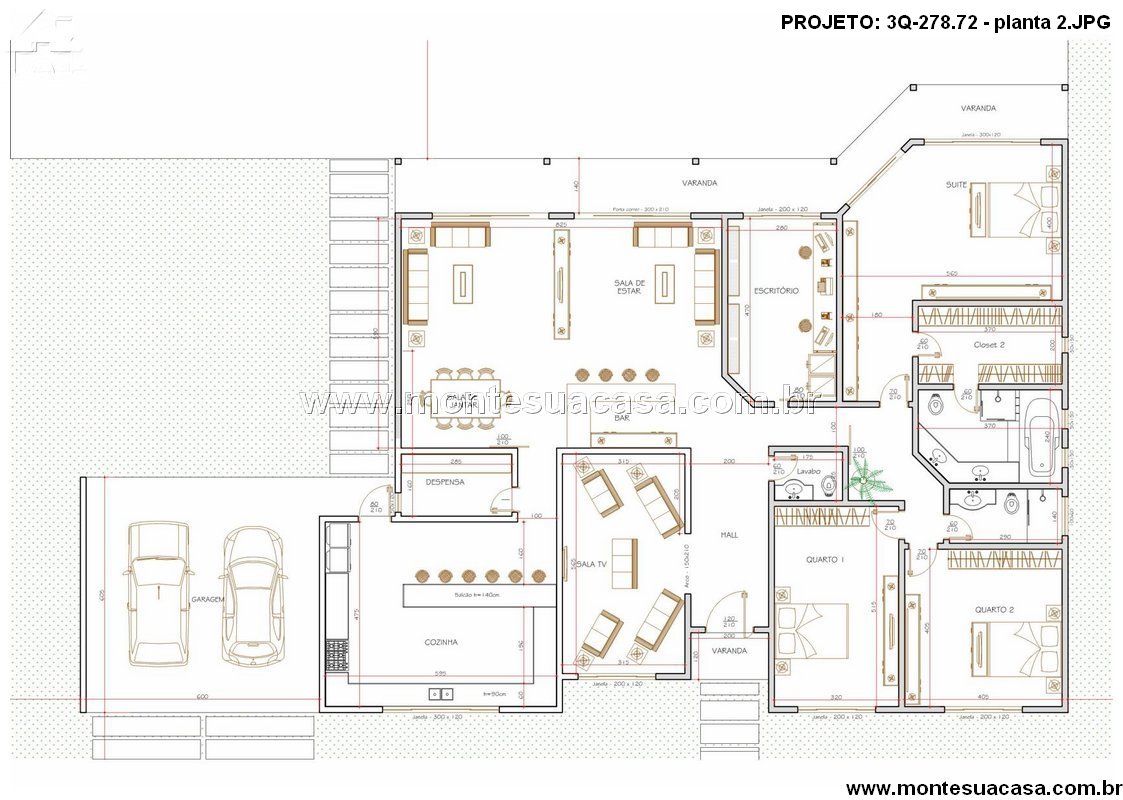
Descubra a Excelência em um Projeto Residencial de 278.72m²
Este projeto arquitetônico de 278.72m² redefine o conceito de lar moderno e funcional. Ideal para famílias que buscam conforto, praticidade e sofisticação, a residência apresenta um layout inteligente que maximiza cada metro quadrado. Além disso, os ambientes são integrados para promover uma sensação de amplitude e fluidez, criando o cenário perfeito para momentos inesquecíveis.
Distribuição Inteligente e Ambientes Conectados
A planta bem estudada distribui três quartos, incluindo uma suíte, de forma estratégica para garantir privacidade e conveniência. A área de serviço, com lavanderia e WC independente, assim como o quarto de empregada, oferecem praticidade no dia a dia. A varanda gourmet, por exemplo, se torna um espaço de entretenimento perfeito, integrando o interior com o exterior de maneira harmoniosa.
Conforto e Funcionalidade em Todos os Espaços
Cada detalhe foi meticulosamente planejado para elevar sua qualidade de vida. Os banheiros sociais e íntimos apresentam um design que prioriza o bem-estar. Da mesma forma, a área de lavanderia garante eficiência nas tarefas domésticas. A varanda, por outro lado, amplia a área de convívio, sendo ideal para receber amigos e familiares.
Um Estilo de Vida que Inspira
Este projeto não é apenas uma casa, mas a materialização de um estilo de vida. Ele oferece a base para que você crie memórias em ambientes aconchegantes e elegantes. Portanto, você investe em um espaço que atende a todas as necessidades da família moderna, combinando estética e funcionalidade de forma excepcional. Finalmente, realize o sonho da casa própria com um projeto que entende e supera suas expectativas.
























Avaliações
Não há avaliações ainda.