Descrição
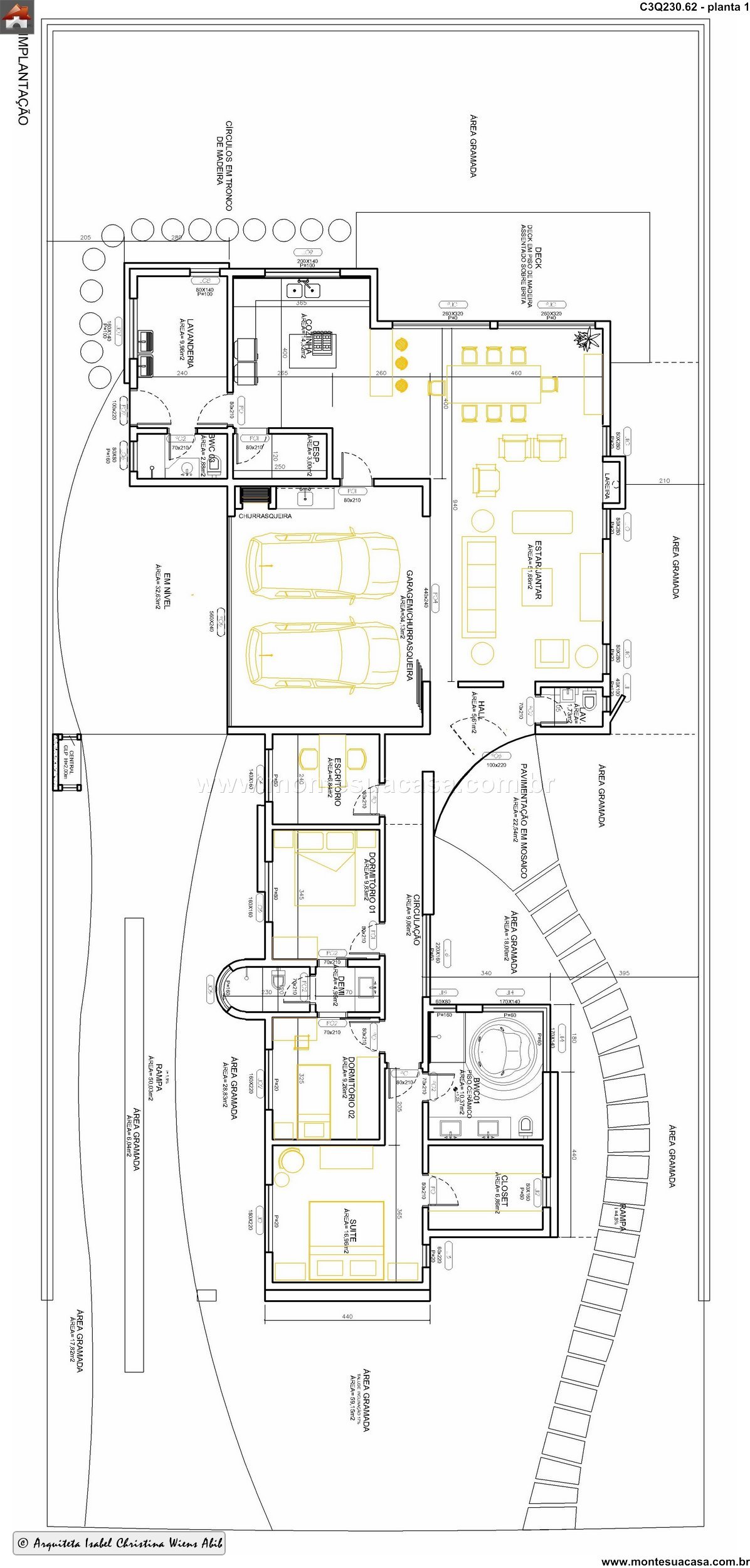
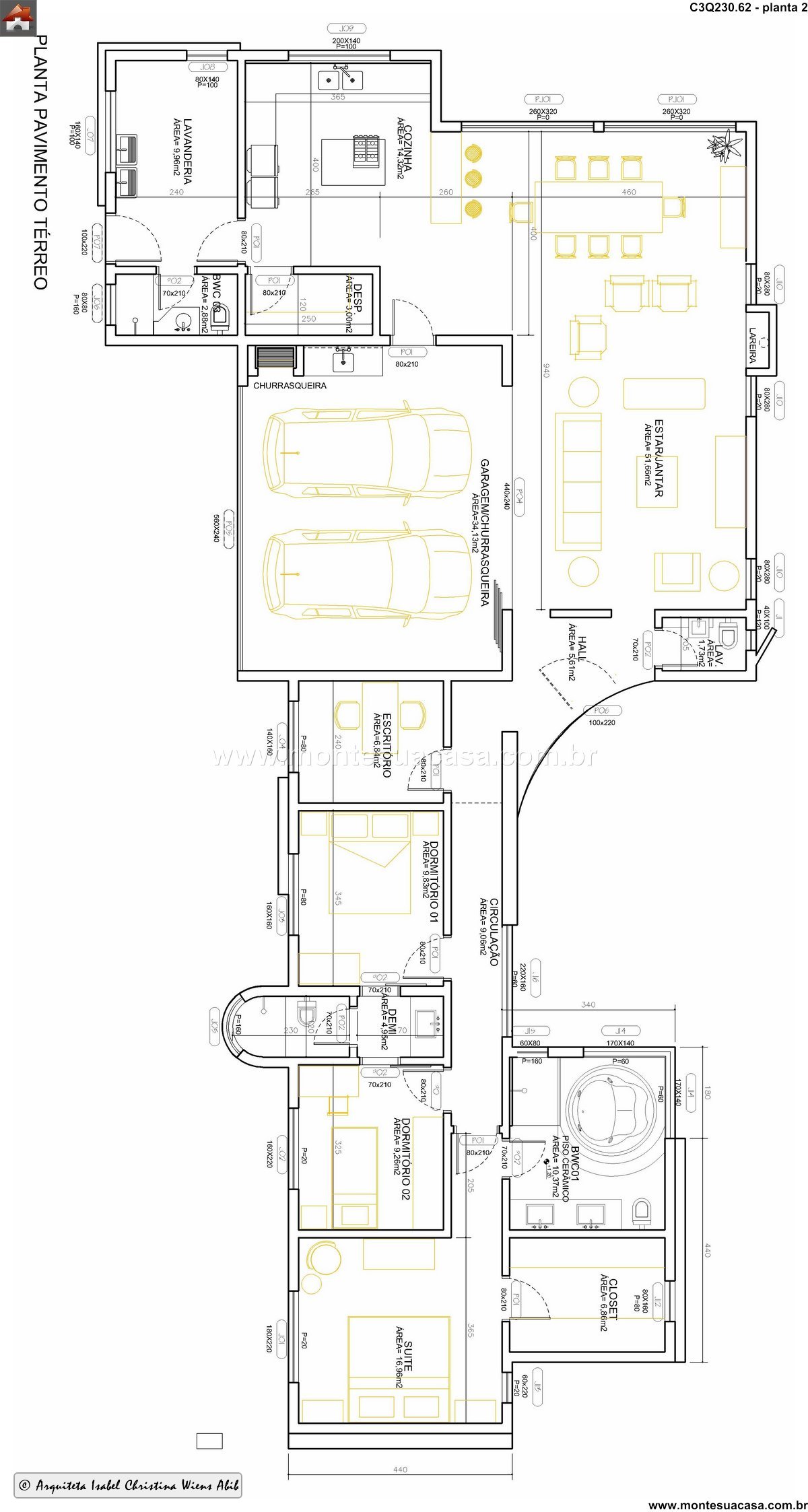
Casa térrea com 3 quartos e design contemporâneo Este projeto de 230,62m² apresenta uma residência térrea moderna, pensada para oferecer conforto, funcionalidade e estética refinada. A fachada combina linhas retas, volumes bem definidos e materiais como vidro, madeira e alvenaria branca, criando uma composição elegante e acolhedora. O paisagismo valoriza o entorno com áreas gramadas, árvores e caminhos em mosaico, promovendo integração com a natureza.
Ambientes sociais integrados e iluminados A área social é composta por sala de estar e jantar integradas, com amplas aberturas em vidro que conectam o interior ao deck externo. Essa configuração favorece a ventilação cruzada e a entrada de luz natural, tornando os ambientes mais agradáveis. A cozinha funcional se conecta à lavanderia e à área de serviço, otimizando a rotina doméstica com praticidade.
Garagem coberta com churrasqueira e espaço gourmet A garagem coberta para dois veículos também abriga uma churrasqueira, formando um espaço gourmet ideal para receber amigos e familiares. O acesso ao interior da casa é feito por um hall com design marcante, que combina madeira e vidro para criar uma entrada sofisticada.
Área íntima com suíte master e escritório A planta contempla três dormitórios, sendo dois quartos padrão e uma suíte master com closet e banheiro privativo. Há também um escritório reservado, perfeito para trabalho remoto ou estudos. A circulação interna é fluida, conectando todos os ambientes com harmonia e funcionalidade.
Conforto e estilo em cada detalhe Este projeto é ideal para quem busca uma casa térrea com três quartos, espaço gourmet e arquitetura contemporânea. A combinação entre estética, conforto e eficiência torna esta residência uma excelente escolha para famílias modernas.












Avaliações
Não há avaliações ainda.