Descrição
Um Sobrado Contemporâneo para a Família
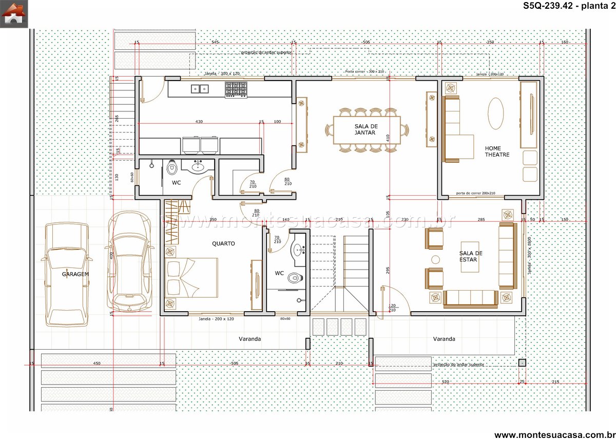
Este projeto de sobrado moderno, com 239.42 metros quadrados, é uma excelente opção para quem busca um lar com espaço amplo e bem distribuído. A residência conta com cinco quartos, atendendo perfeitamente às necessidades de uma família moderna. A fachada, composta por linhas retas e volumes bem definidos, estabelece um diálogo elegante com a arquitetura contemporânea. Além disso, os ambientes foram pensados para proporcionar conforto e praticidade no dia a dia.
Conforto e Privacidade nos Dormitórios
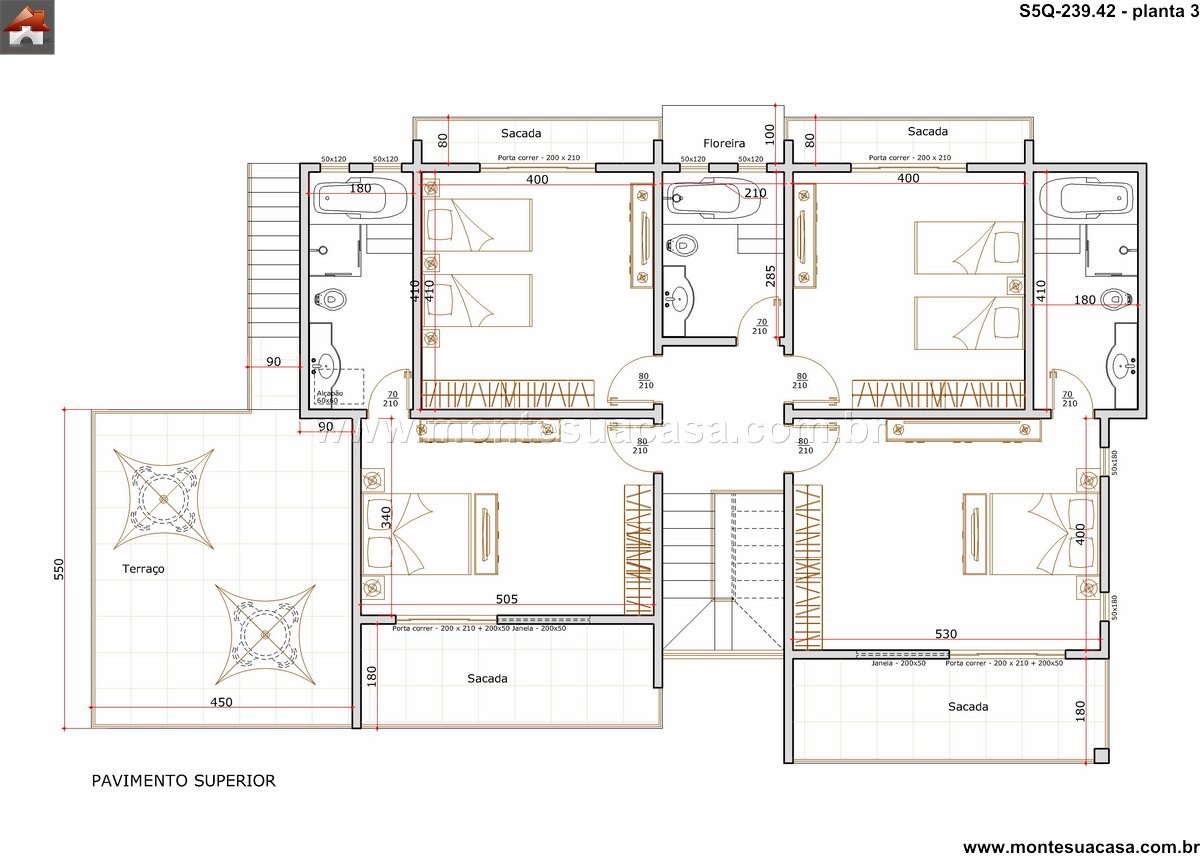
O projeto prioriza o bem-estar familiar ao incluir cinco quartos, garantindo espaço e privacidade para todos. Destaque para a suíte júnior, que oferece um retreat privativo com dimensões generosas. Os demais dormitórios são igualmente aconchegantes e podem ser facilmente adaptados para atender crianças, adolescentes ou servir como home office. A localização dos quartos no andar superior assegura um ambiente tranquilo e arejado, longe da movimentação das áreas sociais.
Áreas Sociais Integradas e Entretenimento
O coração da casa é a ampla área social, que integra perfeitamente a sala de estar e a sala de jantar. Este layout aberto potencializa a sensação de amplitude e facilita a interação entre familiares e amigos durante reuniões. Um dos grandes diferenciais deste projeto é o home theatre dedicado, criando uma experiência cinematográfica imersiva sem sair de casa. Para completar o conceito de entretenimento, a varanda gourmet se conecta aos ambientes, sendo o local ideal para churrascos e confraternizações.
Funcionalidade no Espaço Gourmet e Garagem
A varanda gourmet é um espaço versátil, perfeito para quem gosta de receber e cozinhar ao ar livre. Sua integração com a área interna fluida promove uma circulação descomplicada. A garagem, por sua vez, oferece praticidade para o dia a dia, com um espaço definido que acomoda veículos com comodidade. Dessa forma, a casa combina lazer e funcionalidade em um só lugar, criando um ambiente completo e acolhedor para todos os momentos.
















Avaliações
Não há avaliações ainda.