Descrição
Conceito e Distribuição
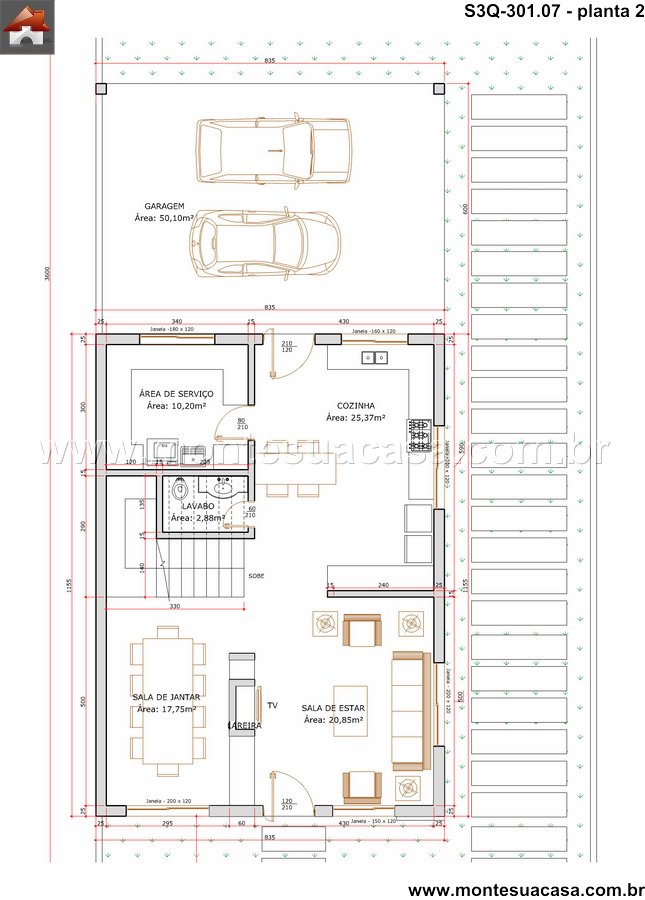
Este sobrado de 301.07m² apresenta uma planta inteligente que organiza os ambientes em diferentes pavimentos, garantindo privacidade e funcionalidade para a família. O projeto aproveita o espaço de forma eficiente, criando uma jornada fluida desde a área social vibrante até os recantos privativos de descanso. A garagem espaçosa dá as boas-vindas, enquanto a área de serviço independente assegura praticidade no dia a dia. A circulação entre os cômodos foi minuciosamente planejada para criar uma sensação de continuidade e amplitude em toda a residência.
Área Social e Convívio
No pavimento térreo, a vida social se desenrola em ambientes integrados e generosos. A sala de estar e a sala de jantar se conectam visualmente, formando um grande espaço de entretenimento e reuniões familiares. Esta configuração promove uma atmosfera acolhedora e perfeita para receber amigos. A área gourmet anexa amplia as possibilidades de lazer, permitindo refeições descontraídas. A varanda oferece uma extensão natural deste ambiente, ideal para momentos de relaxamento ao ar livre. A cozinha, bem posicionada, mantém uma relação prática com a área de jantar e a área de serviço.
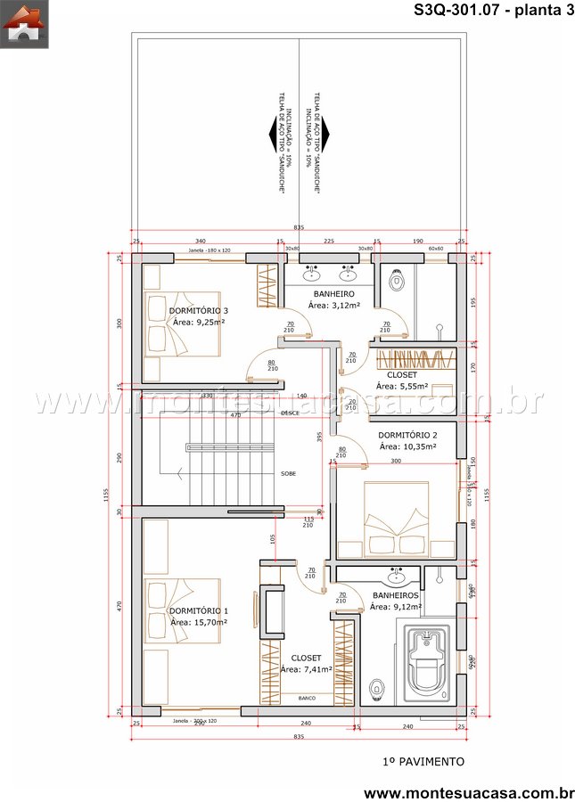
Suítes e Área Íntima
O pavimento superior é um santuário dedicado ao descanso e à privacidade, abrigando três dormitórios, incluindo uma suíte master. A suíte principal proporciona um refúgio completo, com seu banheiro privativo e closet integrado, assegurando conforto e conveniência. Os demais dormitórios compartilham um banheiro bem localizado, atendendo com comodidade a todos os moradores. A presença de um closet adicional no andar superior oferece amplo armazenamento, mantendo a organização da casa. Os ambientes íntimos são iluminados e ventilados, criando um atmosfera serena para recarregar as energias.
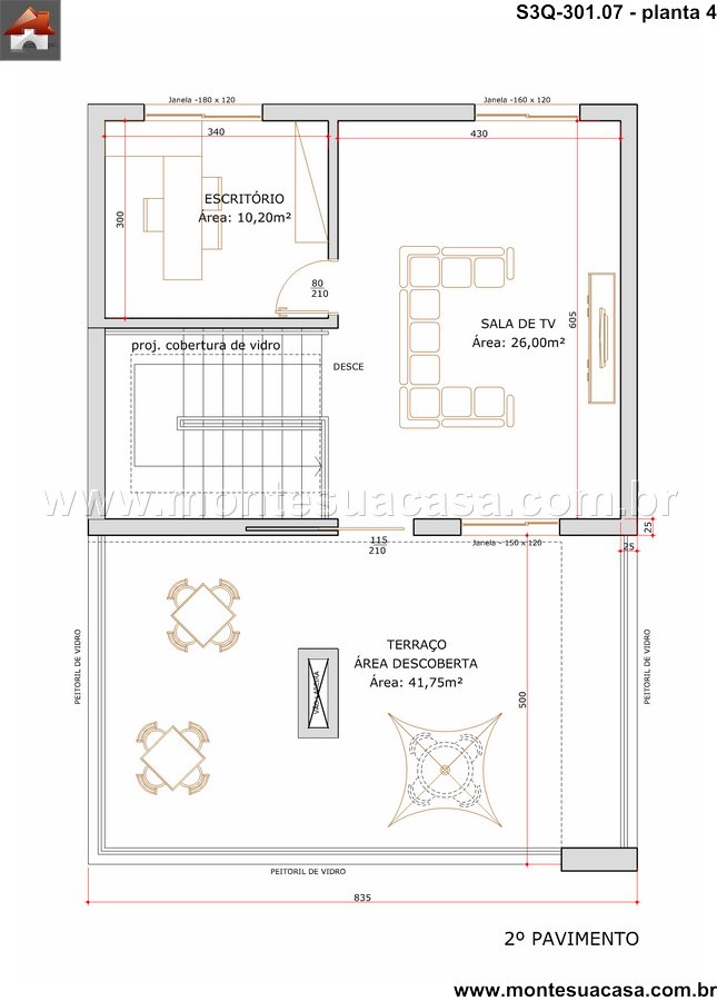
Integração e Lazer
O projeto valoriza a integração entre os espaços internos e externos, promovendo uma vida familiar harmoniosa. A área de serviço, com seu próprio lavabo, garante que as tarefas domésticas não interfiram no convívio. A garagem para dois carros resolve uma necessidade prática sem comprometer a estética. Cada metro quadrado foi pensado para oferecer bem-estar, desde os momentos de diversão na sala de TV até a tranquilidade nos quartos. Este sobrado é mais que uma casa, ele é um convite para uma vida completa e cheia de momentos especiais.










Avaliações
Não há avaliações ainda.