Descrição
Projeto de Sobrado Geminado Moderno
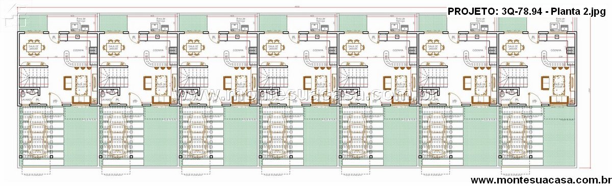
O projeto 3Q-78.94 apresenta um conjunto de sobrados geminados com arquitetura moderna, ideal para quem busca um investimento seguro e de alta rentabilidade. Com 78,94m² de área construída, o projeto foi desenvolvido para otimizar o espaço e proporcionar conforto em cada ambiente. Seu design contemporâneo combina linhas retas, revestimentos em pedra natural e varandas com guarda-corpo de vidro, transmitindo sofisticação e elegância.
Distribuição Interna Funcional
No térreo, o sobrado conta com sala de estar integrada à sala de jantar, criando um ambiente espaçoso e acolhedor. A cozinha em conceito aberto permite maior interação entre os moradores, e o lavabo complementa a área social com praticidade. A lavanderia foi posicionada de forma estratégica nos fundos, garantindo ventilação natural e fácil acesso.
A garagem coberta acomoda um veículo e inclui pergolado de madeira, que valoriza a fachada e oferece um toque natural ao conjunto.
Área Íntima com Três Dormitórios
No pavimento superior, o projeto dispõe de três dormitórios bem distribuídos, incluindo uma suíte com sacada privativa, ideal para momentos de relaxamento. Os demais quartos compartilham um banheiro completo, garantindo conforto para toda a família. As aberturas amplas proporcionam excelente iluminação e ventilação natural, tornando os ambientes agradáveis durante todo o ano.
Solução Ideal para Condomínios
O modelo 3Q-78.94 é perfeito para implantação em condomínios horizontais, loteamentos urbanos ou áreas de expansão residencial. O projeto pode ser replicado em sequência, otimizando o aproveitamento do terreno e reduzindo custos de construção. A fachada moderna com elementos em pedra e madeira harmoniza o conjunto e cria uma identidade visual marcante para o empreendimento.
Eficiência e Estilo
Com foco na funcionalidade, estética e viabilidade construtiva, este projeto é uma excelente escolha tanto para construtores quanto para famílias que desejam morar em um sobrado confortável e elegante. Cada detalhe foi pensado para unir beleza, praticidade e bom gosto, resultando em um projeto versátil que se adapta a diferentes estilos de vida.
















Avaliações
Não há avaliações ainda.