Descrição
Um Conceito Aconchegante e Integrado
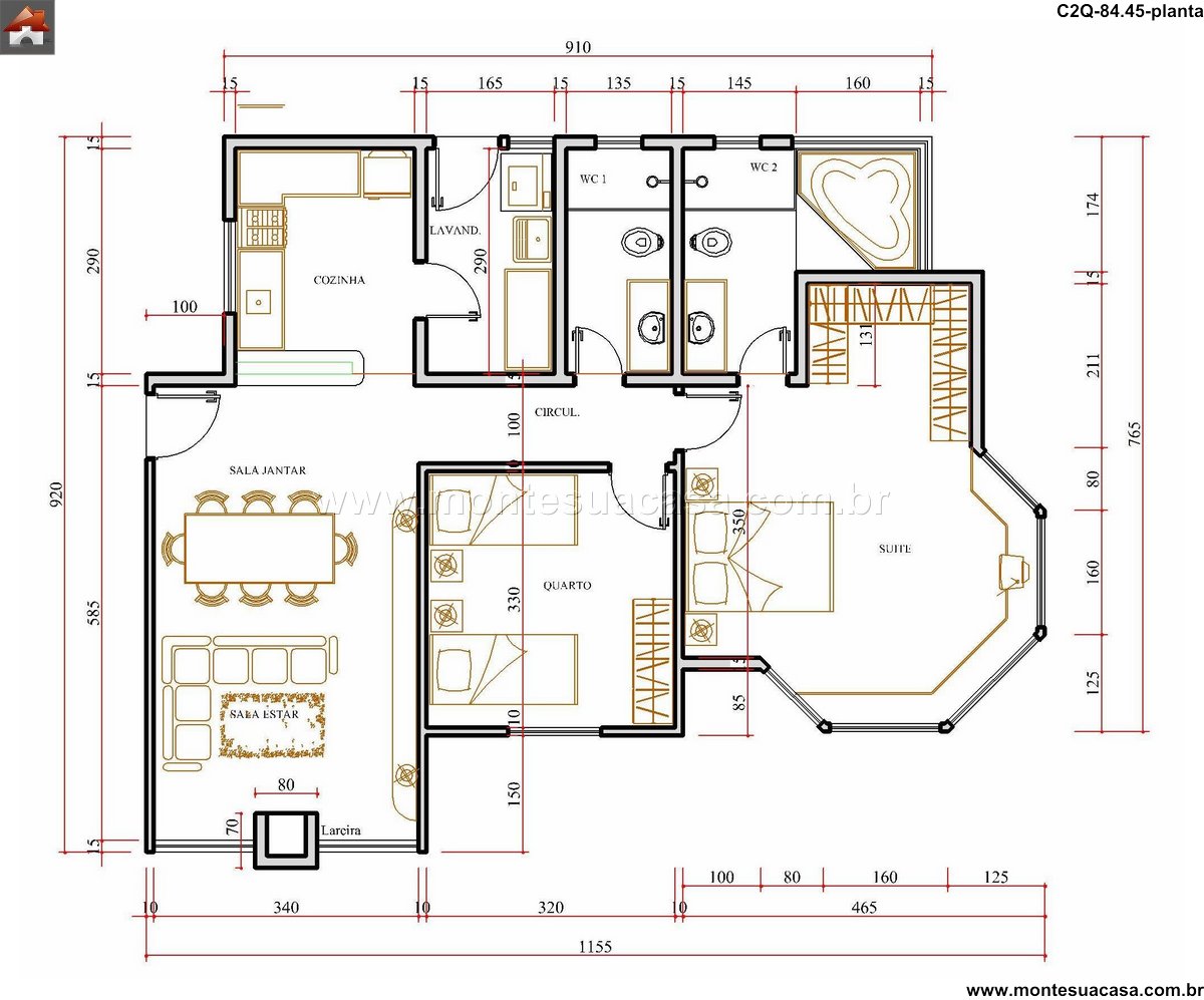
Este projeto de casa térrea, compacta e extremamente funcional, foi desenvolvido para maximizar o conforto em seus 84.45 metros quadrados. A planta inteligente prioriza a integração entre os ambientes, criando uma sensação de amplitude e fluidez. A circulação bem resolvida conecta todos os cômodos sem desperdício de espaço, garantindo praticidade no dia a dia. A fachada, com seus 5 metros, apresenta um desenho contemporâneo que esconde um interior planejado para oferecer tudo que uma família precisa, com um quarto extra e uma suíte luxuosa.
O Coração da Casa: Área Social
A área social é o grande destaque deste projeto, unindo sala de estar, sala de jantar e cozinha em um único ambiente integrado e aconchegante. A sala de estar, com seus 15 metros quadrados, ganha um charme extra com a presença de uma lareira, tornando-se o ponto perfeito para reunir a família em noites frias. A cozinha americana, com 5.15 metros, mantém-se aberta à sala, permitindo interação total durante o preparo das refeições. A ilha se torna um elemento central, ideal para cafés da manhã rápidos ou encontros descontraídos.
Conforto no Setor Íntimo
O setor íntimo foi cuidadosamente planejado para ser um refúgio de descanso. A suíte master é um verdadeiro oásis, indo além do convencional ao incluir uma banheira de imersão, oferecendo um spa particular para relaxamento após um longo dia. O segundo quarto, bem dimensionado, é versátil e pode servir perfeitamente como quarto de hóspedes, escritório home office ou quarto infantil. Ambos os ambientes garantem privacidade e tranquilidade, separados da agitação da área social.
Funcionalidade e Toques Finais
A funcionalidade da casa é completada por uma área de serviço completa, que abriga com organização as tarefas domésticas, mantendo a limpeza e a ordem dos outros cômodos. A lavanderia independente assegura ainda mais praticidade. Cada detalhe deste projeto de 84.45m² foi pensado para criar um lar que combina eficiência, conforto e um toque de luxo, representando um excelente custo-benefício para quem busca uma casa completa, aconchegante e pronta para morar.











Avaliações
Não há avaliações ainda.