Descrição
Planta inteligente para terrenos estreitos
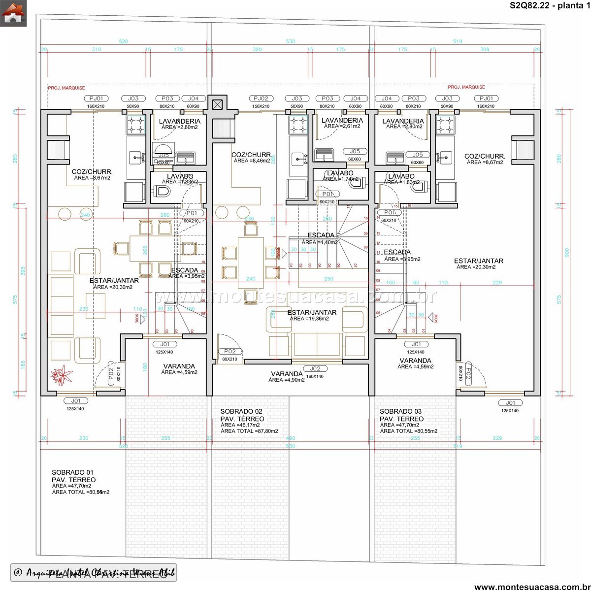
Este sobrado moderno de 80,55m² apresenta uma solução direta e funcional para quem busca eficiência máxima em lotes compactos. A distribuição elimina desperdícios e prioriza o uso real dos ambientes. A fachada limpa, com linhas retas e varandas com guarda-corpo em vidro, reforça a estética contemporânea e transmite leveza. A composição frontal cria identidade visual consistente, perfeita para condomínios ou séries de unidades geminadas.
Integração total no pavimento térreo
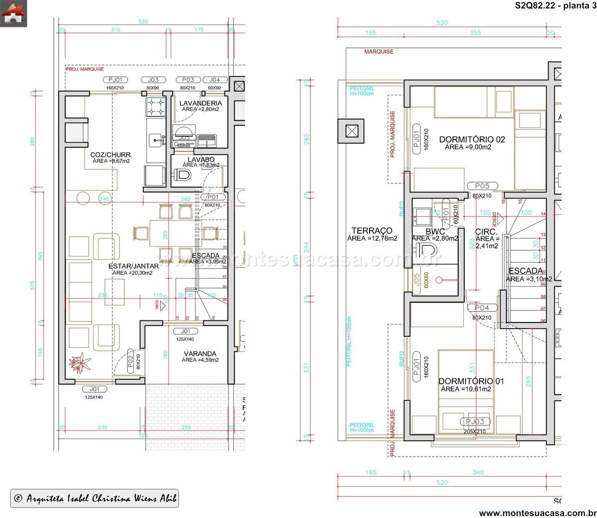
O térreo reúne estar, jantar e cozinha com churrasqueira em um único fluxo contínuo. Essa união amplia a sensação espacial e melhora a convivência. A escada central organiza o layout, enquanto o lavabo e a lavanderia ficam próximos à área de serviço, tornando o dia a dia mais prático. A varanda posterior agrega um espaço externo privativo que valoriza ventilação, iluminação e bem-estar, algo essencial em sobrados compactos.
Privacidade e conforto no pavimento superior
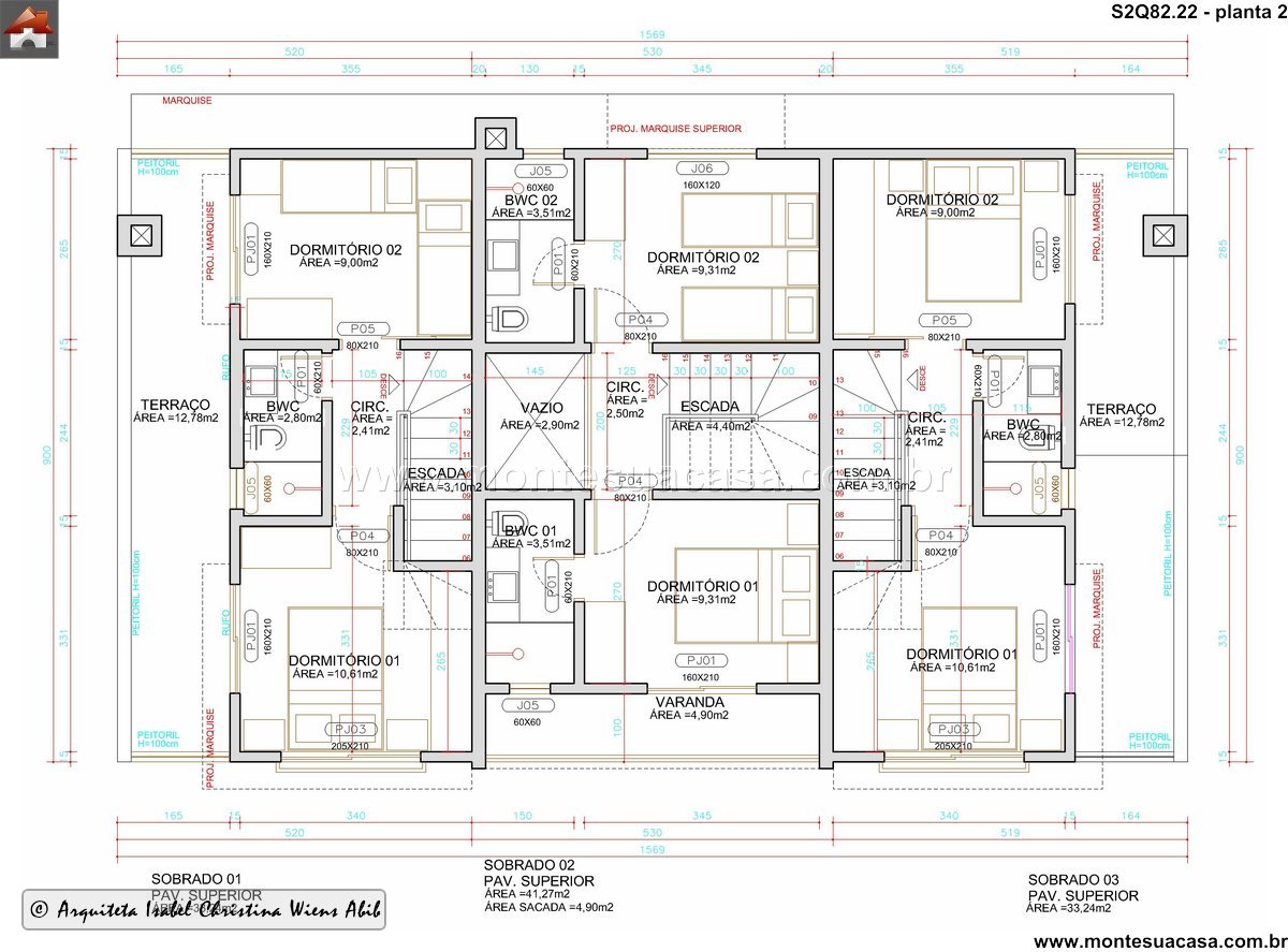
No piso superior, o projeto resolve a zona íntima com equilíbrio. Os dois dormitórios têm proporções adequadas, boa iluminação natural e aberturas bem posicionadas. O dormitório principal possui acesso direto a uma varanda ampla, que funciona como extensão do ambiente e cria uma sensação de amplitude. O segundo quarto, também generoso, garante conforto para filhos, hóspedes ou uso como escritório. Banheiros completos atendem os dormitórios e mantêm a rotina organizada.
Terraço funcional e valorização do uso externo
Um dos grandes diferenciais deste sobrado é o terraço posterior no pavimento superior. Com 12,78m², o espaço oferece possibilidades reais: área para descanso, mini-deck, jardim elevado ou espaço gourmet compacto. Em sobrados pequenos, esse tipo de ambiente transforma a experiência do morador, criando uma área externa reservada e valorizada, longe da rua e com boa privacidade.
Estética moderna e manutenção simplificada
O conjunto de volumes retos, platibandas elevadas e marquise frontal resulta em uma composição limpa e atemporal. O uso moderado de elementos decorativos reduz custos e facilita manutenção, sem comprometer o impacto visual. O projeto mantém proporções equilibradas, harmoniza vidro, revestimentos claros e aberturas bem dimensionadas, garantindo desempenho térmico e visual coerente com tendências atuais.
Solução completa para construção viável e eficiente
Este sobrado de 80,55m² é direto, prático e objetivo. Ele atende famílias pequenas, casais ou investidores que buscam projetos modernos, bonitos e financeiramente viáveis. A circulação bem organizada, a setorização correta e os aproveitamentos externos tornam o projeto superior a muitos modelos maiores, entregando funcionalidade real sem exageros.















Avaliações
Não há avaliações ainda.