Descrição
Este projeto arquitetônico apresenta um condomínio exclusivo com 7 sobrados de 78,94m² cada, planejados para oferecer praticidade, conforto e estilo moderno. Cada unidade foi desenvolvida com foco na funcionalidade e na integração dos ambientes, criando espaços ideais para famílias que valorizam qualidade de vida em um ambiente seguro e bem estruturado.
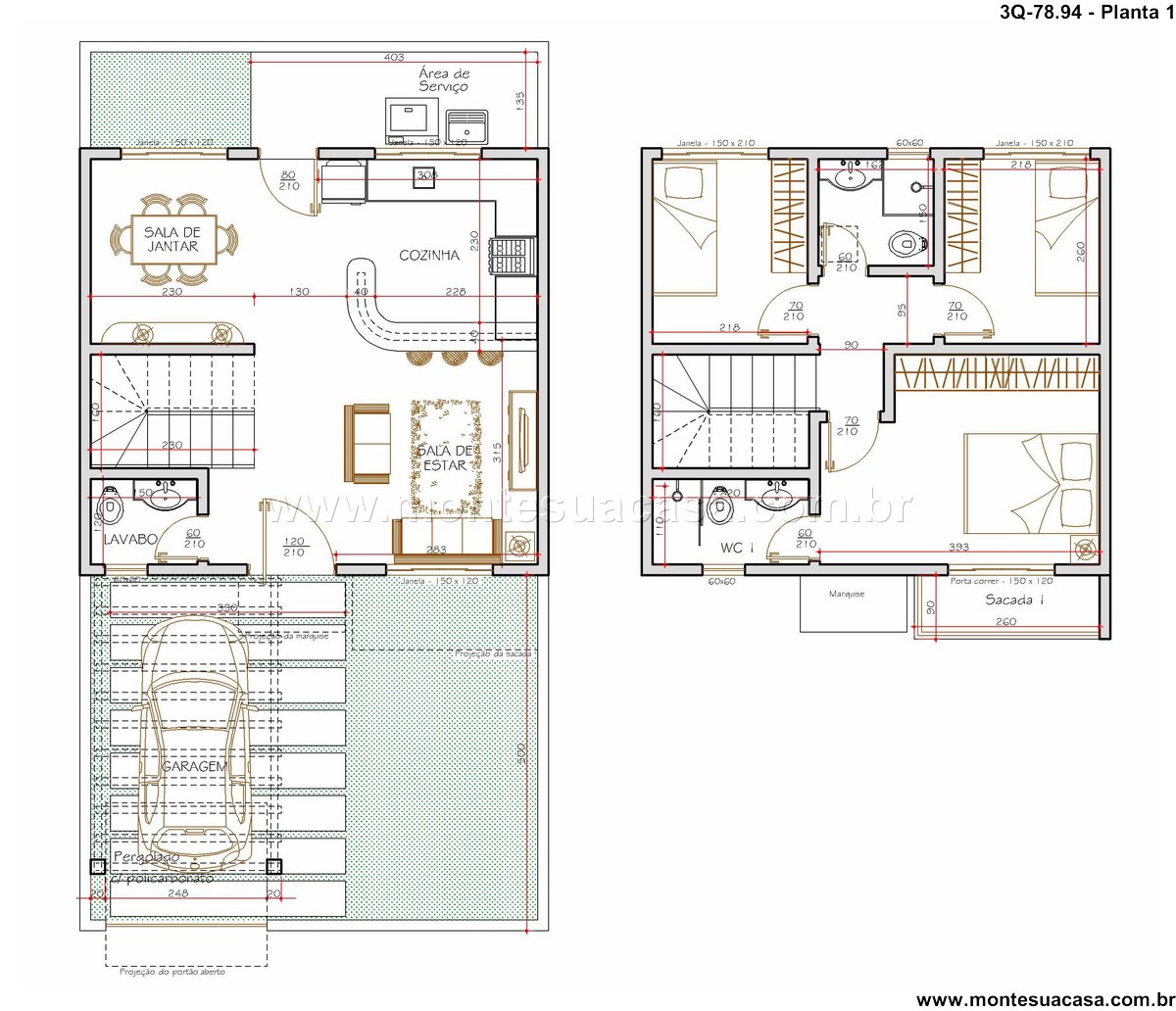
Distribuição dos Ambientes
Os sobrados contam com dois quartos bem dimensionados, garantindo privacidade e conforto aos moradores. A área social, composta por sala de estar e cozinha integrada, favorece a convivência e proporciona uma atmosfera acolhedora. A disposição inteligente dos cômodos otimiza cada metro quadrado, tornando os sobrados compactos e eficientes.
Estilo e Fachada
A fachada dos sobrados combina linhas retas e elementos contemporâneos, transmitindo sofisticação e modernidade. O uso de materiais atuais, como vidro e revestimentos texturizados, reforça a identidade arquitetônica e valoriza o conjunto do condomínio.
Sustentabilidade e Eficiência
O projeto privilegia iluminação natural e ventilação cruzada, reduzindo a necessidade de energia artificial. Essa abordagem sustentável contribui para um ambiente mais saudável e econômico, alinhado às tendências da arquitetura moderna.
Espaços Externos e Condomínio
O condomínio oferece áreas comuns que podem ser adaptadas para lazer, como jardins ou espaços de convivência. A organização das unidades garante privacidade entre os sobrados, ao mesmo tempo em que promove integração comunitária. Essa configuração torna o projeto ideal para famílias que buscam segurança, praticidade e bem-estar.
Com design inteligente e soluções funcionais, este condomínio com 7 sobrados de 78,94m² cada representa uma excelente opção para quem deseja morar em um espaço moderno, compacto e planejado para o futuro.
















Avaliações
Não há avaliações ainda.