Descrição
Este projeto arquitetônico de restaurante com 628,75m² foi desenvolvido para atender até 1.200 refeições por dia, com capacidade total para 268 clientes simultâneos — sendo 212 lugares no salão principal e 56 na varanda externa. A planta combina eficiência operacional com conforto e fluidez, ideal para empreendimentos gastronômicos em áreas urbanas, polos industriais ou centros comerciais.
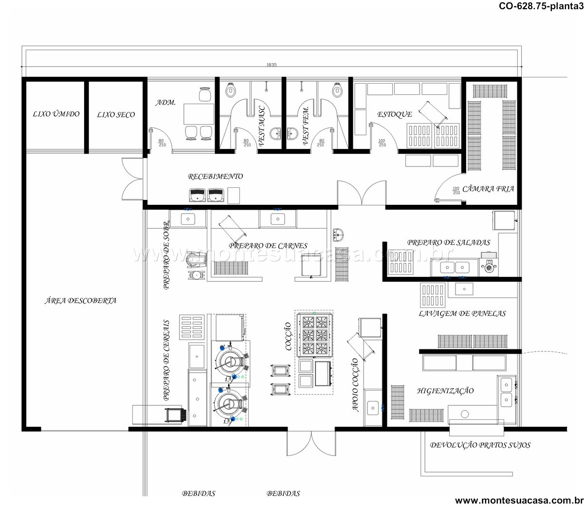
Cozinha industrial com fluxo otimizado A área técnica é composta por setores especializados: preparo de carnes, saladas, sobremesas e cereais. Há também zonas dedicadas à lavagem de panelas, higienização e devolução de pratos sujos, garantindo um ciclo contínuo e seguro de produção. O recebimento de insumos é feito por entrada exclusiva, com acesso direto ao estoque e à câmara fria, otimizando o abastecimento e evitando cruzamento de fluxos.
Infraestrutura completa para operação comercial O projeto inclui vestiários masculino e feminino para funcionários, administração, áreas de descarte de lixo seco e úmido, além de uma área descoberta que pode ser usada como apoio técnico ou espaço de respiro. Cada ambiente foi posicionado estrategicamente para facilitar o funcionamento diário e atender às normas sanitárias.
Ambiente acolhedor e funcional para os clientes O salão principal é amplo e bem distribuído, com 212 lugares organizados em mesas retangulares e redondas. A circulação entre os pontos de serviço — bebidas, pratos quentes e saladas frias — é fluida e intuitiva. A varanda externa, com 56 lugares, oferece uma experiência mais leve e ventilada, ideal para refeições ao ar livre ou momentos de descontração.
Projeto ideal para alta demanda diária Com layout pensado para produtividade e conforto, este restaurante é perfeito para locais com grande fluxo de pessoas. A entrada principal com hall de recepção reforça a organização e o acolhimento, enquanto a saída lateral facilita o escoamento dos clientes. A estrutura permite atendimento ágil e contínuo, mesmo em horários de pico.









Avaliações
Não há avaliações ainda.