Descrição
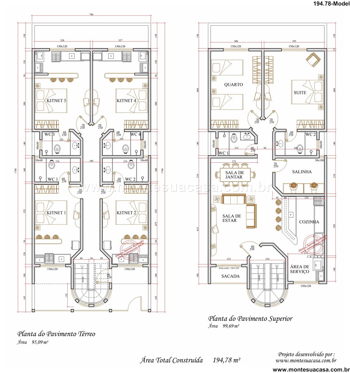
Este projeto arquitetônico apresenta uma solução inteligente e funcional para quem busca rentabilidade com moradia integrada. Com 194,78m² de área construída, a edificação distribui-se em dois pavimentos bem definidos, otimizando o uso do terreno e oferecendo versatilidade para investidores e famílias.
Pavimento térreo com quatro kitnets independentes No nível térreo, o projeto contempla quatro unidades de kitnet, cada uma com espaço para dormitório, sala integrada e cozinha compacta. Cada unidade possui banheiro privativo, garantindo conforto e privacidade aos moradores. A circulação central é eficiente e conecta todas as unidades à escada principal, que dá acesso ao pavimento superior. Este arranjo é ideal para locação, seja por temporada ou contrato fixo, maximizando o retorno sobre o investimento.
Pavimento superior com residência completa O andar superior é dedicado a uma residência ampla e bem distribuída. A área social inclui sala de estar, sala de jantar e uma salinha adicional que pode ser usada como home office ou espaço de leitura. A cozinha é funcional e conecta-se à área de serviço, facilitando o dia a dia. A sacada proporciona ventilação cruzada e iluminação natural, além de ser um espaço agradável para relaxar.
Área íntima com dois dormitórios e dois banheiros A residência conta com um quarto padrão e uma suíte com banheiro privativo. Além disso, há um segundo banheiro social, atendendo tanto os moradores quanto visitantes. A disposição dos ambientes favorece a privacidade e o conforto, tornando o espaço ideal para famílias pequenas ou casais.
Projeto versátil e rentável Este projeto é perfeito para quem deseja unir moradia e investimento em um único imóvel. A separação clara entre os usos permite flexibilidade na ocupação e na gestão dos espaços. A estética moderna e a funcionalidade dos ambientes tornam esta proposta uma excelente opção para áreas urbanas com alta demanda por locação.







Avaliações
Não há avaliações ainda.