Descrição
Este projeto arquitetônico de 117,70m² apresenta um sobrado moderno e funcional, ideal para quem deseja unir moradia confortável com espaço comercial no mesmo terreno. Com três quartos distribuídos em dois pavimentos, o projeto equilibra privacidade, praticidade e estética contemporânea.
Sobrado com três quartos e espaço comercial No pavimento térreo, o destaque é a área comercial de 16,62m², posicionada estrategicamente na fachada com vitrine e espaço para logo. Essa configuração permite o funcionamento de um pequeno negócio sem interferir na rotina residencial. Ao lado, há uma garagem para um veículo e um depósito compacto.
Ambientes residenciais bem planejados A área residencial térrea conta com uma sala de estar com pé-direito duplo, que proporciona amplitude e iluminação natural. A cozinha é integrada à sala, favorecendo a convivência. Dois quartos estão localizados neste pavimento: um dormitório comum e uma suíte confortável. Dois banheiros atendem às necessidades dos moradores e visitantes. Há também uma área descoberta que pode ser usada como jardim ou espaço de ventilação.
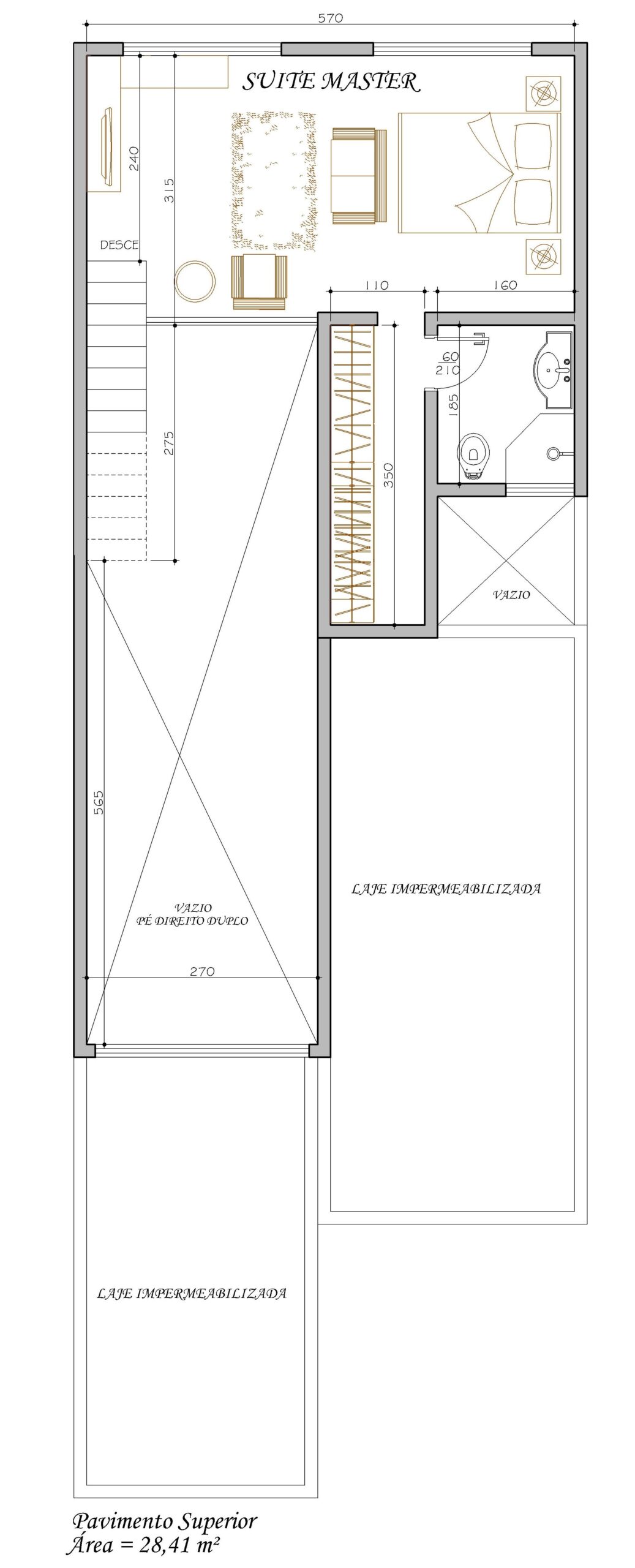
Suíte master no pavimento superior O andar superior abriga a suíte master, com closet e banheiro privativo. O ambiente é espaçoso, bem iluminado e oferece vista para o vazio do pé-direito duplo da sala. Ao lado, uma laje impermeabilizada pode ser aproveitada como terraço técnico ou área de manutenção.
Fachada com identidade urbana A fachada combina tijolos aparentes e pintura lisa, criando um visual acolhedor e moderno. O paisagismo frontal e os detalhes florais trazem charme ao projeto, enquanto o acesso comercial e residencial é claramente definido.
Este sobrado é ideal para empreendedores que desejam morar e trabalhar no mesmo local, sem abrir mão do conforto, da estética e da funcionalidade.









Avaliações
Não há avaliações ainda.