Descrição
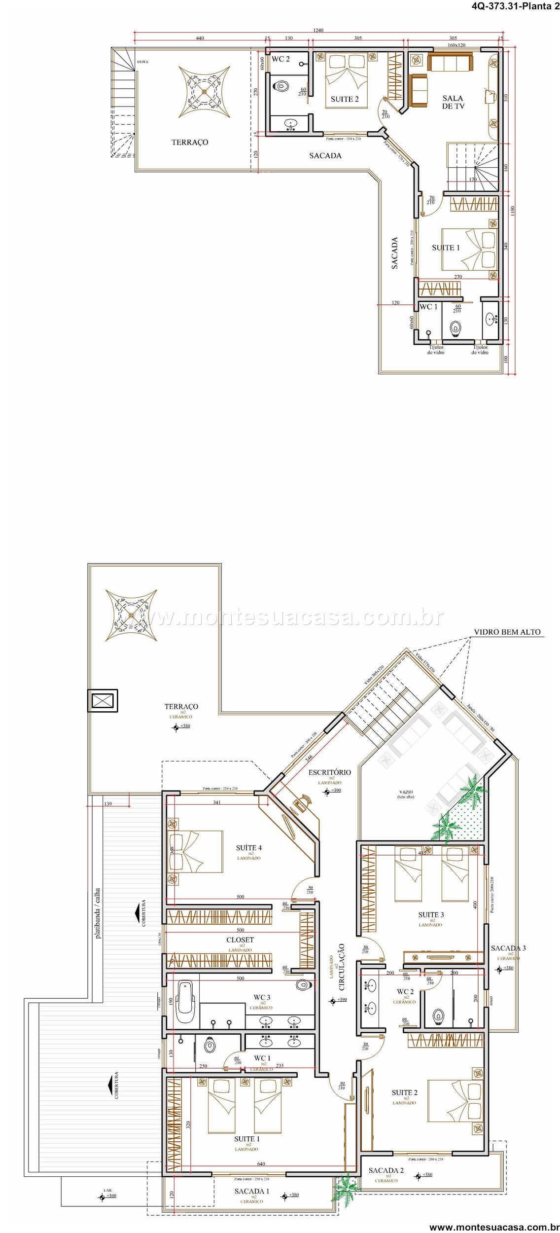
Sobrado moderno com área comercial e lazer completo Este projeto arquitetônico de 373,31m² apresenta um sobrado contemporâneo que une moradia de alto padrão com funcionalidade comercial. Ideal para famílias empreendedoras, o imóvel oferece quatro suítes, área de lazer completa e uma lanhouse com acesso independente na fachada.
Área comercial com lanhouse integrada à fachada Na parte frontal do terreno, o projeto contempla uma área comercial com entrada separada, perfeita para uma lanhouse ou outro negócio voltado à tecnologia. Essa solução permite empreender sem comprometer a privacidade da residência, agregando valor e versatilidade ao imóvel.
Ambientes sociais integrados e espaço gourmet O pavimento térreo abriga uma sala de estar ampla conectada à sala de jantar e à cozinha. A área gourmet com churrasqueira se integra à piscina e ao terraço, criando um ambiente ideal para confraternizações. O bar e a sala de recepção complementam o espaço com sofisticação.
Lazer e bem-estar ao alcance A piscina com espreguiçadeiras e o terraço proporcionam momentos de relaxamento ao ar livre. A edícula abriga uma sala de ginástica equipada, permitindo manter a rotina de exercícios com comodidade. O projeto também inclui uma LAN house, reforçando a proposta de funcionalidade comercial.
Quatro suítes com conforto e privacidade O pavimento superior oferece quatro suítes, todas com sacadas e banheiros privativos. A suíte principal possui closet e acesso direto ao terraço. A circulação entre os ambientes é fluida, com destaque para o escritório, ideal para trabalho remoto.
Garagem e funcionalidade A garagem coberta comporta até três veículos, com acesso direto à área de serviço. O paisagismo valoriza a fachada e harmoniza com o estilo moderno da construção.
Design que une moradia e negócio Com acabamentos sofisticados, grandes aberturas envidraçadas e uma paleta de cores neutras, este sobrado é perfeito para quem deseja unir moradia de alto padrão com uma operação comercial estratégica.













Avaliações
Não há avaliações ainda.