Descrição
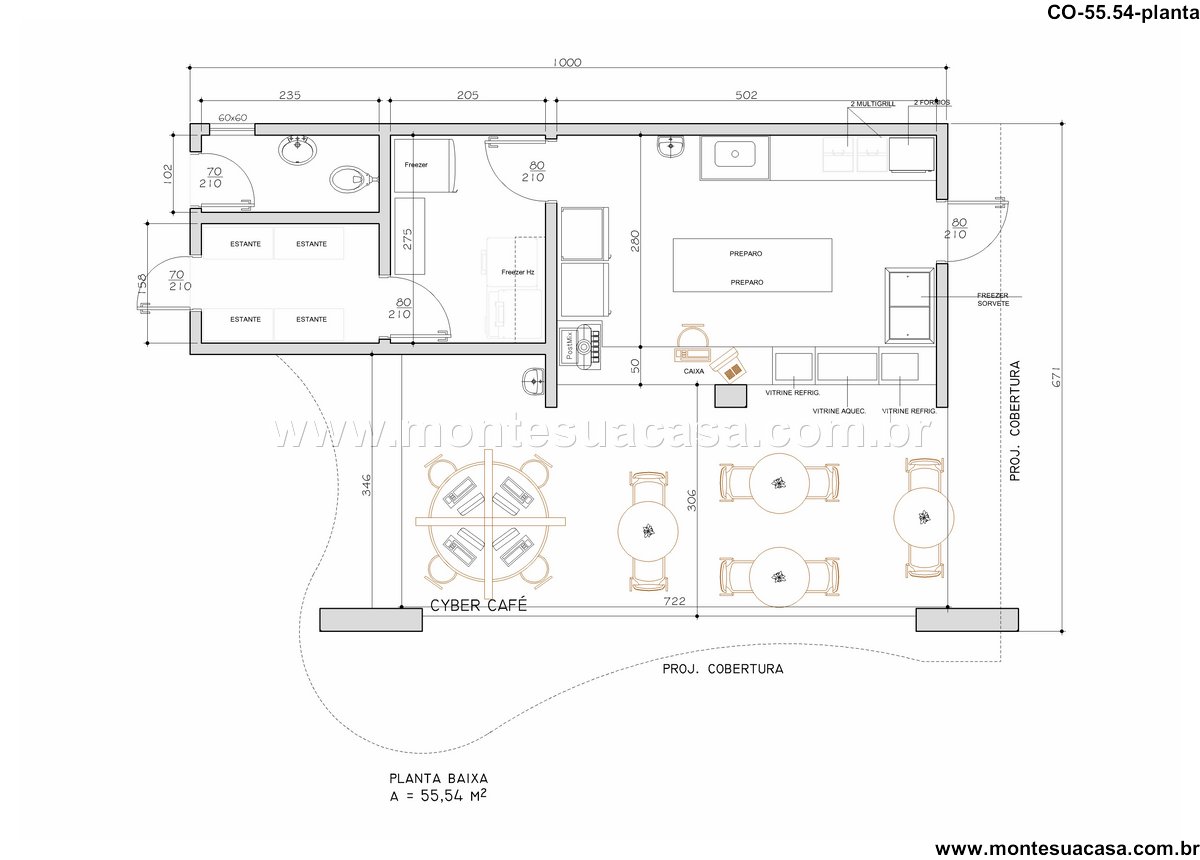
Este projeto de lanchonete com 55,54m² foi desenvolvido para oferecer uma experiência comercial compacta, funcional e atrativa. A planta baixa contempla um espaço inteligente que integra um cyber café com área de preparo de alimentos, ideal para empreendimentos urbanos que buscam versatilidade e rentabilidade.
Ambiente integrado e funcional
A entrada principal conduz diretamente ao espaço do cyber café, equipado com mesas e cadeiras organizadas para acomodar clientes com conforto. Este ambiente é perfeito para quem deseja consumir alimentos enquanto navega na internet ou realiza atividades digitais. A disposição favorece a circulação e proporciona uma atmosfera acolhedora.
Área de preparo otimizada
Ao lado do cyber café, encontra-se a área de preparo, estrategicamente posicionada para facilitar o atendimento. Ela inclui balcões funcionais, vitrines refrigeradas e aquecidas para exposição de produtos, além de um freezer e estantes para armazenamento. Essa configuração garante agilidade no serviço e eficiência operacional.
Infraestrutura completa
O projeto contempla ainda um caixa bem localizado, facilitando o controle financeiro e o atendimento ao cliente. Há um banheiro funcional com lavatório e vaso sanitário, atendendo às exigências sanitárias e proporcionando conforto aos usuários. As portas possuem medidas padronizadas (70×210 e 80×210), assegurando acessibilidade e conformidade com normas técnicas.
Ideal para empreendimentos urbanos
Este projeto é ideal para quem deseja abrir uma lanchonete em áreas comerciais, centros urbanos ou galerias. A proposta valoriza o aproveitamento do espaço, sem comprometer a estética ou a funcionalidade. Com layout bem definido e estrutura eficiente, o projeto atende às demandas de pequenos negócios com grande potencial de retorno.







Avaliações
Não há avaliações ainda.