Descrição
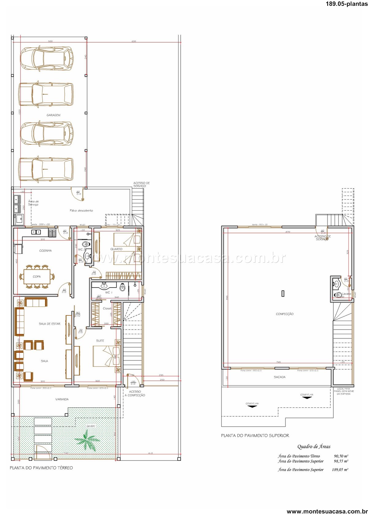
Projeto versátil para morar e empreender Este sobrado de 189,05m² foi desenvolvido para atender quem busca unir moradia confortável com oportunidade de negócio. Com dois pavimentos bem distribuídos, o projeto oferece no térreo um espaço comercial funcional e no andar superior uma residência completa com dois quartos, ideal para famílias pequenas ou casais empreendedores.
Pavimento térreo com ponto comercial e áreas de apoio A área térrea é composta por um amplo espaço destinado à atividade comercial, que pode ser adaptado para loja, escritório, salão de beleza ou qualquer outro tipo de negócio. A entrada independente garante privacidade à área residencial. Além disso, o pavimento conta com garagem para até cinco veículos, dois banheiros sociais, sala de estar, sala de jantar, cozinha e área de serviço. A presença de uma suíte com closet no térreo permite flexibilidade de uso, seja como moradia principal ou apoio ao comércio.
Andar superior com ambientes residenciais e sacada No pavimento superior, o projeto contempla dois quartos bem ventilados, um lavabo e uma área ampla de confecção que pode ser transformada em sala de TV, escritório ou espaço de lazer. A sacada com guarda-corpo em vidro oferece vista agradável e reforça a estética moderna do sobrado. A escada interna conecta os dois pavimentos de forma prática e segura.
Ideal para quem valoriza funcionalidade e independência Este projeto é perfeito para quem deseja empreender sem abrir mão do conforto residencial. A separação entre os ambientes comerciais e privados permite uma rotina organizada e eficiente. A fachada moderna e os espaços bem planejados tornam o sobrado uma excelente opção para terrenos urbanos com vocação mista.








Avaliações
Não há avaliações ainda.