Descrição
Este edifício comercial moderno com 340.59m2 foi projetado para oferecer máxima funcionalidade e conforto, atendendo às demandas de empresários e clientes. O projeto se destaca pela sua organização vertical inteligente, que integra serviços, trabalho e lazer em um único local. Com uma garagem subterrânea espaçosa, lojas no térreo, escritórios no segundo pavimento e um terraço completo, este empreendimento é uma solução completa para o mercado. Sua arquitetura prioriza o acesso, a eficiência e um ambiente profissional agradável, criando um espaço de negócios que valoriza cada usuário.
Infraestrutura e Acessibilidade
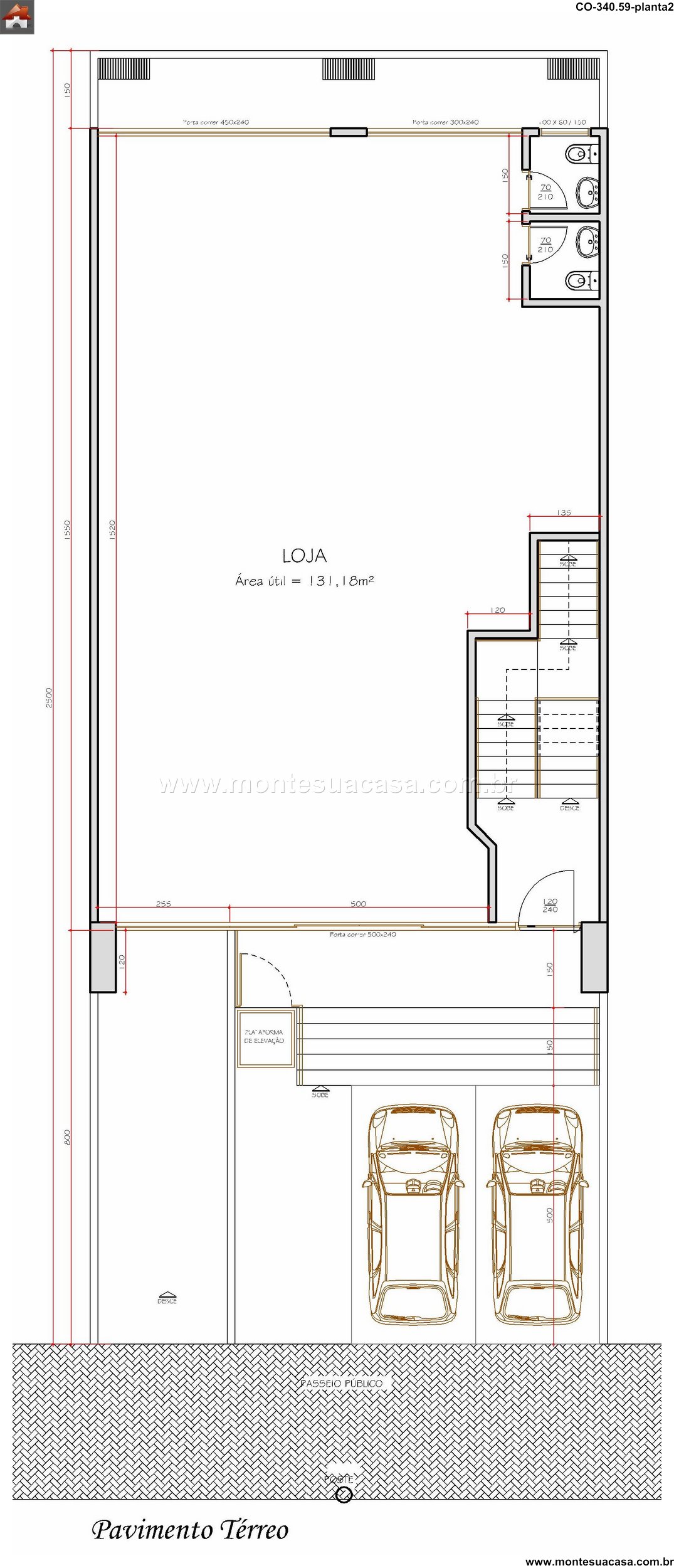
O subsolo abriga uma garagem coberta para 12 veículos, resolvendo um dos maiores desafios dos centros urbanos: o estacionamento. Este espaço garante segurança e conveniência para lojistas, profissionais e clientes, agregando valor significativo ao imóvel. O térreo é ocupado por lojas amplas e bem localizadas, com banheiros privativos que oferecem total autonomia para os lojistas. A localização privilegiada e a fachada moderna garantem visibilidade e acesso fácil, criando o ambiente perfeito para o comércio.
Espaços Profissionais Completos
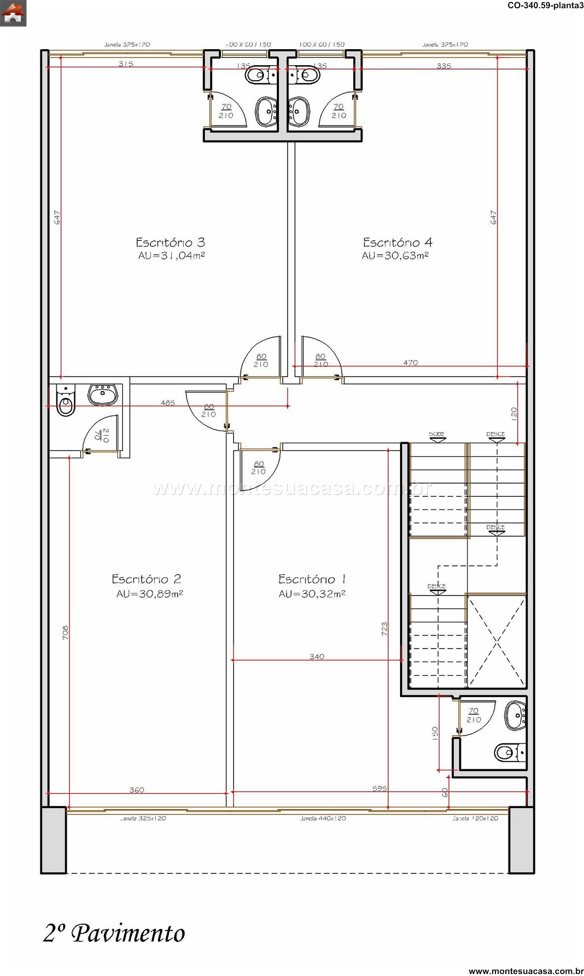
O segundo pavimento abriga quatro escritórios independentes, cada um com seu próprio banheiro. Esta configuração oferece privacidade e praticidade para profissionais e empresas, eliminando a necessidade de banheiros compartilhados. Os escritórios são iluminados naturalmente e possuem layout flexível para adaptar-se a diferentes necessidades de negócio. A presença de instalações sanitárias exclusivas em cada unidade eleva o padrão do empreendimento e oferece maior conforto para os usuários.
Área de Lazer e Convívio
Coroando o edifício, o terraço apresenta um espaço gourmet completo, perfeito para eventos corporativos ou momentos de descontração. A área é equipada com dois banheiros, proporcionando total comodidade para os usuários sem necessidade de deslocamento. Este ambiente amplo e arejado constitui um diferencial exclusivo, oferecendo um refúgio agradável no coração da cidade. A integração entre áreas funcionais e de lazer torna este predio comercial único no mercado.
Concepção Arquitetônica e Valor
O projeto combina eficiência estrutural com design contemporâneo, utilizando materiais duráveis e soluções sustentáveis. A circulação vertical foi cuidadosamente planejada para garantir acesso fácil a todos os níveis. Cada ambiente foi dimensionado para oferecer conforto e praticidade, com iluminação e ventilação otimizadas. Este empreendimento representa um investimento inteligente em um negócio completo e autossuficiente.
















Avaliações
Não há avaliações ainda.