Descrição
Esta casa contemporânea, com generosos 443.88m², é um exemplo de como o design arquitetônico pode criar um ambiente sofisticado e acolhedor para uma grande família. O projeto, distribuído em dois pavimentos, foi meticulosamente planeado para oferecer conforto, privacidade e uma fluidez excecional entre os ambientes. A fachada, apresentada em um modelo 3D simplificado, sugere uma linguagem moderna, com linhas clean e volumes bem definidos que prometem uma forte identidade visual.
Distribuição Inteligente dos 5 Quartos
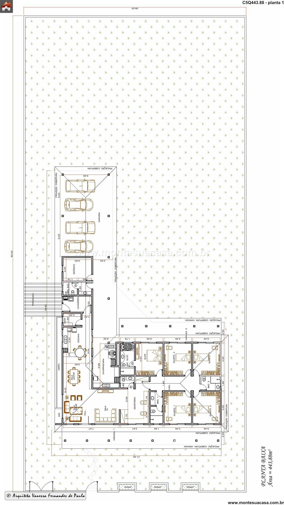
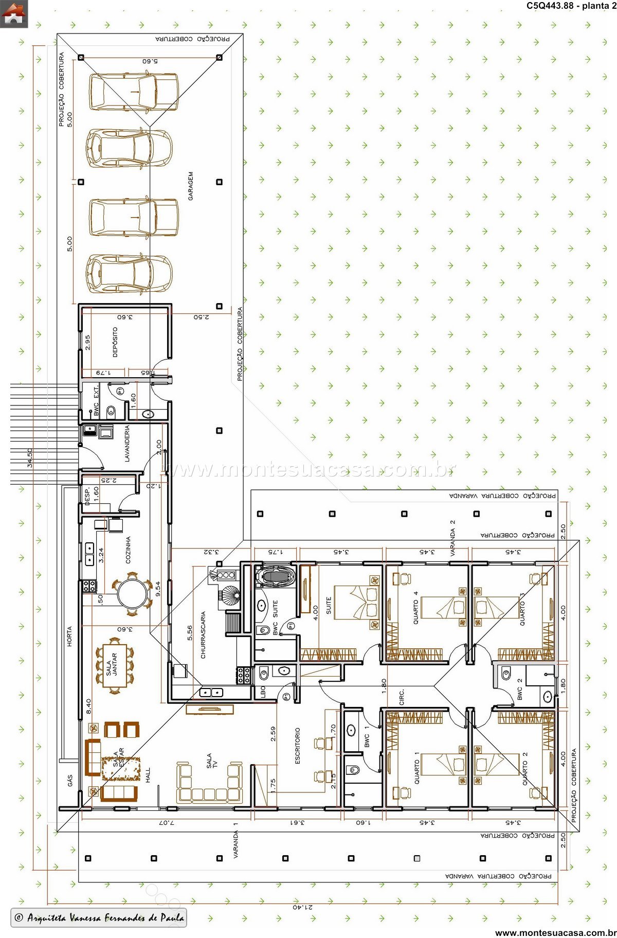
A planta baixa revela uma organização inteligente dos espaços, priorizando a integração entre as áreas sociais e a privacidade dos dormitórios. A circulação é fluida, conectando a sala de estar, a sala de jantar e uma ampla área gourmet, criando o cenário perfeito para receber amigos e familiares. A casa conta com 5 quartos, sendo uma suíte master e quatro quartos adicionais, oferecendo versatilidade para acomodar a família e visitas. Grandes janelas e aberturas estratégicas garantem uma iluminação natural abundante, tornando os ambientes ainda mais agradáveis.
Conforto e Privacidade nos Dormitórios
No andar superior, a privacidade e o descanso são priorizados. A suíte master é um verdadeiro refúgio, oferecendo um espaço amplo e exclusivo. Os outros quatro quartos são bem ventilados e iluminados, assegurando conforto em todos os momentos para os demais membros da família. Todos os banheiros seguem o padrão de qualidade do projeto, com layouts otimizados para o dia a dia. Esta distribuição garante harmonia e privacidade para todos os ocupantes.
Área de Lazer e Entretenimento
O projeto valoriza os momentos de lazer e bem-estar. A área de lazer integrada é um destaque, projetada para incluir uma piscina, tornando-se o ponto central para o relaxamento e entretenimento. Este espaço convida a momentos de descontração ao ar livre, seja para um mergulho refrescante ou para uma reunião descontraída. A arquitetura cria uma transição suave entre o interior e o exterior, ampliando a sensação de liberdade e conexão com a natureza.
Acabamentos e Materialidade
A materialidade proposta combina alto padrão com durabilidade. Acabamentos de qualidade e um estudo detalhado de cores e texturas prometem um resultado final elegante e atemporal. Cada detalhe foi pensado para refletir um estilo de vida moderno e requintado. Esta casa de 5 quartos não é apenas uma residência, mas um lar que equilibra perfeitamente forma, função e emoção, criando um legado de memórias para seus moradores.










Avaliações
Não há avaliações ainda.