Descrição
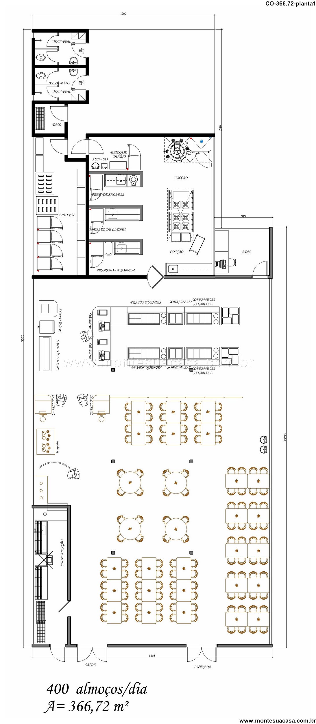
Este projeto arquitetônico foi desenvolvido para atender à operação de um restaurante com capacidade para 116 lugares, distribuídos em uma área total de 366,72 m². A planta valoriza a funcionalidade, o conforto dos clientes e a eficiência operacional, sendo ideal para estabelecimentos que servem até 400 refeições por dia.
Layout inteligente e acolhedor A área de refeições é composta por mesas redondas e retangulares, estrategicamente posicionadas para acomodar grupos variados e garantir fluidez na circulação. O ambiente oferece conforto e praticidade, com acesso direto às estações de buffet e bebidas, otimizando a experiência dos usuários.
Buffet completo e autoatendimento eficiente O restaurante conta com estações de serviço organizadas por tipo de alimento: pratos quentes, saladas e sobremesas. Há também áreas dedicadas para bebidas e guardanapos, facilitando o autoatendimento e reduzindo o tempo de espera. A disposição das estações foi pensada para evitar aglomerações e manter o fluxo contínuo.
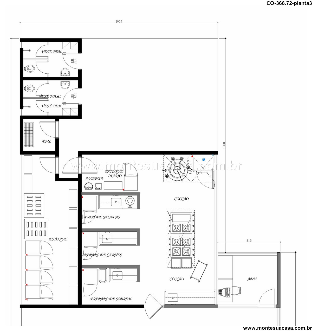
Cozinha industrial com setores especializados A cozinha é equipada com áreas específicas para cocção, preparo de carnes, saladas e sobremesas. Além disso, há espaços para estoque diário, armazenamento geral e assepsia, garantindo conformidade com normas sanitárias. Os vestiários masculino e feminino oferecem conforto aos colaboradores, enquanto a área administrativa permite o gerenciamento eficiente do negócio.
Fluxo operacional otimizado A entrada e saída são posicionadas para facilitar o controle de fluxo, com acesso direto às áreas de atendimento e apoio. O projeto favorece a operação contínua, mesmo em horários de pico, e permite fácil manutenção e limpeza dos ambientes.
Ideal para restaurantes corporativos e comerciais Este projeto é indicado para empreendimentos gastronômicos que exigem alta capacidade de atendimento com padrão profissional. A planta valoriza a funcionalidade sem abrir mão da estética e do conforto.









Avaliações
Não há avaliações ainda.