Descrição
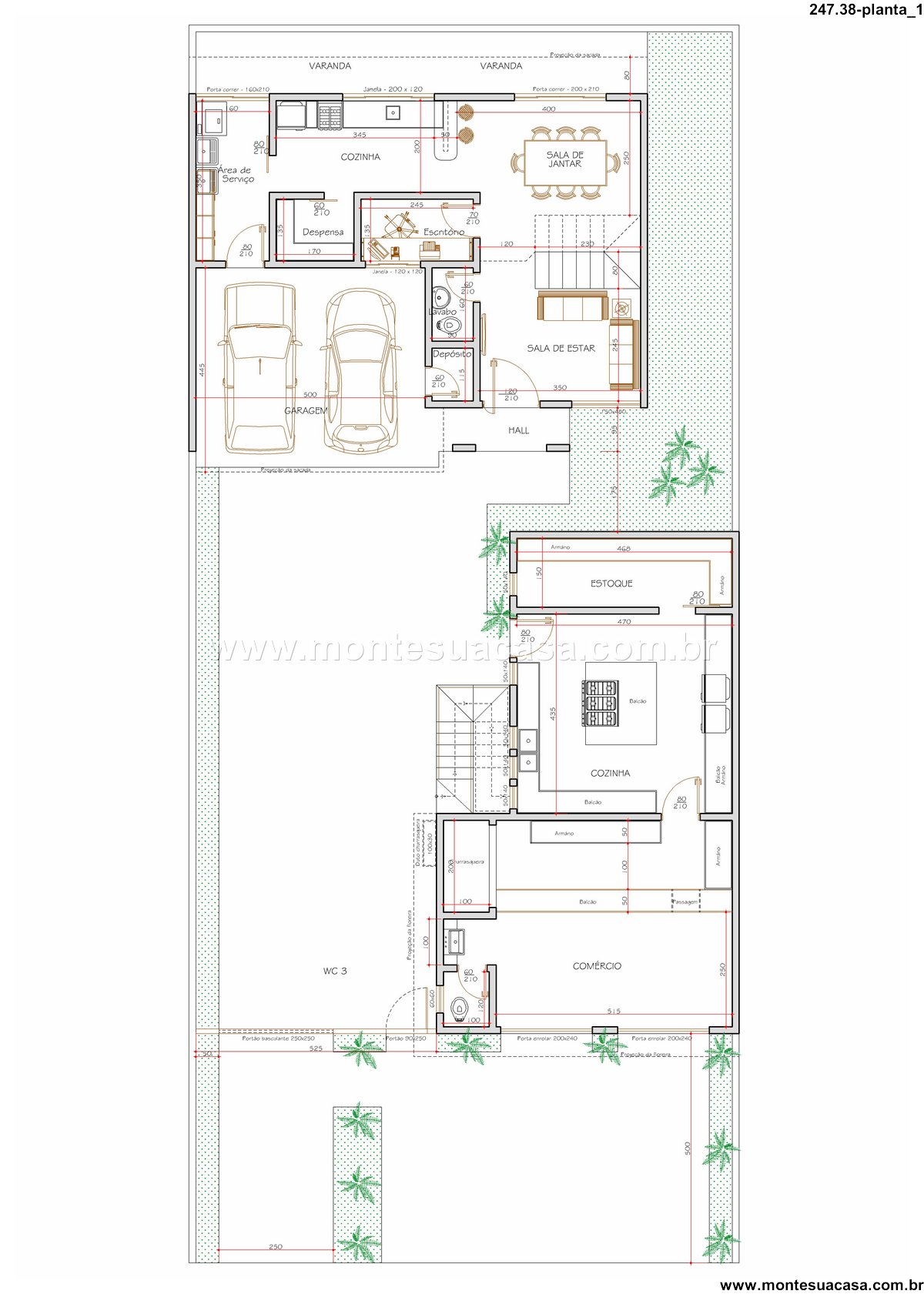
Projeto multifuncional com residência, comércio e sobrado nos fundos Com 247,38m², este projeto arquitetônico oferece uma solução completa para quem busca unir moradia, investimento e funcionalidade em um único terreno. A planta térrea apresenta uma área comercial independente, equipada com cozinha, estoque e banheiro, ideal para negócios que exigem atendimento ao público. No pavimento superior da área comercial, há uma segunda cozinha e ambientes de apoio que ampliam o potencial gastronômico e operacional do espaço.
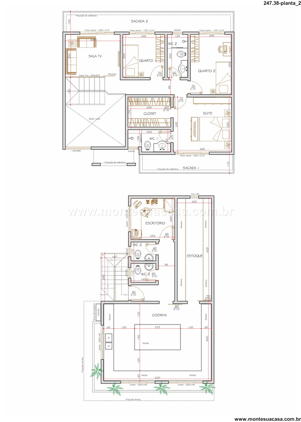
Versatilidade para empreender com estrutura profissional A presença de duas cozinhas — uma no térreo e outra no piso superior — permite operações simultâneas, como produção e atendimento separados. O depósito amplo e a despensa garantem logística eficiente e armazenamento seguro, tornando o projeto ideal para restaurantes, empórios gourmet, padarias artesanais, buffets, lojas de produtos naturais ou até mesmo escolas de culinária. A fachada voltada para a rua oferece excelente visibilidade e acesso direto, favorecendo negócios que dependem de fluxo externo.
Residência principal com ambientes integrados e garagem dupla Ao lado da área comercial, a residência principal conta com varanda, sala de estar e jantar integradas, cozinha funcional, área de serviço e garagem para dois veículos. A circulação é fluida e favorece o conforto familiar. No segundo pavimento, há três dormitórios, sendo uma suíte com closet e sacada privativa, além de sala de TV e dois banheiros sociais.
Sobrado nos fundos com três quartos e acesso independente Nos fundos do terreno, o projeto inclui um sobrado adicional com três quartos, ideal para moradia de familiares, aluguel ou expansão comercial. Com acesso separado, esse espaço oferece privacidade e flexibilidade, podendo ser adaptado para residência, escritório ou estúdio.
Fachada contemporânea e paisagismo equilibrado A fachada se destaca por linhas modernas, volumes bem definidos e detalhes em amarelo que conferem identidade visual. Floreiras, varandas com guarda-corpo em vidro e revestimentos em pedra natural reforçam o apelo estético. O paisagismo frontal complementa a proposta com charme e equilíbrio.













Avaliações
Não há avaliações ainda.