Descrição
Este projeto de sobrado contemporâneo foi meticulosamente planejado para oferecer o máximo em conforto e funcionalidade para uma família moderna. Com uma área total de 343.19m², a residência se desenvolve em dois pavimentos, harmonizando estética e praticidade em cada ambiente. A fachada emprega linhas clean e volumes bem definidos, criando uma identidade arquitetônica marcante e atemporal. A organização espacial prioriza a fluidez entre os cômodos, promovendo uma convivência fácil e integrada. Além disso, o projeto aproveita a iluminação natural para criar ambientes mais saudáveis e aconchegantes.
Conceito e Integração de Ambientes
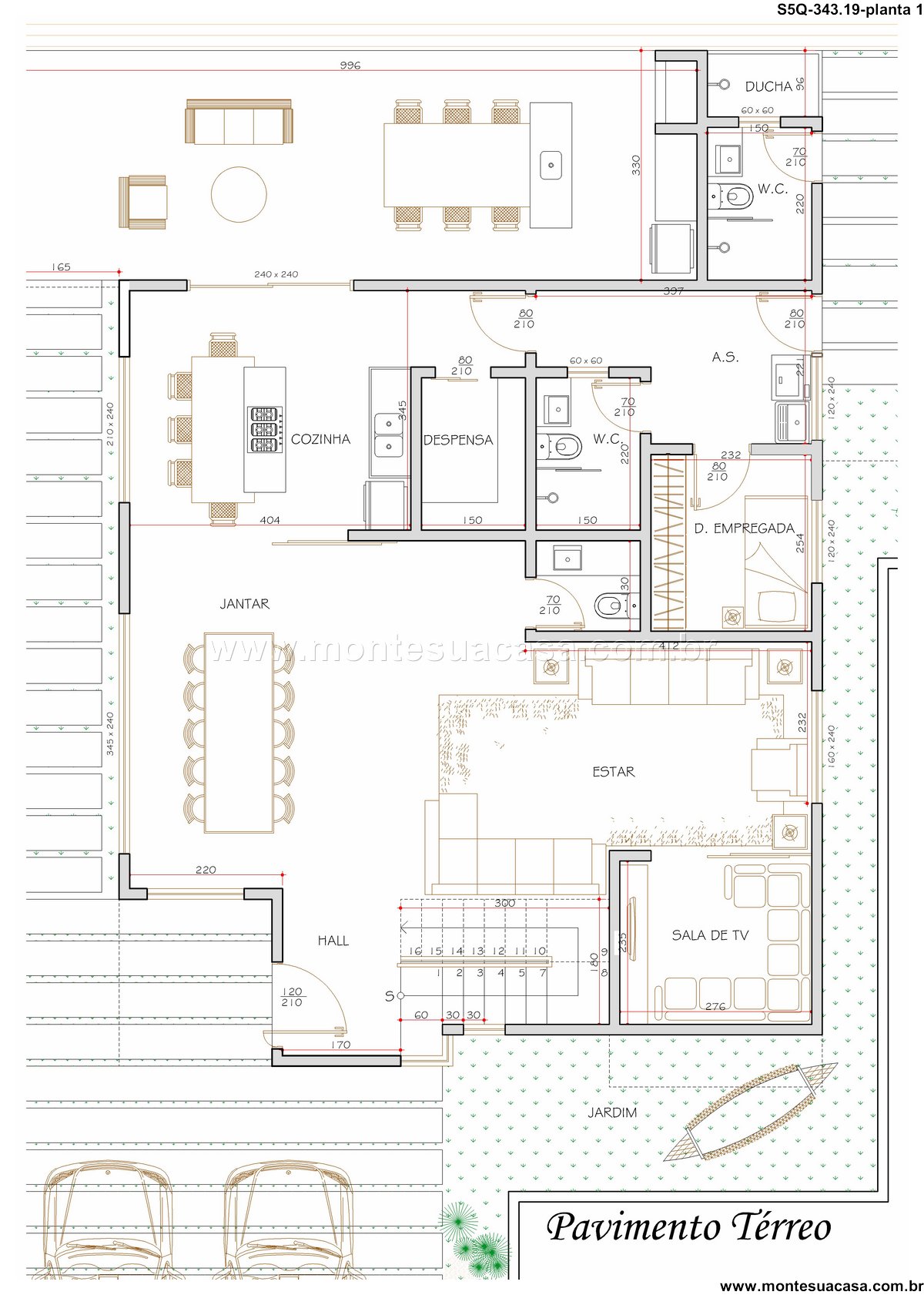
O coração da casa é a área social, que une perfeitamente a sala de estar, a sala de jantar e a cozinha. Este layout aberto é ideal para receber amigos e familiares, permitindo que o anfitrião interaja com os convidados sem barreiras. A área gourmet, anexa à cozinha, oferece um espaço prático para refeições informais e momentos de descontração. Grandes esquadrias de vidro garantem a conexão visual com o exterior, trazendo a sensação de amplitude e integração com a natureza. Dessa forma, cada evento se torna uma experiência única e acolhedora.
Privacidade e Conforto nos Quartos
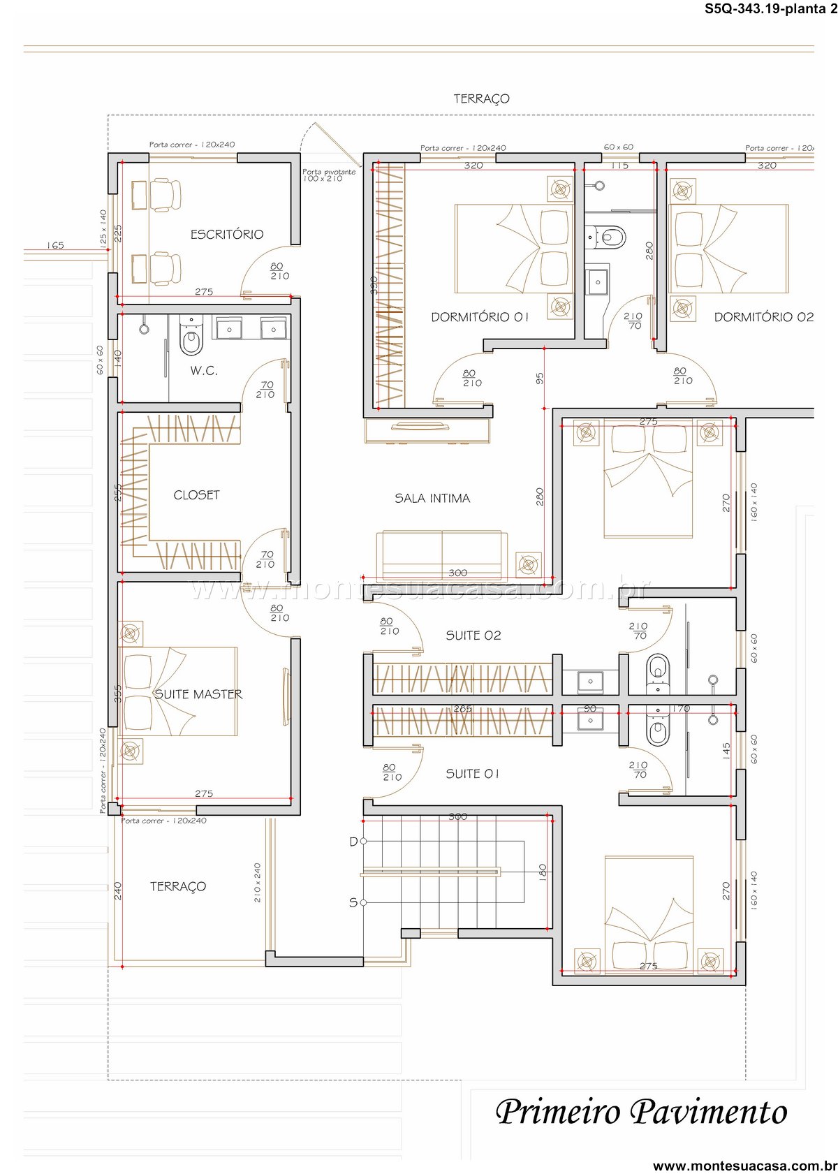
O projeto abriga cinco quartos, atendendo perfeitamente às necessidades de uma família numerosa ou para quem deseja uma suíte de hóspedes. O pavimento superior é dedicado ao repouso, abrigando os dormitórios em um ambiente mais reservado e silencioso. A suíte master oferece um refúgio privativo, com um espaço generoso que pode acomodar um closet planejado. Os demais quartos compartilham um banheiro bem distribuído, assegurando conforto para todos os moradores. Esta configuração garante a privacidade necessária sem comprometer a sensação de unidade familiar.
Funcionalidade e Áreas de Serviço
A funcionalidade é uma prioridade, com uma área de serviço completa e organizada, que facilita as tarefas domésticas diárias. A despensa anexa à cozinha proporciona um amplo armazenamento para mantimentos, mantendo os ambientes sociais sempre organizados. A lavabo no pavimento térreo oferece comodidade para os visitantes, preservando a intimidade dos banheiros privativos. O projeto também inclui um dormitório de empregada, assegurando independência e conforto para o funcionário. Cada detalhe foi pensado para otimizar a rotina e oferecer praticidade.
Lazer e Entretenimento Familiar
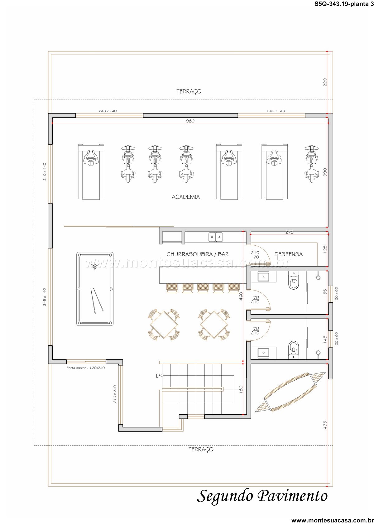
O terraço ou varanda se apresenta como uma extensão da área de estar, perfeito para momentos de relaxamento ao ar livre. Este espaço pode ser facilmente adaptado para uma área de churrasco, criando o cenário ideal para encontros e celebrações. A integração entre os ambientes internos e externos promove uma vida mais dinâmica e conectada. A arquitetura privilegia a ventilação cruzada, assegurando um clima agradável em todos os cômodos durante o ano todo. Consequentemente, a casa se torna um verdadeiro refúgio para o lazer e o entretenimento.












Avaliações
Não há avaliações ainda.