Descrição
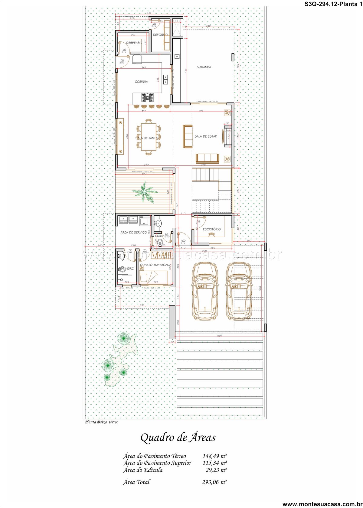
Este projeto de sobrado contemporâneo, com 294.12m² de área construída e 3 quartos, foi concebido para oferecer uma experiência de moradia completa e sofisticada. A arquitetura prioriza a integração entre os ambientes e a fluidez da circulação, criando um lar que é ao mesmo tempo acolhedor e impressionante. A fachada, com suas linhas clean e composições volumétricas bem definidas, estabelece imediatamente a identidade moderna da residência. A entrada principal conduz você para um amplo hall de distribuição, que organiza o acesso às diversas áreas sociais e íntimas do pavimento térreo. A living room se integra perfeitamente à área gourmet e à varanda, formando um grande espaço de convívio ideal para receber amigos e desfrutar de momentos em família. A iluminação natural é um elemento-chave do projeto, garantindo ambientes claros, arejados e energeticamente eficientes.
A área social no térreo foi meticulosamente planejada para ser o coração da casa, promovendo interação e conforto. A living room central, espaçosa e multifuncional, conecta-se diretamente à cozinha gourmet, que conta com uma prática ilha com bancada. Esta configuração facilita o preparo de refeições e o entretenimento, permitindo que o anfitrião interaja com os convidados sem interrupções. A varanda anexa amplia visualmente o ambiente e cria uma transição suave entre o interior e o exterior. Este espaço se torna uma extensão valiosa da sala, perfeito para refeições informais ao ar livre ou simplesmente para relaxar. O projeto garante, assim, um ambiente social dinâmico e integrado, pronto para celebrar a vida em comunidade.
A distribuição dos 3 quartos no sobrado foi estrategicamente pensada para oferecer privacidade e tranquilidade. O pavimento superior abriga a suíte master e os dois dormitórios adicionais, criando uma zona íntima verdadeiramente separada da agitação social. A suíte master se destaca como um refúgio privativo, oferecendo um ambiente generoso, closet organizado e um banheiro espaçoso com acabamentos premium. Os demais quartos, igualmente confortáveis, compartilham um banheiro social bem localizado e dimensionado. A escada, além de sua função de conexão, é tratada como um elemento escultórico, reforçando a linguagem contemporânea do projeto. Dessa forma, o sobrado assegura o equilíbrio perfeito entre convívio e recolhimento.
Os acabamentos e especificações técnicas reforçam o caráter premium e durável do projeto. Materiais de alta qualidade, como porcelanatos de grandes formatos nos pisos, garantem durabilidade e um visual clean e contínuo. Os detalhes em madeira e iluminação em LED criam uma atmosfera aconchegante e moderna. O projeto incorpora também soluções inteligentes de armazenamento e ventilação cruzada, assegurando praticidade e bem-estar. Cada decisão de projeto visa criar uma residência não apenas bela, mas também funcional e de baixa manutenção. Este sobrado de 3 quartos representa, portanto, a realização do desejo por uma casa contemporânea, familiar e com espaços perfeitamente integrados.
















Avaliações
Não há avaliações ainda.