Descrição
Projeto de Sobrado Moderno com 3 Quartos e 107,68m²
Este projeto de sobrado com 107,68m² combina funcionalidade, conforto e design moderno, sendo ideal para famílias que valorizam espaços bem distribuídos e integração entre os ambientes. A planta foi cuidadosamente elaborada para aproveitar cada metro quadrado, proporcionando praticidade e bem-estar no dia a dia.
Pavimento Térreo – Convivência e Integração
No térreo, o destaque fica para a ampla sala de estar, que se conecta harmoniosamente com a sala de jantar e cria um ambiente perfeito para receber amigos e familiares. Grandes aberturas garantem excelente ventilação e iluminação natural, valorizando o conforto térmico e visual.
A cozinha é funcional e estrategicamente posicionada, facilitando o acesso à área de serviço, que oferece praticidade para as tarefas domésticas. O layout em conceito semiaberto entre cozinha e sala de jantar reforça a sensação de amplitude e fluidez entre os ambientes.
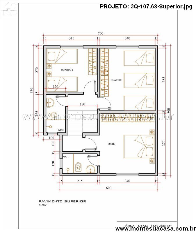
Pavimento Superior – Privacidade e Conforto
O pavimento superior concentra a área íntima da residência, composta por três dormitórios. A suíte principal é espaçosa e possui banheiro privativo, garantindo conforto e privacidade ao casal. Os dois quartos adicionais oferecem excelente espaço para crianças ou hóspedes, com fácil acesso ao banheiro social.
Cada ambiente foi pensado para proporcionar organização e comodidade, com destaque para os amplos armários planejados e a circulação fluida.
Funcionalidade e Estilo
O projeto utiliza linhas retas e uma arquitetura contemporânea, com ênfase em praticidade e elegância. A planta compacta e inteligente faz deste sobrado uma excelente opção para terrenos de 7 metros de largura, adaptando-se facilmente a diferentes estilos de fachadas e acabamentos.
Este projeto é ideal para famílias que buscam conforto, modernidade e aproveitamento eficiente do espaço, resultando em uma casa elegante e funcional.










Avaliações
Não há avaliações ainda.