Descrição
Este projeto de arquitetura apresenta um sofisticado sobrado contemporâneo, com 219.75 metros quadrados de área construída. A residência foi meticulosamente planejada para oferecer conforto, privacidade e uma fluidez excepcional entre os ambientes. Atendendo às demandas de uma família moderna, o layout distribui harmonicamente os quatro quartos, integrando áreas sociais amplas e espaços íntimos com alto padrão de acabamentos.
Conceito e Integração com o Exterior
O sobrado incorpora uma linguagem arquitetônica contemporânea, com linhas retas e volumes bem definidos que criam uma identidade visual forte. Grandes vãos envidraçados garantem uma conexão constante com o exterior, permitindo a entrada de luz natural e ventilação cruzada. Dessa forma, os ambientes internos tornam-se mais saudáveis e energeticamente eficientes. A integração visual promove uma sensação de amplitude e aconchego simultaneamente.
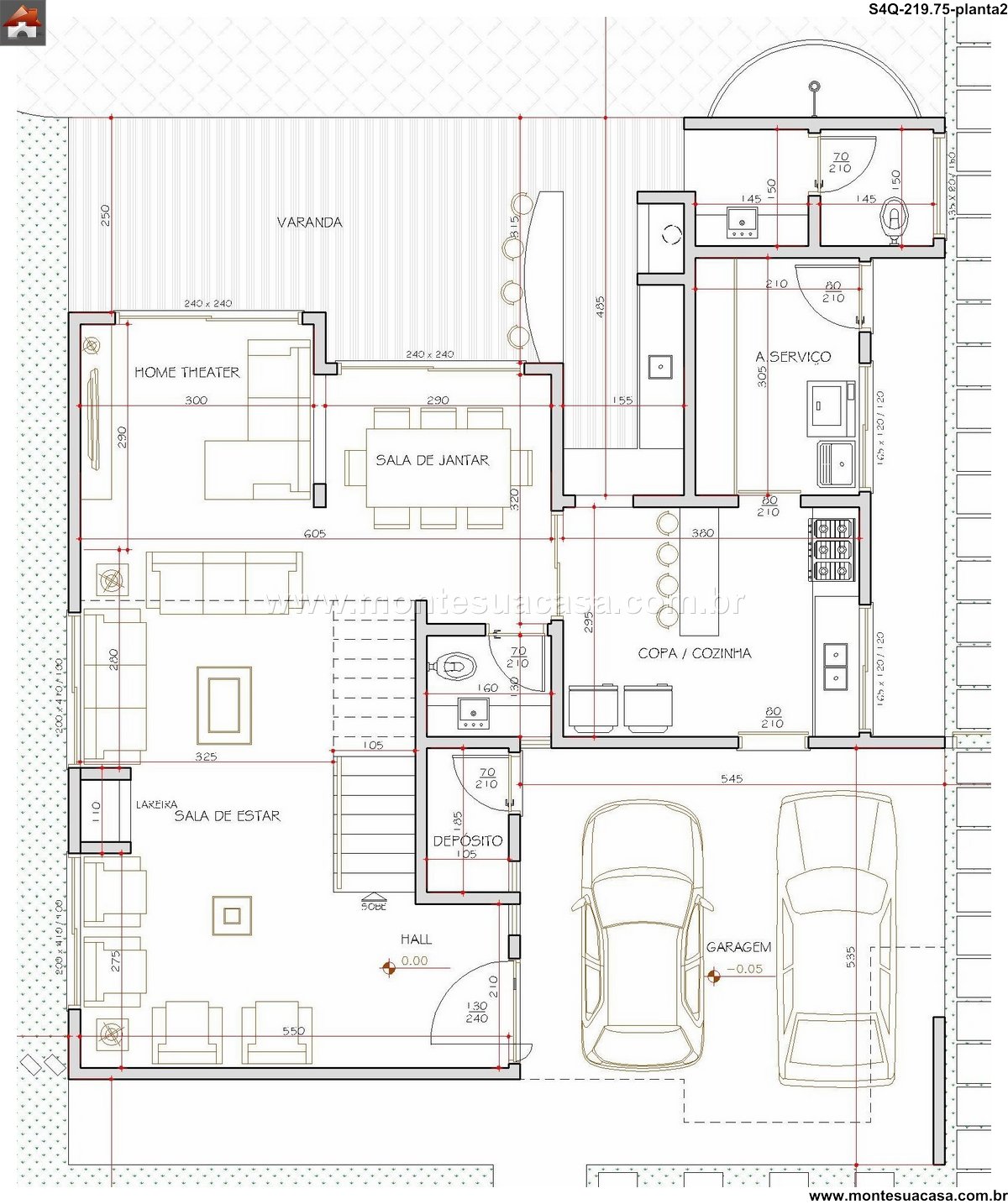
Distribuição Inteligente dos Ambientes
O projeto organiza os espaços de forma inteligente, separando claramente as áreas de convívio das áreas privativas. No pavimento térreo, concentram-se a sala de estar, a sala de jantar e uma ampla cozinha gourmet, integradas em um único ambiente social. Essa configuração é perfeita para receber amigos e familiares. Além disso, um quarto suíte no térreo oferece versatilidade, podendo servir como escritório ou acomodação para hóspedes.
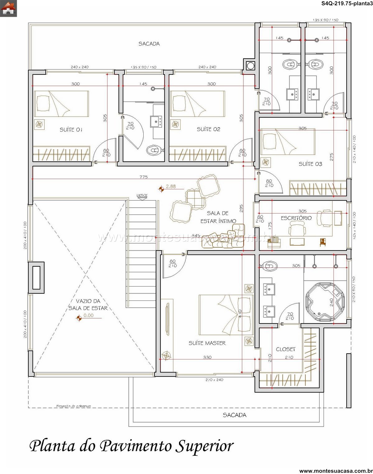
Conforto e Funcionalidade nos Quartos
Os quatro quartos foram dimensionados para proporcionar máximo conforto e funcionalidade. As suítes principais no pavimento superior são verdadeiros refúgios, com espaço generoso e armários planejados. Todos os dormitórios recebem iluminação e ventilação natural direta, criando ambientes agradáveis e acolhedores. A privacidade e o bem-estar dos moradores foram prioridades absolutas no desenvolvimento deste projeto de sobrado.
Acabamentos e Valorização do Imóvel
A seleção de acabamentos de primeira linha eleva o padrão estético e a durabilidade da construção. Materiais como porcelanatos de grande formato, revestimentos texturizados e metais nobres foram especificados para compor uma atmosfera moderna e atemporal. Esses detalhes não apenas embelezam o imóvel, mas também agregam valor significativo ao patrimônio. Cada elemento foi escolhido para harmonizar design, conforto e praticidade no dia a dia.













Avaliações
Não há avaliações ainda.