Descrição
Projeto residencial moderno com 3 quartos e terraço
Design contemporâneo com fachada imponente
Este projeto de 277,24m² apresenta uma residência de dois pavimentos com estilo moderno e fachada marcante. A combinação de revestimentos em pedra bege, pintura branca e amplas esquadrias de vidro cria uma estética sofisticada e acolhedora. O destaque da fachada é o terraço com painel de madeira e guarda-corpo em vidro, que valoriza a volumetria e proporciona integração com o ambiente externo.
Planta funcional e ambientes bem distribuídos
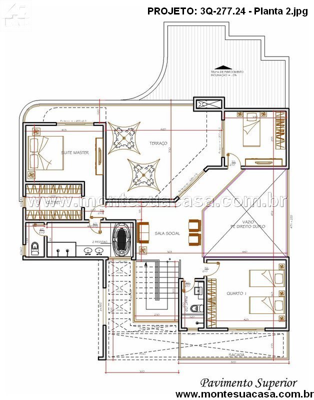
No pavimento superior, o layout privilegia o conforto e a privacidade. A suíte master é ampla, com banheiro exclusivo e acesso direto à sacada. Dois quartos adicionais oferecem espaço ideal para família ou hóspedes. A sala social conecta-se ao terraço, criando uma área perfeita para convivência e lazer. A escada central garante circulação fluida entre os pavimentos, enquanto o lavabo atende com praticidade a área íntima.
Garagem espaçosa e paisagismo valorizado
No térreo, a garagem comporta até três veículos, incluindo espaço para motocicleta. O paisagismo frontal complementa o projeto com canteiros floridos e vegetação ornamental, reforçando o charme da entrada principal. A cobertura em telha de fibrocimento inclinada a 25% garante proteção e leveza ao conjunto arquitetônico.
Ideal para quem busca conforto e estilo
Este projeto é ideal para famílias que valorizam ambientes bem planejados, estética contemporânea e integração com áreas externas. A planta inteligente e os acabamentos modernos tornam esta residência uma excelente opção para terrenos urbanos com frente generosa.

















Avaliações
Não há avaliações ainda.