Descrição
Conceito Arquitetônico e Distribuição Espacial
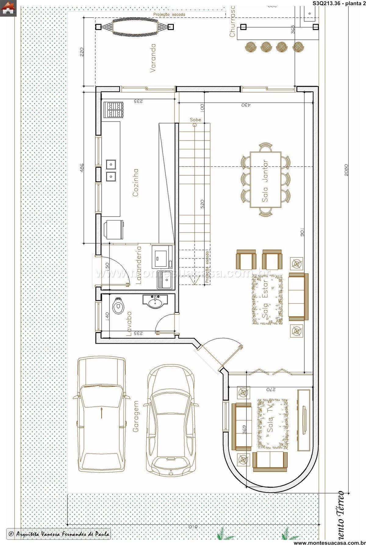
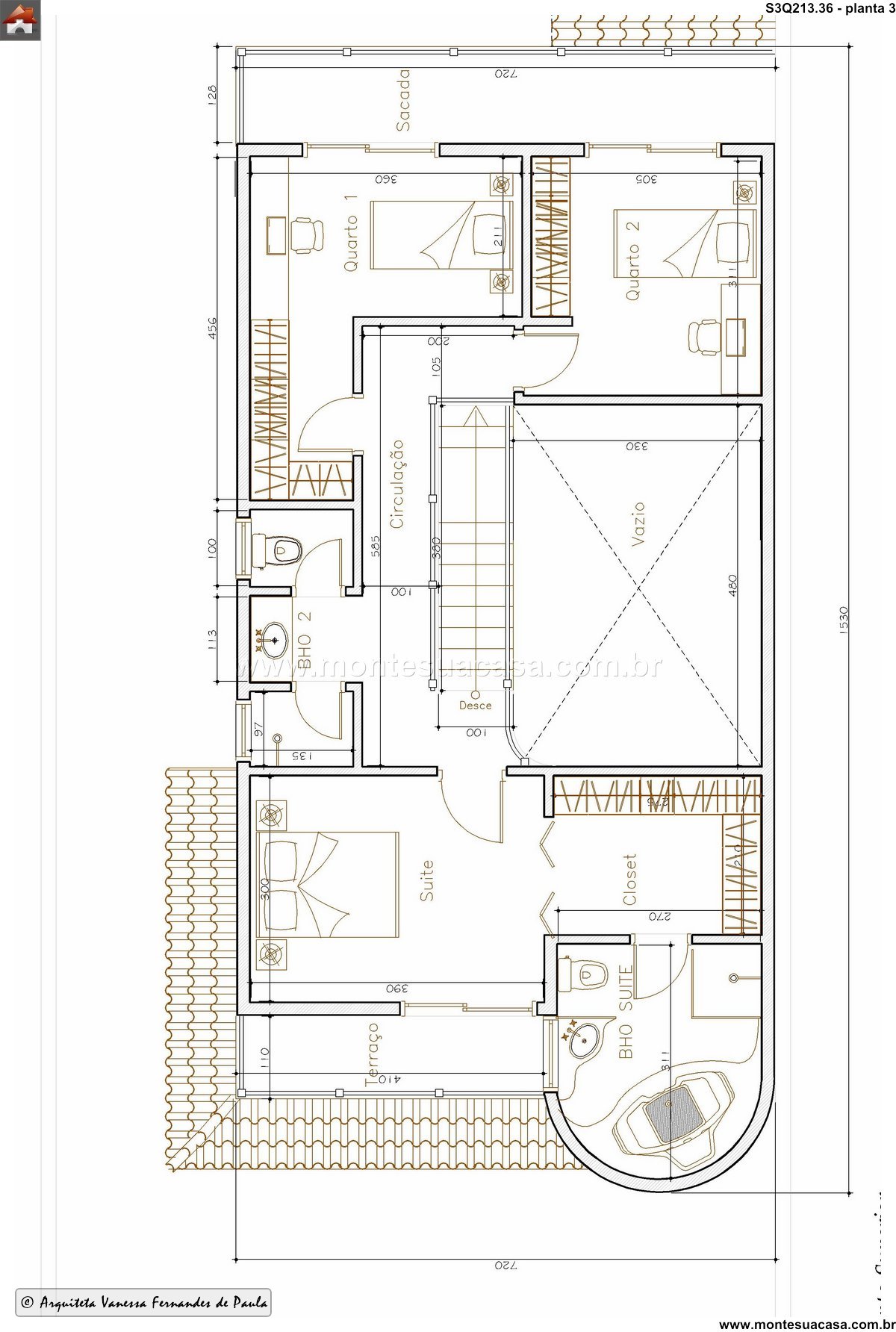
Este sobrado contemporâneo se destaca em seus 213,36 m² de área construída, distribuídos intelligentemente em três quartos. O projeto prioriza a integração fluida entre os ambientes, criando uma sensação de amplitude e continuidade. A sala generosa e a área de jantar se conectam de forma orgânica, promovendo uma convivência familiar dinâmica e aconchegante. A garagem oferece acesso prático, enquanto a varanda amplia o living para o exterior, criando um espaço versátil de entretenimento.
Funcionalidade e Praticidade nos Ambientes
A lavanderia, estrategicamente posicionada, garante máxima eficiência no dia a dia. Este ambiente essencial foi projetado com um layout que otimiza o fluxo de atividades domésticas, conectando-se de forma discreta às demais áreas da casa. Os três quartos oferecem privacidade e conforto, sendo um deles suíte para maior comodidade dos moradores. Cada metro quadrado foi pensado para unir beleza e funcionalidade, atendendo às necessidades de uma família moderna.
Conforto Térmico e Sustentabilidade
O sistema de tempera esfera implementado garante conforto térmico em todos os cômodos throughout o ano. Esta solução sustentável assegura um clima agradável naturalmente, reduzindo a dependência de sistemas de climatização artificial. Consequentemente, o projeto não apenas eleva o padrão de conforto, mas também promove significativa economia de energia. A preocupação com eficiência energética está intrinsicamente ligada ao conceito moderno da residência.
Ambientes Socialização e Lazer
Os amplos espaços sociais foram concebidos para o entretenimento e vida em família. A sala de estar integrada à área de jantar cria o cenário perfeito para reuniões e momentos especiais. A varanda amplia ainda mais esta área de convívio, oferecendo um espaço versátil para desfrutar do ar livre. A garagem acomoda veículos com comodidade, complementando o conjunto de facilidades que tornam este sobrado ideal para quem valoriza conforto e estilo de vida.














Avaliações
Não há avaliações ainda.