Descrição
Conceito e Integração com a Natureza
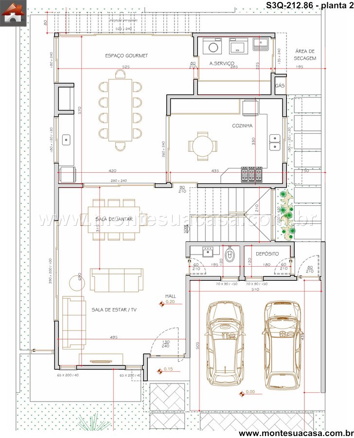
Este projeto arquitetônico de sobrado com 212.86m² materializa um conceito contemporâneo que prioriza a integração plena entre os ambientes internos e a natureza externa. A planta foi meticulosamente planejada para promover uma sensação constante de amplitude e conexão visual. Grandes esquadrias de vidro dissolvem os limites da casa, permitindo que a luz natural inunde todos os espaços durante o dia. Dessa forma, cada ambiente se beneficia de uma iluminação abundante e de uma ventilação cruzada eficiente. O resultado é uma residência que respira e se transforma com o ritmo do dia, oferecendo conforto térmico e bem-estar. A arquitetura se abre para o jardim, criando um refúgio privado e sereno. Este diálogo constante com o exterior é a alma do projeto.
Distribuição Inteligente dos Ambientes
O sobrado conta com três quartos estrategicamente posicionados para garantir privacidade e conforto. O suíte master oferece um retreat particular com espaço generoso e possibilidade de conexão com áreas externas. Os demais quartos compartilham um banheiro social bem distribuído, atendendo perfeitamente às necessidades de uma família. A área social do projeto se destaca pela sua fluidez e funcionalidade, sendo um convite ao convívio e ao entretenimento. A sala de estar e jantar se integram perfeitamente a um moderno espaço gourmet, configurando o coração da residência. A circulação entre os pavimentos foi cuidadosamente resolvida para garantir acessibilidade e conforto em todos os momentos.
Harmonia entre Forma e Função
A fachada deste sobrado contemporâneo apresenta linhas limpas e um volume bem definido, que transmite solidez e elegância ao mesmo tempo. Os materiais foram selecionados para envelhecer com graça, requerendo baixa manutenção e garantindo durabilidade a longo prazo. Nos ambientes internos, a paleta de cores é propositalmente neutra, criando uma tela tranquila para a vida e para a decoração pessoal. A iluminação artificial foi cuidadosamente projetada em camadas para complementar a luz natural, criando atmosferas aconchegantes durante a noite. Cada detalhe, do piso ao forro, foi pensado para contribuir com a estética clean e o conforto acústico. Este projeto é a materialização de um estilo de vida moderno, onde a harmonia entre forma e função se faz presente em cada metro quadrado, oferecendo um lar que é tanto um santuário pessoal quanto um espaço ideal para receber.















Avaliações
Não há avaliações ainda.