Descrição
Este sobrado contemporâneo de 207.51m² foi meticulosamente planejado para oferecer o máximo em conforto e praticidade para a família. Com três quartos distribuídos em dois pavimentos, o projeto arquitetônico se desenvolve de forma harmoniosa, criando uma dinâmica espacial que atende perfeitamente às necessidades do dia a dia. A fachada incorpora elementos modernos, transmitindo uma personalidade única e acolhedora desde a primeira impressão.
Distribuição Inteligente dos Ambientes
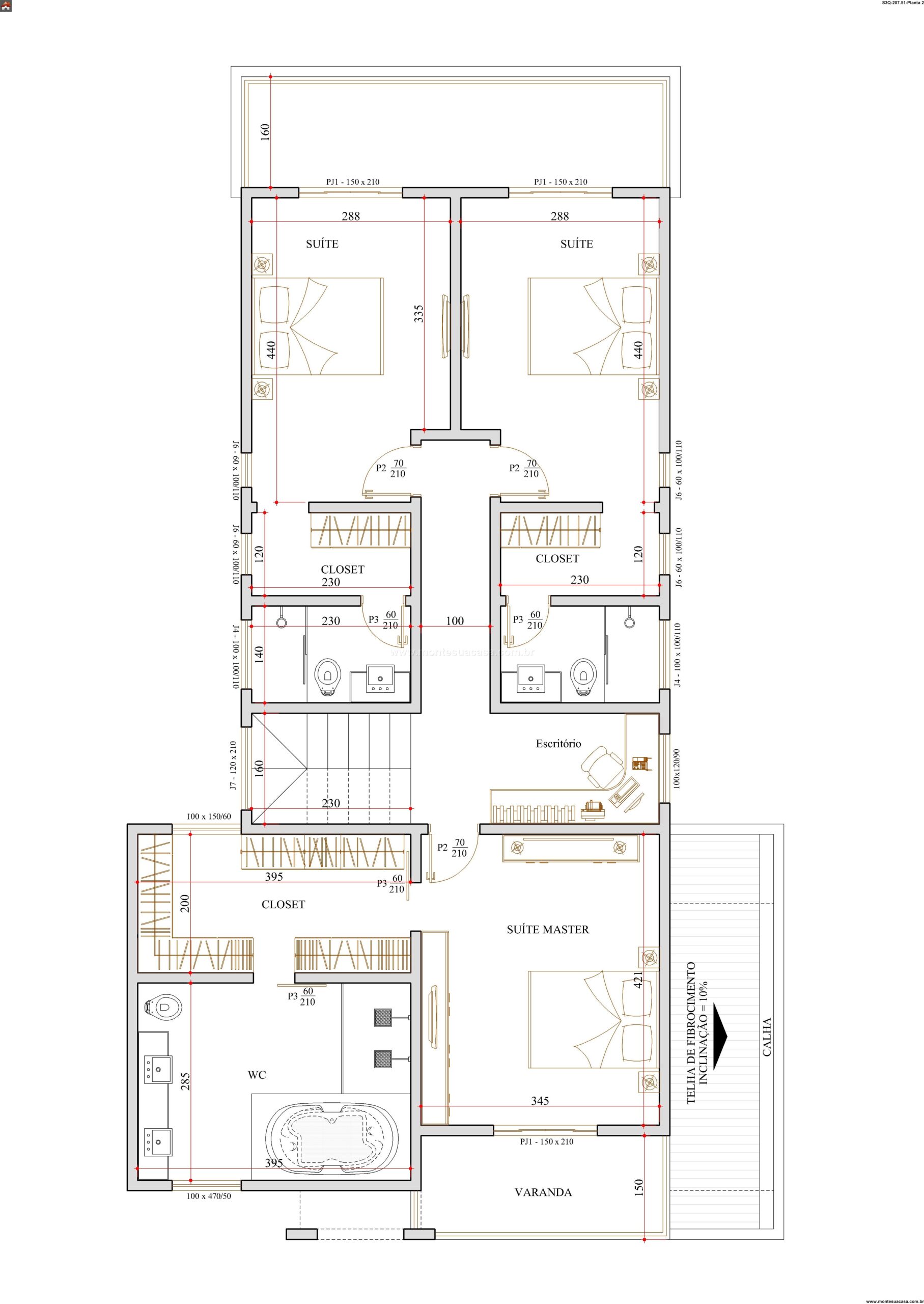
A área total de 207.51m² é composta por 115.41m² no pavimento térreo e 92.10m² no pavimento superior. Esta divisão estratégica separa claramente os ambientes sociais e íntimos, promovendo privacidade e tranquilidade. A suíte principal, um destaque do projeto, conta com um closet espaçoso de 230cm, oferecendo amplo armazenamento e organização. Os demais dois dormitórios são igualmente confortáveis, garantindo um retrato fiel do estilo de vida moderno.
Integração e Conectividade
A planta valoriza a fluidez entre os cômodos, criando uma sensação de amplitude e continuidade. Os espaços de convívio no térreo se integram de forma coesa, ideal para receber visitas e desfrutar de momentos em família. A circulação foi cuidadosamente projetada para conectar os ambientes de maneira intuitiva e eficiente. Além disso, o projeto inclui uma edícula de 36.44m², que pode funcionar como escritório, espaço para hóspedes ou área de lazer, agregando versatilidade ao conjunto.
Conceito e Finalização
O partido arquitetônico prioriza a iluminação natural e a ventilação cruzada, reduzindo o consumo de energia e promovendo um ambiente saudável. Os materiais especificados buscam o equilíbrio entre durabilidade e estética, resultando em um visual sofisticado e atemporal. Este sobrado de 207.51m² com três quartos representa a síntese de um lar moderno, onde cada metro quadrado foi pensado para criar experiências memoráveis.












Avaliações
Não há avaliações ainda.