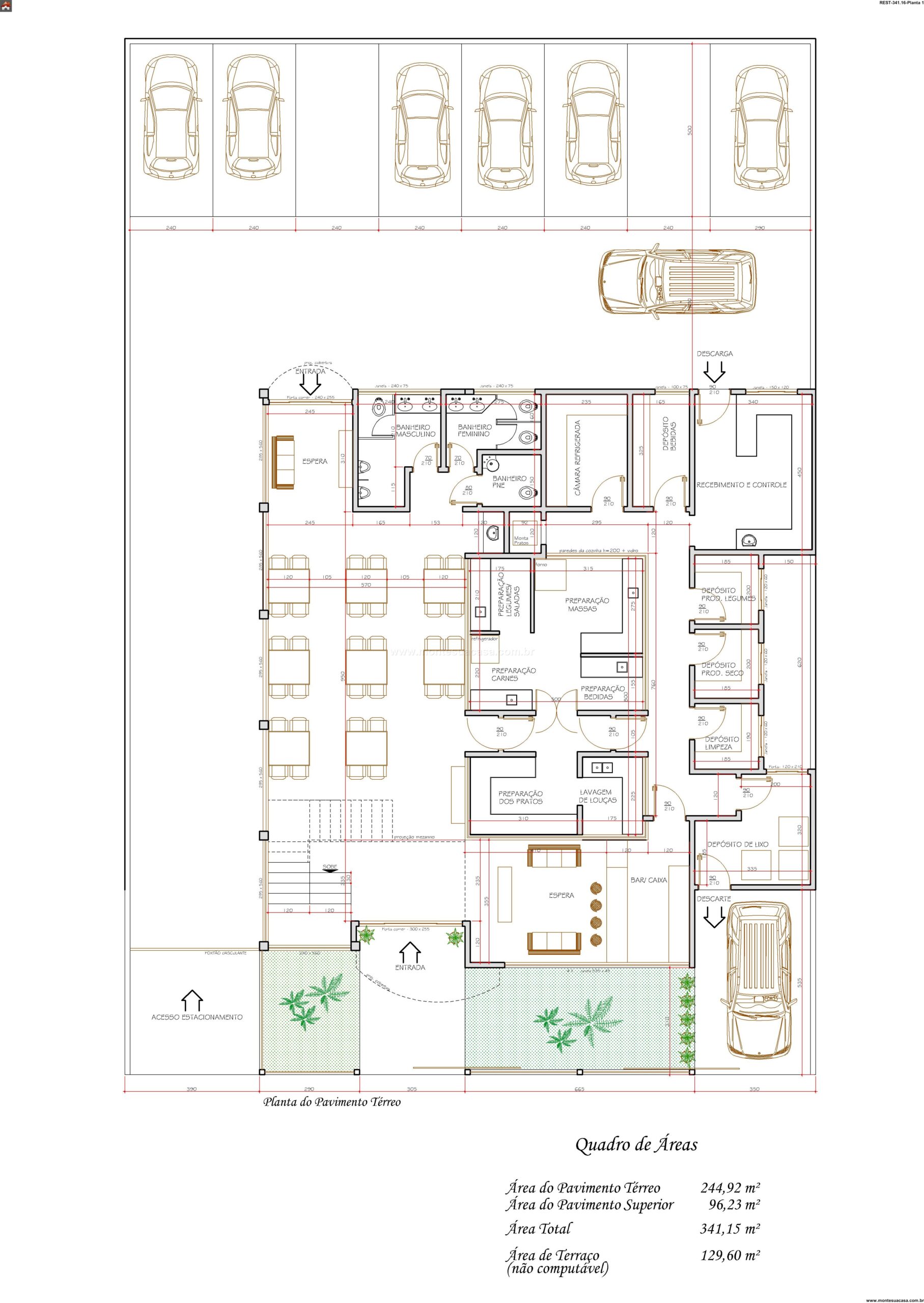
Descrição
Conceito e Experiência Gastronômica
Este projeto de restaurante bistro moderno foi meticulosamente planejado para oferecer uma experiência gastronômica completa e memorável. Com uma área total de 341.16m², o estabelecimento se espalha por dois andares, culminando em um terraço convidativo. A proposta arquitetônica prioriza a fluidez entre os ambientes, criando percursos intuitivos para clientes e funcionários. O design integra um ambiente interno aconchegante a um espaço externo vibrante, atendendo a diferentes preferências de clima e ocasião. Cada detalhe foi pensado para harmonizar estética, funcionalidade e conforto, resultando em um local perfeito para refeições descontraídas ou celebrações especiais.
Pavimento Térreo: Recepção e Ambiente Principal
O primeiro andar recebe os clientes com uma generosa área de espera, conectando-se diretamente a um bar charmoso e funcional. Este nível abriga o salão principal com capacidade para 32 lugares, proporcionando uma atmosfera íntima e acolhedora. A cozinha, totalmente equipada e com layout profissional, garante eficiência operacional para a equipe. A comodidade dos clientes é atendida por três banheiros completos e independentes, sendo um masculino, um feminino e um acessível (PNE), assegurando inclusividade desde a entrada.
Pavimento Superior e Terraço Gourmet
Subindo para o segundo pavimento, os clientes descobrem um ambiente igualmente sofisticado, com outro salão para 32 lugares. Um bar estratégico atende tanto a este salão interno quanto ao movimentado terraço, otimizando o serviço. O grande destaque deste andar é o extenso terraço, que oferece 60 lugares ao ar livre. Este espaço gourmet é ideal para eventos e para desfrutar de momentos agradáveis em diferentes períodos do dia. A independência do pavimento superior é reforçada por mais três banheiros, replicando a configuração do térreo para máxima conveniência.
Valor do Projeto e Conclusão
O projeto valoriza a experiência do cliente em todos os níveis, criando zonas distintas que se complementam perfeitamente. A circulação bem resolvida entre os ambientes internos e o terraço promove um fluxo natural de pessoas. O resultado é um restaurante versátil, pronto para operar com alta eficiência e oferecer um serviço de excelência em um ambiente arquitetonicamente notável.









Avaliações
Não há avaliações ainda.