Descrição
Este projeto de sobrado de 3 quartos com 163,84m² oferece uma proposta arquitetônica moderna, funcional e voltada para o conforto familiar. Com dois pavimentos bem distribuídos, o imóvel valoriza a integração entre os ambientes internos e externos, criando uma experiência residencial completa.
Fachada contemporânea e materiais nobres A fachada combina telhado cerâmico, revestimentos em pedra natural e amplas esquadrias de vidro, resultando em uma estética sofisticada e acolhedora. As varandas com guarda-corpo em vidro ampliam a sensação de leveza e conectam os ambientes superiores à paisagem externa.
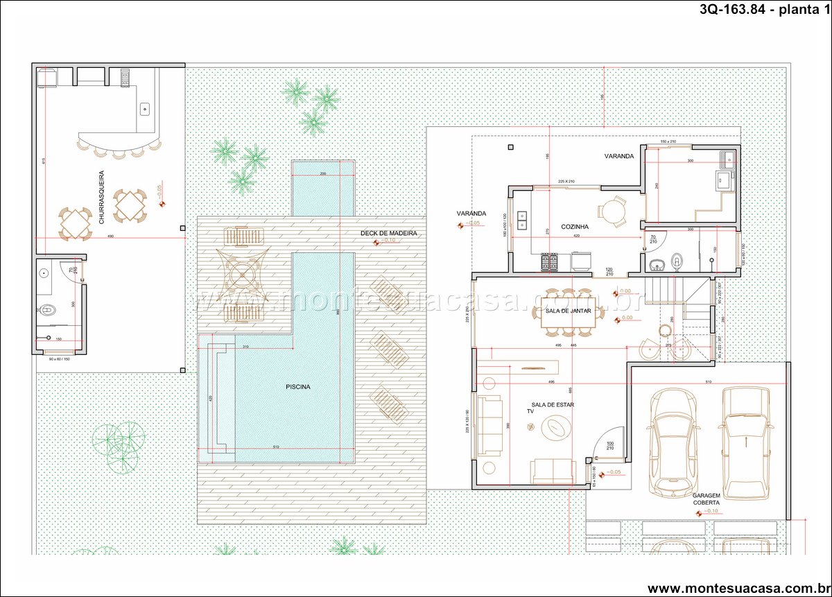
Distribuição inteligente dos cômodos O pavimento térreo abriga sala de estar com TV, sala de jantar, cozinha funcional e varanda integrada ao espaço gourmet. A garagem coberta comporta até três veículos com acesso direto à área social. No andar superior, o projeto contempla três dormitórios, sendo uma suíte com closet e varanda privativa, além de um escritório ideal para trabalho remoto. Os banheiros são posicionados estrategicamente para atender com praticidade todos os ambientes.
Lazer e convivência ao ar livre A área externa é um verdadeiro convite ao relaxamento. A piscina em formato L é cercada por um deck de madeira, espreguiçadeiras e guarda-sol, criando um ambiente perfeito para momentos de lazer. A churrasqueira coberta e o espaço gourmet permitem confraternizações em qualquer estação. O paisagismo tropical, com palmeiras e pedras decorativas, complementa o cenário com charme e frescor.
Conforto e funcionalidade em cada detalhe Com excelente ventilação cruzada, iluminação natural abundante e circulação fluida, este projeto proporciona bem-estar em todos os ambientes. A integração entre áreas sociais e de lazer reforça o conceito de morar com qualidade, estilo e praticidade.

















Avaliações
Não há avaliações ainda.