Descrição
Fachada moderna e elegante
O projeto 3Q-129.03 apresenta um sobrado de linhas harmoniosas e fachada imponente, ideal para quem busca conforto e sofisticação em cada detalhe. A combinação de telhado escuro com revestimento em pedras naturais e amplas varandas com guarda-corpo de vidro reforça o estilo contemporâneo da residência. Essa composição garante não apenas beleza estética, mas também funcionalidade, valorizando o imóvel e integrando-o de forma elegante ao ambiente externo.
Ambientes integrados e bem distribuídos
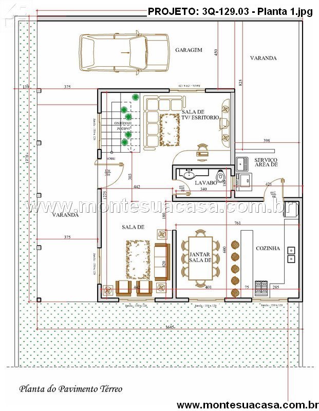
No pavimento térreo, o destaque é a ampla sala de estar integrada à sala de jantar, criando um ambiente fluido e convidativo para receber familiares e amigos. A cozinha, posicionada estrategicamente ao lado da área de jantar, oferece praticidade no dia a dia. O projeto também conta com uma sala de TV ou escritório, lavabo, lavanderia e garagem coberta para um veículo, garantindo conforto e funcionalidade em todos os espaços.
Conforto e privacidade no pavimento superior
O pavimento superior concentra a área íntima da casa, composta por três dormitórios, sendo uma suíte com closet e acesso direto à sacada coberta, além de dois quartos amplos e um banheiro social. O destaque fica por conta da sacada posterior com piscina, um verdadeiro espaço de lazer privativo que proporciona relaxamento e momentos agradáveis ao ar livre, com total privacidade e vista privilegiada.
Integração com o lazer
A varanda frontal e lateral conecta-se naturalmente à área gourmet e à piscina no pavimento superior, oferecendo uma excelente área de convivência. Essa integração entre os ambientes internos e externos proporciona sensação de amplitude, ventilação natural e luminosidade em todos os cômodos.
Projeto versátil e ideal para famílias
Com 129 m², o sobrado 3Q-129.03 é perfeito para famílias que desejam um lar funcional e moderno, com espaços planejados para o bem-estar. O design valoriza a convivência, a ventilação cruzada e a iluminação natural, tornando cada ambiente agradável e acolhedor.














Avaliações
Não há avaliações ainda.