Descrição
Sobrado moderno de 3 quartos com distribuição inteligente
Este sobrado de 97.52m² foi projetado para quem precisa de funcionalidade, conforto e um layout eficiente em um terreno compacto. A planta valoriza a integração dos espaços no pavimento térreo e garante privacidade total no pavimento superior. A fachada apresenta linhas retas, materiais simples e uma composição equilibrada, criando um visual contemporâneo e acessível para diferentes contextos urbanos.
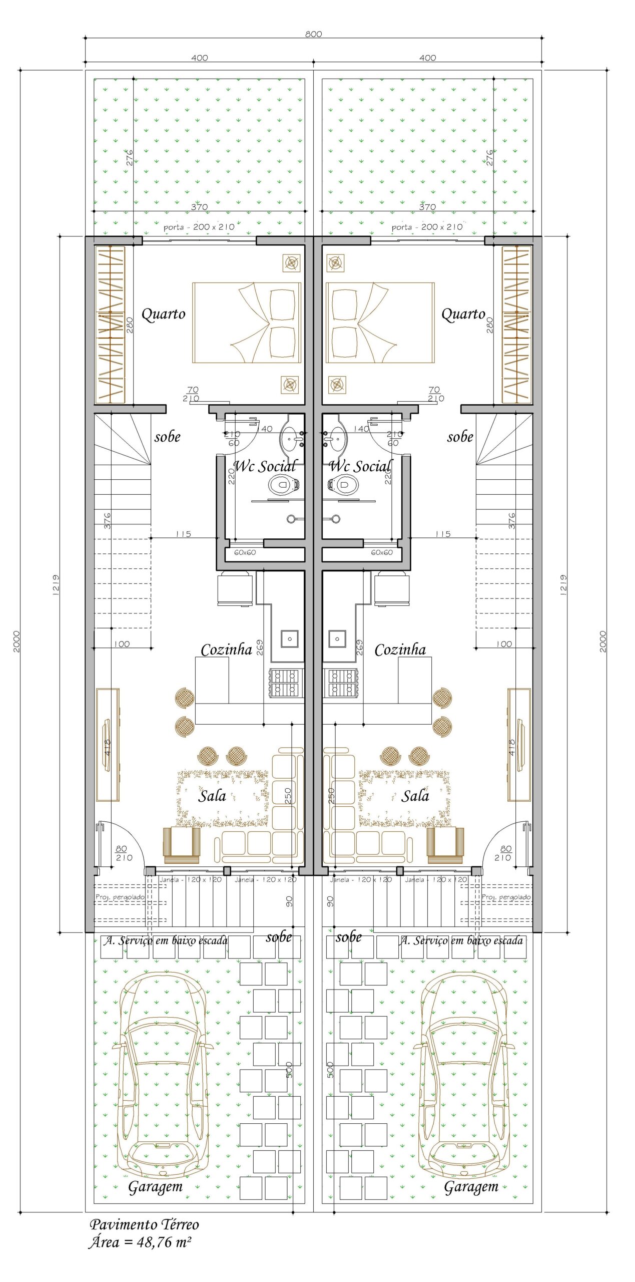
Pavimento térreo com ambientes integrados
O acesso principal conduz diretamente à sala de estar, que se integra à cozinha em um ambiente contínuo. Essa solução proporciona amplitude, favorece a ventilação cruzada e oferece um espaço central confortável para o convívio diário. A escada, localizada lateralmente, libera a parte frontal para a garagem e mantém o fluxo de circulação organizado. Sob ela encontra-se a área de serviço, bem posicionada para facilitar o uso e evitar interferências no ambiente social.
Pavimento superior com suíte e dois dormitórios
A área íntima foi planejada para famílias que precisam de três dormitórios bem distribuídos. A suíte frontal oferece excelente iluminação natural, espaço para armários amplos e conforto para o casal. Os outros dois quartos atendem crianças, hóspedes ou home office, mantendo circulação eficiente e banheiros posicionados de forma estratégica. Cada ambiente aproveita a largura disponível sem comprometer ergonomia ou circulação.
Ventilação e iluminação otimizadas
As aberturas foram dimensionadas para garantir desempenho térmico adequado. A fachada frontal recebe iluminação uniforme, enquanto a parte posterior preserva privacidade. Os banheiros possuem ventilação garantida por shafts que mantêm o projeto funcional mesmo em lotes geminados.
Garagem funcional e paisagismo simples
A garagem frontal acomoda um veículo com facilidade e ainda permite integração com uma pequena área ajardinada. Essa solução cria uma recepção mais agradável e reforça a estética do conjunto.
Projeto ideal para construção econômica
Este sobrado atende famílias que buscam um imóvel compacto, moderno e com três dormitórios completos. A planta permite execução rápida, custo controlado e adaptações conforme o cliente, sem comprometer a estética ou o desempenho.









Avaliações
Não há avaliações ainda.