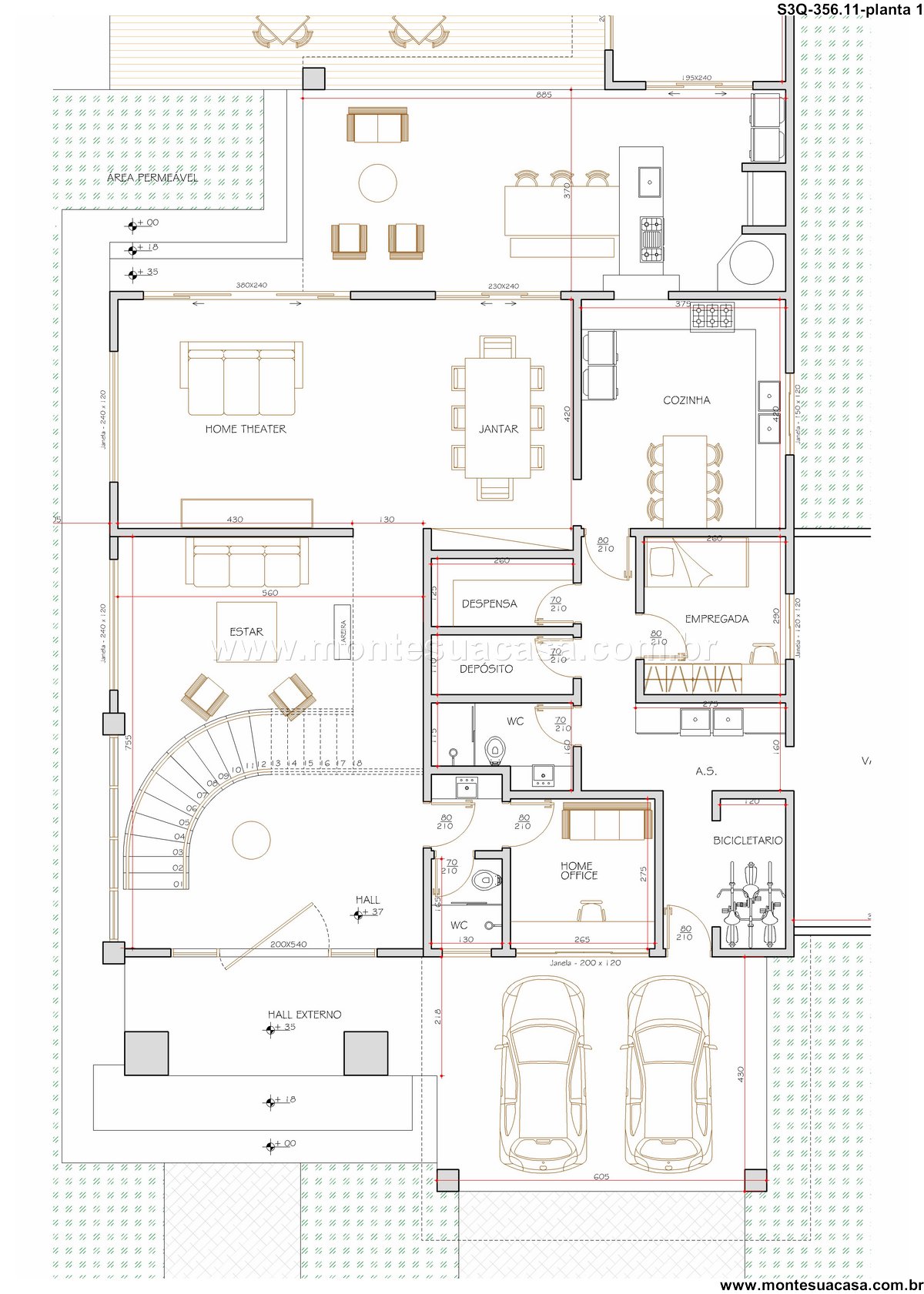
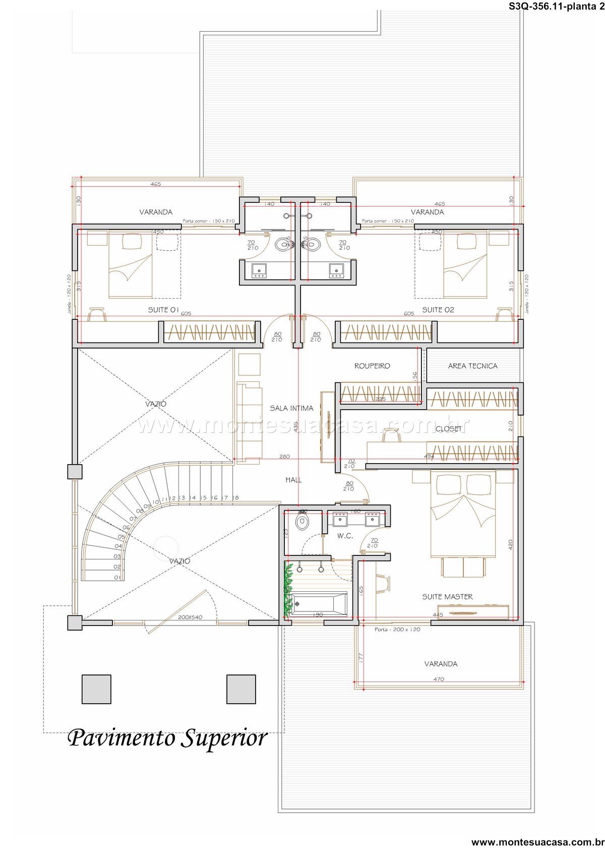
Descrição
Este sobrado moderno de 356.11m2 foi meticulosamente planejado para oferecer uma experiência de vida única, harmonizando espaços amplos e funcionais com um design contemporâneo. A planta inteligente distribui os ambientes em diferentes níveis, criando uma sensação de privacidade e organização. A fachada imponente já anuncia o refinamento que se encontra no interior da residência.
Conceito e Integração
O projeto prioriza a integração perfeita entre os ambientes internos e externos. Os espaços sociais fluem naturalmente, promovendo convívio e praticidade no dia a dia. A iluminação natural foi estrategicamente aproveitada para criar atmosferas aconchegantes durante todo o dia. Os materiais escolhidos combinam alta durabilidade com um apelo estético moderno.
Área Social Completa
O coração da casa é uma ampla área social que reúne living, sala de jantar e um moderno espaço gourmet integrado à cozinha. Este layout é perfeito para receber amigos e familiares. A cozinha, funcional e bem equipada, conta com despensa, área de serviço e depósito, garantindo total praticidade. Um destaque especial é o home theater privativo, oferecendo cinema em casa com máximo conforto.
Comodidade e Lazer
A residência oferece três quartos, sendo uma suíte master, proporcionando privacidade para a família. A comodidade é ampliada com lavabo, bicicletário e um hall externo. Cada detalhe foi pensado para otimizar a rotina, desde a organização da área de serviço com quarto de empregada até o aproveitamento inteligente de cada metro quadrado. O projeto é uma solução completa para quem busca qualidade de vida.
Este sobrado moderno representa o equilíbrio perfeito entre estilo de vida contemporâneo e funcionalidade familiar. Seu layout inteligente e amenities integradas criam um refúgio personalizado. A atmosfera acolhedora e os espaços bem distribuídos fazem desta residência um lugar especial para criar memórias.
















Avaliações
Não há avaliações ainda.