Descrição
Edifício residencial com seis apartamentos de alto padrão Este projeto arquitetônico apresenta um edifício moderno com seis apartamentos de três suítes, distribuídos em três pavimentos tipo. Cada andar abriga duas unidades simétricas, de 170,13 cada apartamento, totalizando uma área de 340,27m² por pavimento. A proposta é ideal para empreendimentos residenciais voltados ao público que valoriza conforto, privacidade e sofisticação.
Apartamentos com três suítes e espaços integrados Cada unidade oferece três suítes amplas, sala de estar, cozinha funcional, área de serviço e espaço gourmet conectado à varanda. A planta favorece a integração dos ambientes sociais, criando espaços perfeitos para convivência familiar e recepção de convidados. A disposição inteligente das suítes garante privacidade e permite acabamentos personalizados.
Infraestrutura de lazer no térreo O pavimento térreo foi projetado para oferecer uma área comum completa, com salão de festas, salão de jogos, academia equipada, lounge de recepção e playground ao ar livre. Esses ambientes promovem bem-estar e fortalecem o senso de comunidade entre os moradores, agregando valor ao empreendimento.
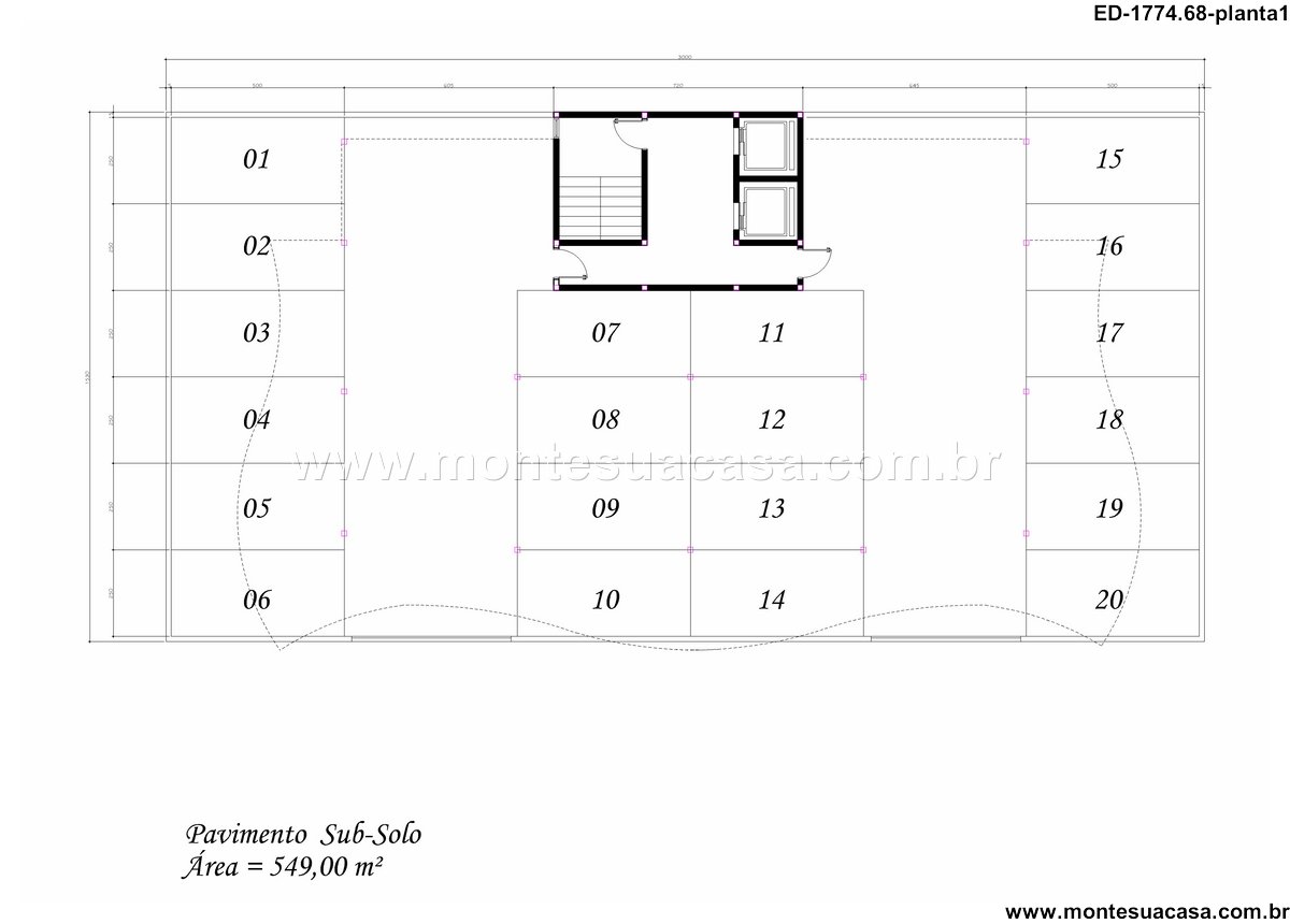
Garagem subterrânea com 20 vagas O subsolo do edifício conta com 20 vagas de estacionamento distribuídas ao redor do núcleo vertical, que abriga escadas e elevadores. A circulação de veículos foi planejada para garantir segurança e praticidade, com acessos bem definidos e fluxo eficiente.
Fachada contemporânea e identidade visual marcante A fachada do prédio combina elementos horizontais em azul com um volume central que destaca o núcleo vertical. O topo curvo adiciona sofisticação ao conjunto, tornando o edifício um marco visual no entorno urbano. A estética moderna reforça o posicionamento do projeto como uma opção de alto padrão.
Solução ideal para investidores e construtoras Este projeto é altamente atrativo para quem busca empreendimentos multifamiliares com excelente aproveitamento de área, infraestrutura completa e alto valor agregado. A planta favorece a personalização dos acabamentos e atende às exigências do mercado imobiliário contemporâneo.










Avaliações
Não há avaliações ainda.