Descrição
Este projeto arquitetônico de 737,59m² apresenta um hotel urbano contemporâneo, ideal para quem busca sofisticação, funcionalidade e alto padrão de hospitalidade. Com quatro pavimentos bem distribuídos, o empreendimento oferece 14 suítes confortáveis, dois restaurantes e um bar panorâmico no terraço, criando uma experiência completa para hóspedes e visitantes.
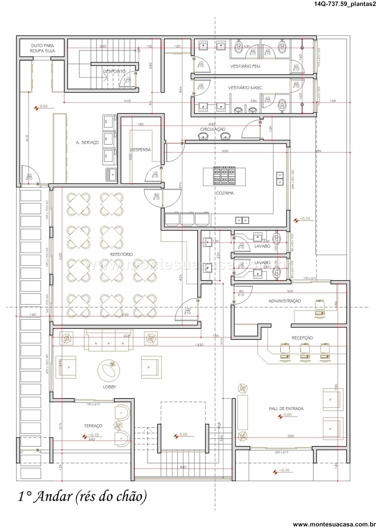
Pavimento térreo: recepção e restaurante principal O térreo foi projetado para acolher com elegância. A recepção e o lobby garantem uma chegada imponente, enquanto a área administrativa e os banheiros para hóspedes oferecem suporte funcional. A cozinha completa atende com eficiência o restaurante principal, que acomoda até 40 pessoas em um ambiente climatizado e bem distribuído. O vestiário para funcionários assegura a operação profissional do serviço.
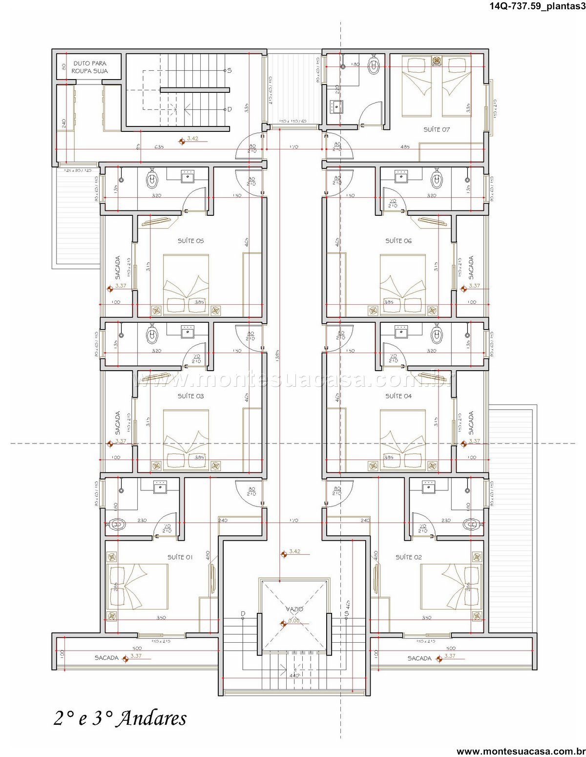
Segundo e terceiro andares: suítes privativas Cada um dos dois pavimentos intermediários abriga sete suítes, totalizando 14 unidades. As suítes são amplas, bem ventiladas e equipadas com sacadas privativas, proporcionando conforto e privacidade. A circulação vertical é facilitada por escadas e elevador, e o duto para roupa suja otimiza a rotina de manutenção.
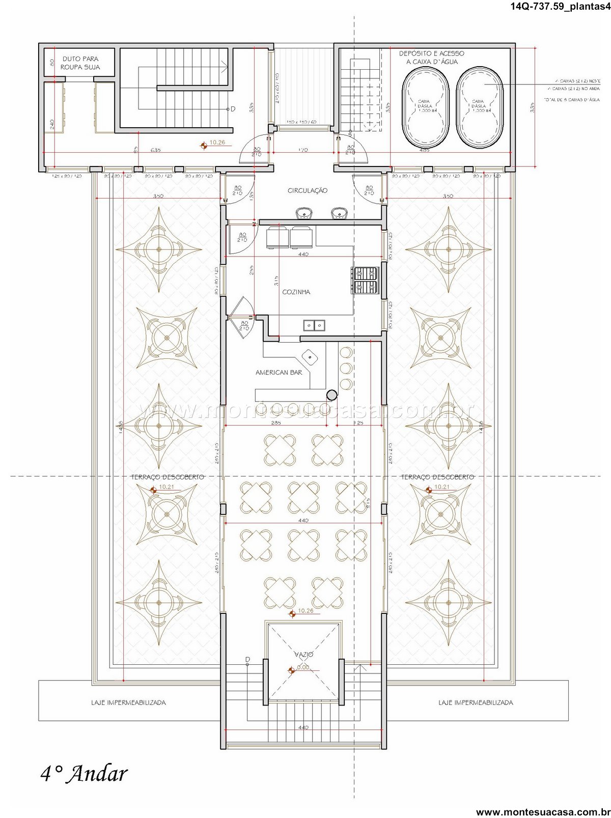
Quarto andar: rooftop com restaurante e bar O destaque do projeto está no quarto andar, onde o rooftop abriga um segundo restaurante com capacidade para 80 pessoas — 40 no salão interno e 40 no terraço descoberto. O bar integrado ao terraço oferece uma vista privilegiada e ambiente descontraído para eventos sociais e momentos de lazer. A laje impermeabilizada garante segurança estrutural, enquanto o mobiliário externo com mesas, cadeiras e guarda-sóis reforça o clima acolhedor.
Design moderno e fachada marcante A fachada do hotel combina elementos em branco, preto e cinza, com painéis verticais e varandas envidraçadas que valorizam o estilo contemporâneo. O paisagismo sutil na entrada complementa a estética urbana e convida à experiência de hospedagem diferenciada.














Avaliações
Não há avaliações ainda.