Descrição
Este imponente sobrado contemporâneo de 323.77m² foi meticulosamente planejado para oferecer uma experiência de vida familiar única. Através de um layout inteligente, o projeto harmoniza espaços de convívio e privacidade com maestria. A fachada modernista já indica o requinte e a funcionalidade que se encontram no interior da residência.
Conceito e Integração
O conceito arquitetônico prioriza a integração perfeita entre os ambientes. Dessa forma, a circulação fluida entre os cômodos cria uma sensação de amplitude e continuidade. A luz natural invade os espaços generosos, destacando os acabamentos de qualidade. Além disso, os materiais escolhidos conferem durabilidade e um charme contemporâneo à construção.
Área Social e Lazer
O coração da casa é a área social, projetada para reunir a família e os amigos. A varanda se integra perfeitamente ao interior, ampliando o espaço de entretenimento. Um espaço gourmet bem equipado é ideal para refeições descontraídas e eventos. A presença de um reservatório de água garante autonomia e praticidade para o dia a dia. Ademais, a área de lazer é completa, prometendo momentos de descontração e diversão para todas as idades.
Conforto e Privacidade
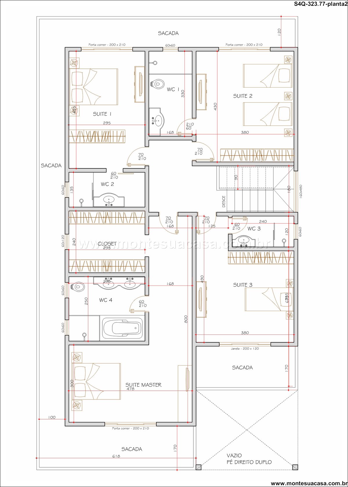
Os quatro quartos oferecem refúgios de paz e tranquilidade para a família. O projeto garante privacidade aos moradores, com os dormitórios distribuídos de forma estratégica. Os banheiros são funcionais e contam com ventilação e iluminação adequadas. A organização espacial assegura que cada membro da família tenha seu próprio espaço. Por conseguinte, o sobrado é um verdadeiro santuário de conforto e bem-estar.
Funcionalidades e Tecnologia
A residência incorpora soluções modernas para uma vida prática e eficiente. Um reservatório de água assegura o abastecimento regular para toda a família. A instalação de um sereador elétrico demonstra a atenção aos detalhes e ao conforto. A garagem possui dimensões que acomodam veículos com facilidade e segurança. Todas essas funcionalidades se unem para criar um lar que valoriza o seu tempo e a sua comodidade. Este projeto é a definição de um estilo de vida moderno e sofisticado.














Avaliações
Não há avaliações ainda.