Descrição
Este sobrado contemporâneo de 233.27m² materializa uma visão moderna de moradia, distribuída em dois pavimentos e abrigando três confortáveis quartos. A arquitetura privilegia linhas limpas e volumes bem definidos, resultando em uma fachada com personalidade marcante. A integração entre os ambientes internos e externos é um princípio fundamental, garantindo amplitude visual e uma constante entrada de luz natural. Consequentemente, a casa respira uma atmosfera acolhedora e ao mesmo tempo sofisticada.
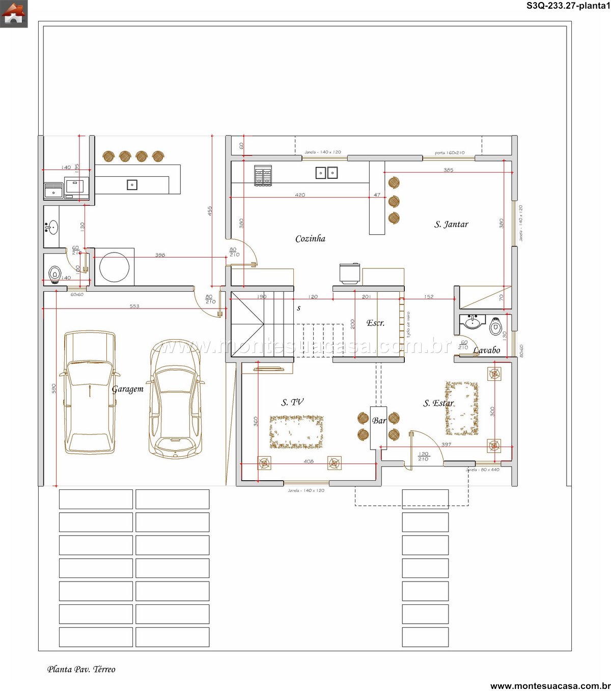
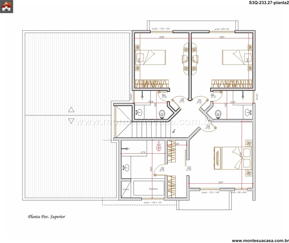
O projeto aproveita inteligentemente a metragem para oferecer um layout fluido e altamente funcional. Os ambientes sociais se conectam de maneira harmoniosa, promovendo a convivência e facilitando o dia a dia. A circulação foi cuidadosamente planejada para eliminar desperdícios de espaço, criando percursos lógicos e confortáveis entre os cômodos. Além disso, a privacidade dos dormitórios é respeitada, criando zonas bem definidas para descanso e atividades sociais.
A fachada deste sobrado impressiona pela composição equilibrada de materiais e texturas. Elementos vazados e cheios se alternam, criando um jogo visual dinâmico e contemporâneo. Grandes esquadrias de vidro não apenas permitem a desejada integração com o jardim, mas também enriquecem a estética externa. O resultado é uma fachada que transmite solidez e modernidade, com um acabamento impecável que valoriza cada detalhe.
O interior é caracterizado por ambientes amplos e iluminados, onde o conforto e a praticidade andam de mãos dadas. A sala de estar e jantar se fundem em um único espaço generoso, perfeito para receber amigos e familiares. A cozinha, integrada à área gourmet, torna-se o coração da casa, ideal para quem adora cozinhar e entreter. Os três quartos, incluindo uma suíte master, são verdadeiros refúgios de paz, com iluminação zen e projetos de armários sob medida.
A materialidade do projeto foi selecionada com rigor para garantir durabilidade e um visual atemporal. Pisos porcelânicos de grande formato estendem-se pela maior parte da casa, proporcionando continuidade e facilitando a limpeza. As esquadrias em alumínio preto emolduram as belas vistas e garantem alta performance térmica e acústica. Toques de madeira nas esquadrias e nos detalhes do mobiliário incorporam calor e aconchego aos ambientes, criando um contraste perfeito com os tons neutros predominantes.
Este projeto vai além da estética, priorizando o bem-estar e a funcionalidade para uma vida moderna. A planta foi desenvolvida para atender às necessidades de uma família dinâmica, oferecendo espaços tanto para a agitação quanto para o merecido descanso. A tecnologia é integrada de forma discreta, com previsão para iluminação inteligente e automação residencial básica. Em resumo, esta residência é a materialização de um estilo de vida que valoriza o design, o conforto e a qualidade de vida em todos os seus aspectos.














Avaliações
Não há avaliações ainda.