Descrição
Sobrado moderno e funcional para famílias que valorizam conforto e integração
Com área total de 159,10 m², este sobrado moderno oferece um layout equilibrado entre privacidade e convivência. O projeto foi desenvolvido para famílias que buscam uma casa ampla, com quatro dormitórios bem distribuídos e ambientes sociais integrados, proporcionando praticidade e elegância no dia a dia.
Ambientes amplos e integrados no pavimento térreo
O pavimento térreo, com 79,55 m², reúne os principais ambientes de convivência da casa. A sala de estar, localizada na parte frontal, é iluminada por amplas aberturas, garantindo conforto térmico e visual. Integrada a ela, a sala de jantar conecta-se diretamente à cozinha, permitindo interação entre os espaços. A cozinha, em formato funcional, oferece acesso direto à lavanderia, que fica estrategicamente posicionada nos fundos, garantindo praticidade nas tarefas diárias. Um lavabo próximo à sala íntima completa o pavimento, proporcionando comodidade aos moradores e visitantes.
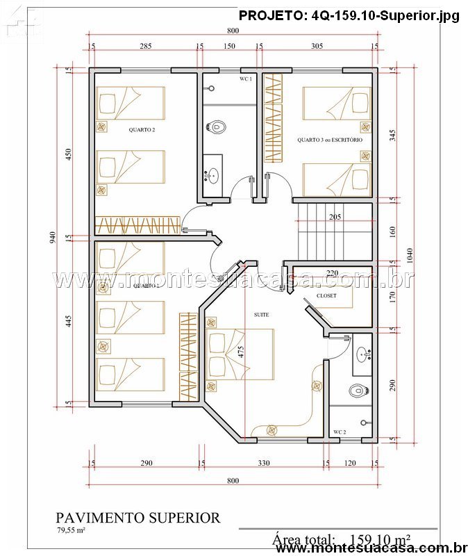
Área íntima completa e confortável no pavimento superior
O andar superior abriga a área íntima da residência, composta por quatro dormitórios, sendo uma suíte master com closet e banheiro privativo. O quarto principal destaca-se pelo design diferenciado e pela excelente iluminação natural. Os demais quartos compartilham um banheiro social centralizado, garantindo fácil acesso para todos os moradores. Um dos dormitórios pode ser adaptado como escritório, atendendo famílias que necessitam de um espaço para home office.
Design contemporâneo e aproveitamento inteligente dos espaços
A volumetria moderna do sobrado, aliada à disposição funcional dos cômodos, valoriza a estética e a eficiência. Cada ambiente foi planejado para maximizar o uso da área construída, garantindo conforto, circulação fluida e ventilação cruzada. O resultado é um projeto versátil que se adapta tanto a terrenos urbanos estreitos quanto a lotes maiores, mantendo uma fachada elegante e imponente.
Ideal para quem busca equilíbrio entre beleza e praticidade
Com linhas retas e layout inteligente, o projeto 4Q-159.10 é a escolha ideal para famílias que desejam um lar moderno, confortável e funcional. O design valoriza o convívio familiar sem abrir mão da privacidade, tornando-se uma excelente opção para quem busca construir com eficiência e estilo.










Avaliações
Não há avaliações ainda.