Descrição
Este imponente sobrado moderno, com 322.06 metros quadrados de área construída, foi meticulosamente planejado para oferecer o máximo em conforto, funcionalidade e entretenimento para a família. A arquitetura contemporânea se destaca desde a fachada, prometendo uma experiência residencial única e completa. O projeto distribui harmonicamente os ambientes entre os pavimentos, criando uma fluidez que conecta áreas sociais, íntimas e de lazer.
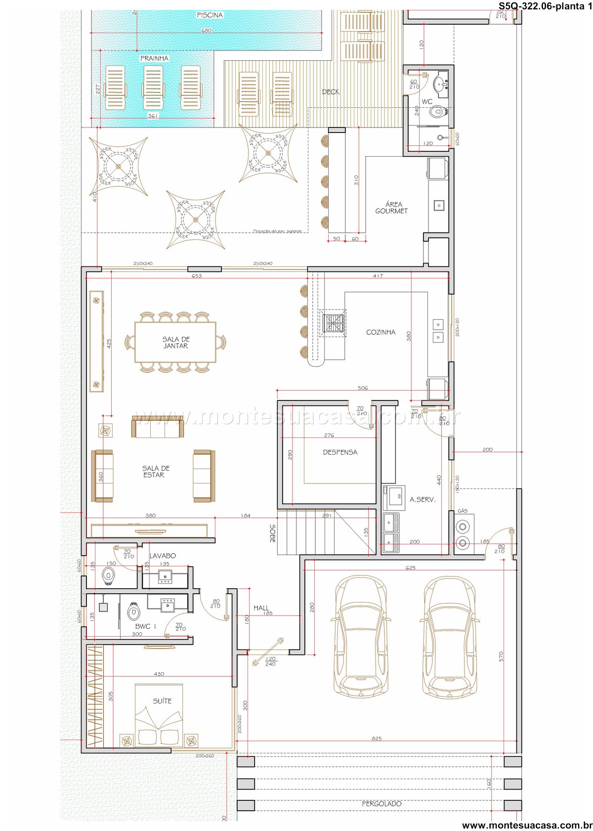
A área social do térreo é um convite ao convívio, integrando perfeitamente a sala de estar, a sala de jantar e a cozinha, todas com medidas generosas. A cozinha, com 10.00m², é um espaço prático e aconchegante, enquanto a sala de jantar, com 15.00m², garante momentos especiais em família. Destaque para a ampla área gourmet de 15.50m², um ambiente perfeito para receber amigos e desfrutar de refeições ao ar livre, conectada diretamente à piscina de impressionantes 19.50m². O pergolado de 18.75m² complementa esta área, oferecendo sombra e conforto.
No pavimento superior, a privacidade reina com cinco quartos, assegurando espaço para todos. O projeto inclui duas suítes, sendo a suíte O4 uma verdadeira suíte master, equipada com banheiro (BWC), closet e um dormitório adicional (DWC), criando um retiro privativo de luxo. A suíte O1 também oferece conforto e praticidade. Os demais quartos são bem distribuídos, compartilhando um banheiro social. A organização dos ambientes no andar superior prioriza o sossego e a individualidade dos moradores, com um hall de 6.00m² promovendo a circulação.
Além disso, a residência conta com uma série de cômodos de apoio que otimizam o dia a dia. A lavanderia de 5.40m² e o espaço de despensa de 8.10m² garantem praticidade, enquanto o banheiro de serviço de 4.50m² atende às áreas sociais. A garagem, com suas dimensões flexíveis (7.50/7.20m e 16.59/12.51m), proporciona amplo espaço para veículos. Cada detalhe foi pensado para criar um lar que combina estilo de vida moderno com a warmth de um verdadeiro lar.















Avaliações
Não há avaliações ainda.