Descrição
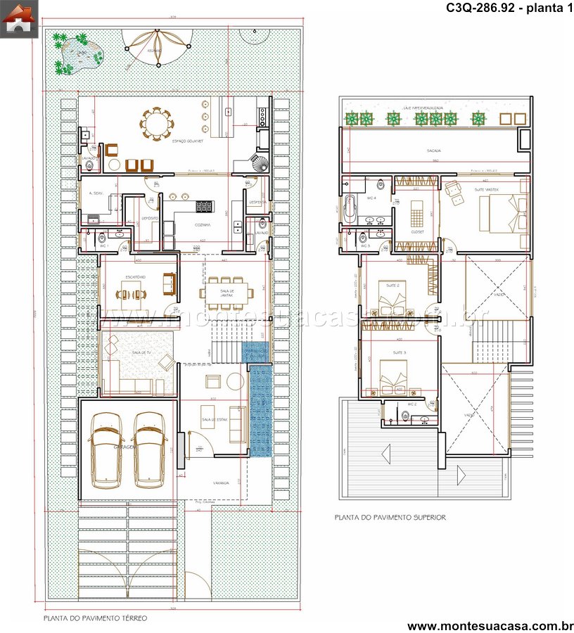
Este projeto de sobrado contemporâneo, com 286.92 metros quadrados, foi meticulosamente planejado para oferecer o máximo em conforto, funcionalidade e sofisticação. A residência se destaca pela sua volumetria moderna e pela integração harmoniosa entre os ambientes internos e externos, criando um fluxo suave e aconchegante para toda a família. Com três quartos bem distribuídos, o projeto atende perfeitamente às necessidades de uma vida moderna e dinâmica.
A fachada do sobrado já impressiona pela suas linhas limpas e composição de materiais. A entrada é convidativa e leva você diretamente para um amplo hall de entrada. A socialização é o coração desta casa, com uma grande sala de estar e jantar integradas. Esses ambientes fluem naturalmente para o moderno espaço gourmet, que se torna o ponto central para reuniões e refeições descontraídas. A cozinha, planejada e funcional, mantém uma conexão visual com a área social.
Os três quartos estão localizados em uma área mais privativa da casa. O suíte master é um verdadeiro refúgio, oferecindo amplo espaço, closet organizado e um banheiro privativo com acabamentos de alta qualidade. Os dois quartos secundários são igualmente confortáveis e compartilham um banheiro completo, bem localizado. A área íntima foi pensada para garantir tranquilidade e privacidade para todos os moradores.
A integração com o exterior é uma característica marcante deste projeto. A área gourmet se abre para um generoso terraço e a área de lazer, criando um ambiente perfeito para entreter amigos e desfrutar momentos em família. O projeto também preza pela iluminação e ventilação naturais, com grandes janelas e aberturas estrategicamente posicionadas. Cada detalhe foi cuidadosamente elaborado para criar uma casa que é ao mesmo tempo moderna, acolhedora e repleta de personalidade.






















Avaliações
Não há avaliações ainda.