Descrição
Conceito e Estilo Arquitetônico
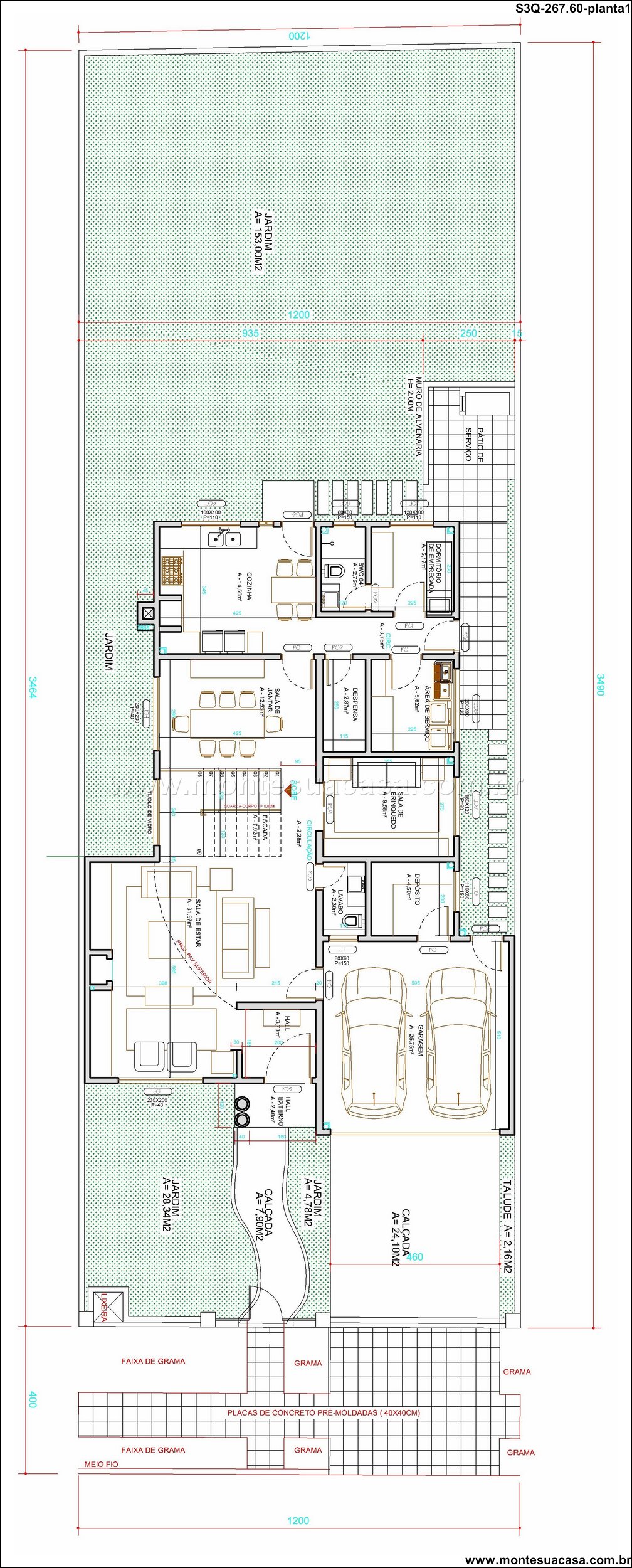
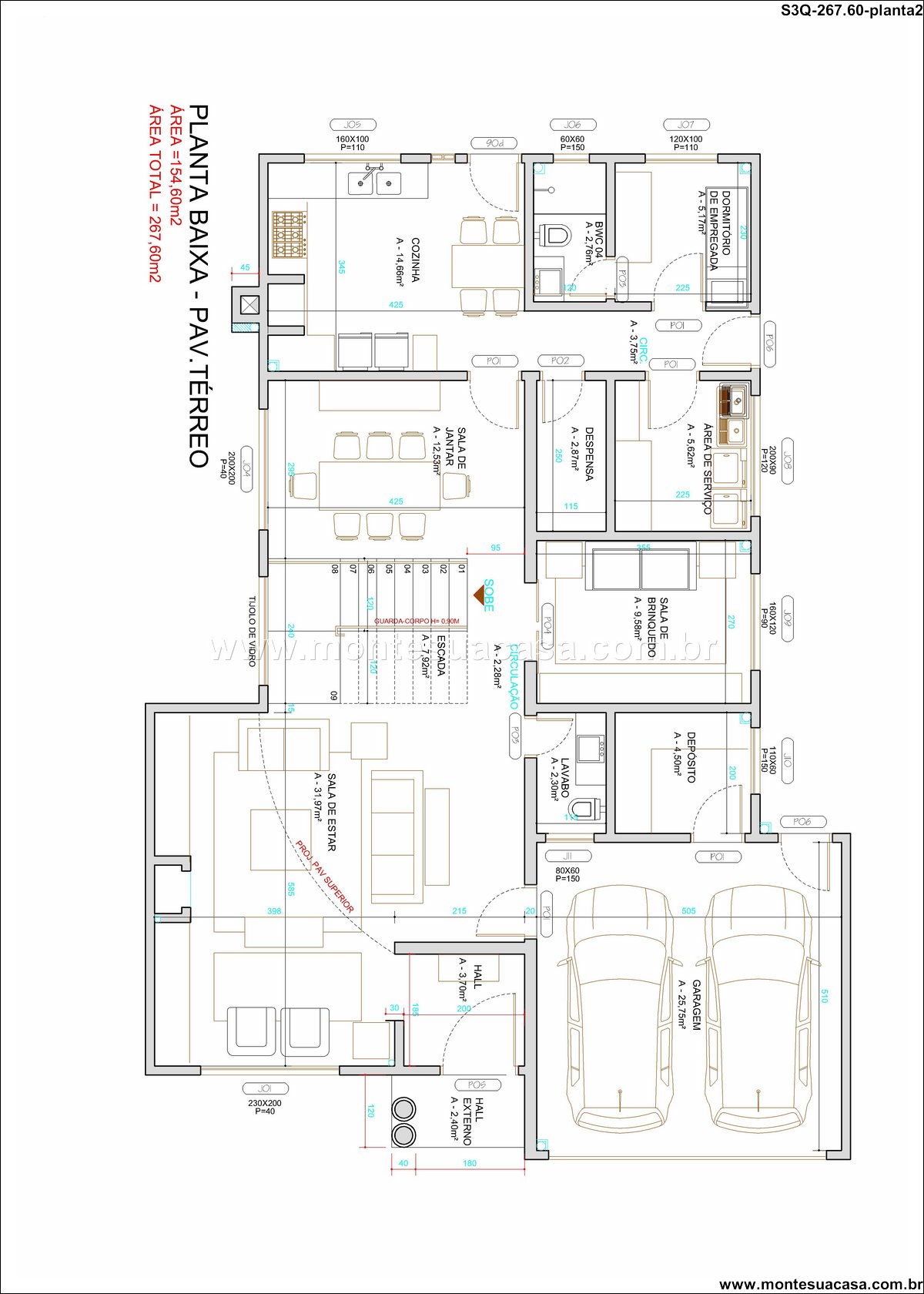
Este projeto de residência em sobrado, com uma área total construída de 267.60m², é a definição perfeita de um estilo de vida moderno e sofisticado. A arquitetura contemporânea se destaca através de linhas limpas e um aproveitamento inteligente do espaço. O design prioriza a integração entre os ambientes, criando uma sensação de amplitude e fluidez. Cada detalhe foi meticulosamente planejado para oferecer conforto, praticidade e uma estética visualmente atraente. A fachada provavelmente explora volumes interessantes e texturas que conferem personalidade única à construção.
Distribuição e Layout dos Ambientes
O pavimento superior, com 113.00m², abriga a zona íntima da residência, projetada para ser um refúgio de tranquilidade. Este andar é composto por três quartos, incluindo uma suíte master espaçosa. Os ambientes são organizados de forma a garantir privacidade e eficiência na circulação. A suíte principal oferece um retiro privativo com seu próprio closet e banheiro. Os demais quartos compartilham um banheiro social bem localizado, ideal para filhos ou visitas. A circulação entre os cômodos foi pensada para otimizar o dia a dia da família.
Integração e Conforto
A planta do pavimento superior demonstra uma clara preocupação com o bem-estar dos moradores. A área de 113.00m² é distribuída de maneira harmoniosa, evitando corredores excessivamente longos e aproveitando a iluminação natural. A localização dos quartos afasta os ruídos da área social, garantindo noites de sono mais tranquilas. Este projeto é ideal para famílias que buscam um lar organizado, onde cada membro tem seu espaço pessoal, sem abrir mão da convivência. A conexão entre os pavimentos é resolvida de forma prática, integrando a rotina da casa.











Avaliações
Não há avaliações ainda.