Descrição
Projeto arquitetônico moderno e funcional
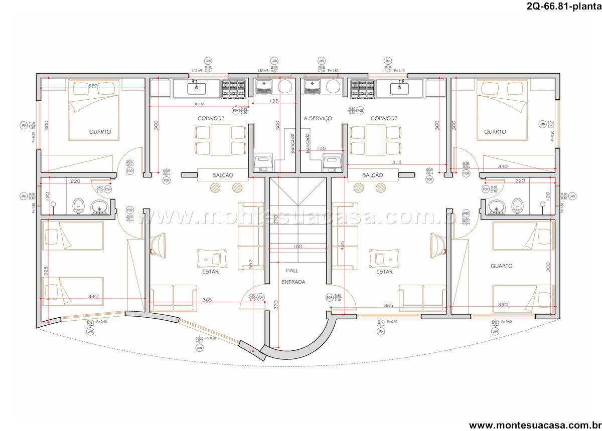
Este projeto apresenta um prédio compacto e elegante, composto por quatro apartamentos de dois quartos, cada um com 66,81m² de área privativa. A proposta valoriza a praticidade e o conforto, oferecendo unidades bem distribuídas que atendem às necessidades de famílias pequenas, casais ou investidores que buscam imóveis versáteis e de fácil manutenção.
Distribuição dos espaços
Cada apartamento foi planejado para otimizar a circulação e proporcionar ambientes integrados. A sala de estar conecta-se naturalmente à cozinha, criando um espaço social agradável e funcional. Os dois quartos oferecem privacidade e conforto, enquanto o banheiro central garante praticidade no dia a dia. A metragem de 66,81m² permite uma disposição equilibrada entre áreas sociais e íntimas, sem desperdício de espaço.
Conforto e praticidade
O prédio pode ser organizado em dois pavimentos com duas unidades por andar ou em quatro pavimentos com uma unidade por andar. Essa flexibilidade de implantação facilita a adaptação ao terreno disponível e às exigências urbanísticas locais. Além disso, áreas comuns como hall de entrada e escadas podem ser projetadas de forma compacta, mantendo a eficiência do conjunto.
Estilo arquitetônico
A fachada pode ser desenvolvida com linhas modernas, utilizando materiais como vidro, concreto aparente e revestimentos cerâmicos. Essa combinação transmite sofisticação e valoriza o empreendimento. O projeto também permite varandas ou pequenos espaços externos, ampliando a sensação de bem-estar dos moradores.
Viabilidade e investimento
Com área total de 267,24m², este prédio é ideal para quem deseja investir em imóveis de médio porte, garantindo boa rentabilidade e valorização. A tipologia de dois quartos é altamente procurada no mercado, tornando o projeto atrativo tanto para venda quanto para locação.










Avaliações
Não há avaliações ainda.