Descrição
Projeto de Sobrado com 3 Quartos e Área de Lazer Completa
Design Contemporâneo com Elegância e Funcionalidade
O projeto 3Q-254.56 é um sobrado moderno que combina linhas arquitetônicas marcantes e ambientes integrados, oferecendo conforto, requinte e praticidade. Com 254,56 m², este modelo foi idealizado para famílias que valorizam o convívio e buscam uma casa ampla, funcional e com áreas de lazer completas.
No pavimento térreo, o destaque está na ampla sala de estar e jantar integradas, com pé-direito duplo e grandes aberturas que proporcionam iluminação natural abundante. A cozinha é espaçosa e conta com despensa e área de serviço independente, garantindo organização e praticidade no dia a dia. O acesso à parte externa é feito por uma charmosa varanda coberta que leva à área gourmet com churrasqueira, perfeita para confraternizações.
Lazer e Conforto em Todos os Detalhes
O terreno foi otimizado para incluir uma piscina com spa e deck de madeira, harmonizando o lazer e a sofisticação. Há ainda um salão de festas integrado ao espaço da piscina, ideal para eventos familiares e sociais. O projeto conta com garagem coberta para dois carros, depósito e acesso independente para serviços.
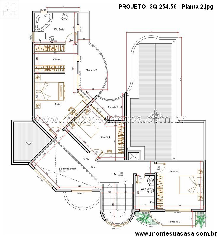
Privacidade e Tranquilidade na Área Íntima
No pavimento superior, encontram-se os três dormitórios, sendo uma suíte master com closet, banheira de hidromassagem e sacada privativa, que garante conforto e privacidade ao casal. Os outros dois quartos são amplos, bem ventilados e compartilham um banheiro social. Duas sacadas frontais permitem uma vista agradável e favorecem a ventilação cruzada, mantendo os ambientes sempre frescos e iluminados.
Estilo Sofisticado e Fachada Imponente
A fachada é marcada por volumes geométricos e o uso de vidro em grandes proporções, transmitindo leveza e imponência. O destaque fica para o volume cilíndrico de vidro curvo, que integra o hall de entrada com o pé-direito duplo. As varandas com guarda-corpo em vidro e o telhado cerâmico tradicional equilibram o moderno e o acolhedor, tornando o design atemporal e elegante.
Eficiência e Beleza Arquitetônica
O sobrado 3Q-254.56 une estética e funcionalidade em um projeto completo, pensado para oferecer bem-estar, lazer e harmonia. É a escolha ideal para quem deseja morar com conforto e estilo, em um lar projetado para valorizar cada momento em família.















Avaliações
Não há avaliações ainda.