Descrição
Conjunto residencial planejado para terreno de 16×16 metros
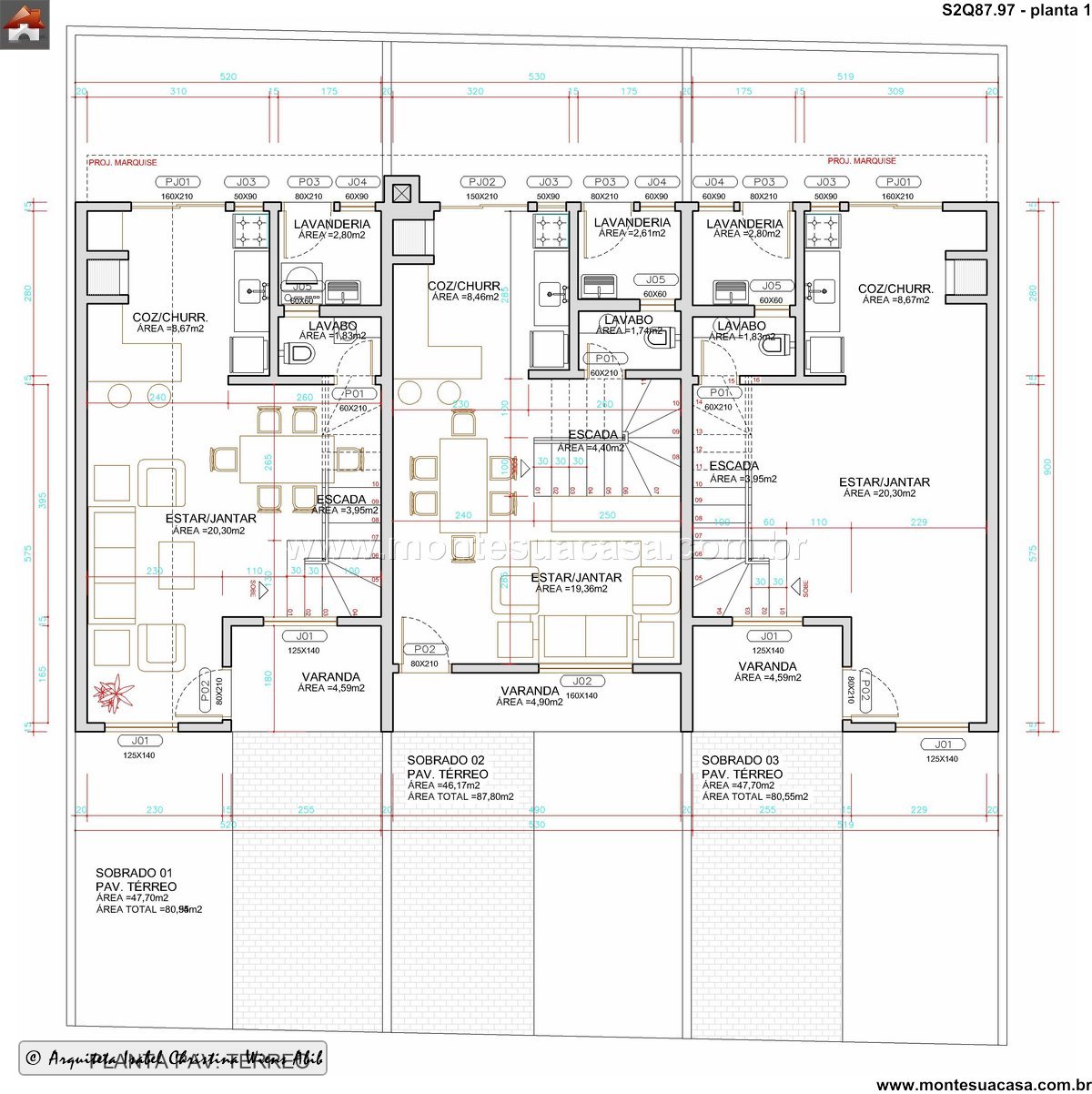
Este projeto reúne três unidades geminadas projetadas para otimizar cada metro do terreno de 16×16 metros. As unidades 1 e 3 possuem 80,55m² cada, enquanto a unidade central oferece 87,80m². A composição cria um conjunto compacto, funcional e visualmente coerente, ideal para quem busca densidade equilibrada, circulação eficiente e linguagem arquitetônica contemporânea.
Implantação inteligente e uso eficiente do térreo
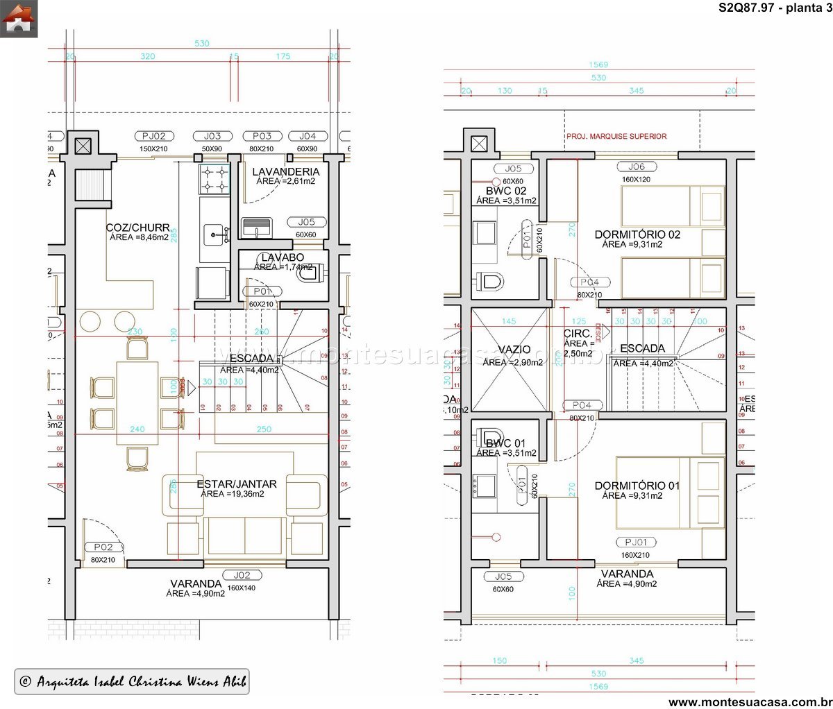
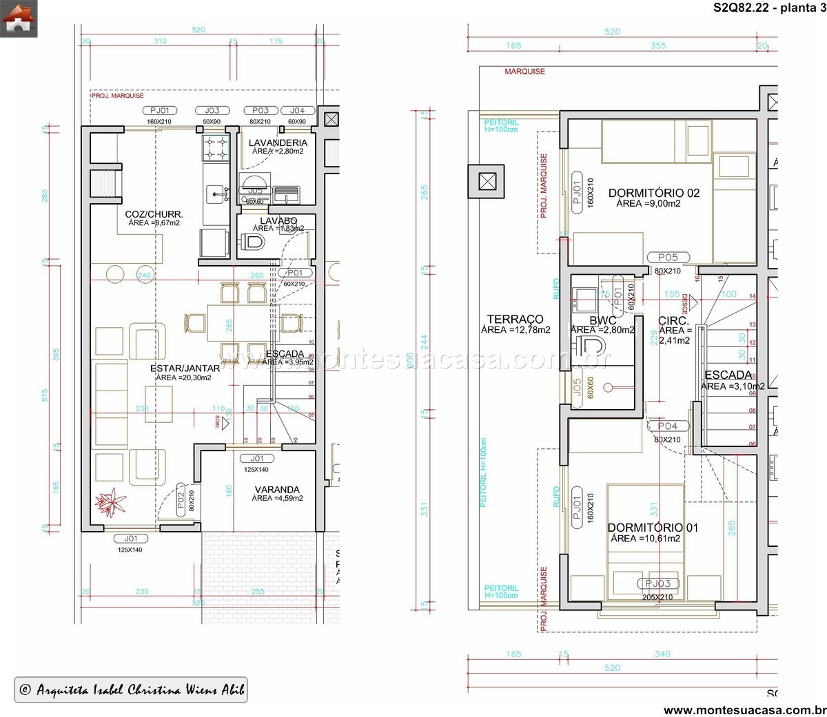
O pavimento térreo prioriza fluxo contínuo entre estar, jantar e cozinha gourmet integrada à churrasqueira. A transição direta para a varanda amplia a sensação de espaço e melhora o uso social. Cada unidade mantém lavanderia bem posicionada, lavabo de fácil acesso e escada centralizada para reduzir corredores e desperdício de área. As paredes geminadas foram calculadas para maximizar isolamento e minimizar interferências acústicas entre os sobrados.
Distribuição superior funcional com 2 dormitórios por unidade
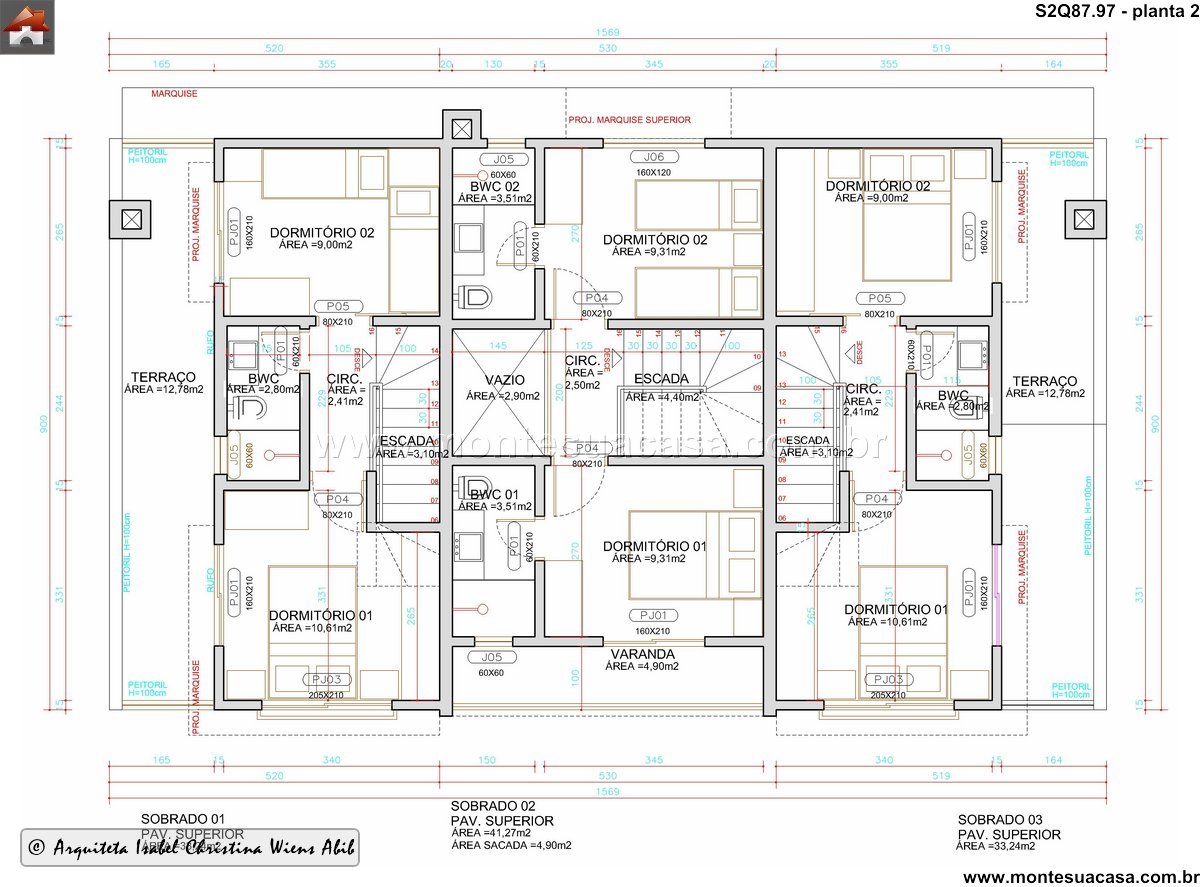
No pavimento superior, cada unidade inclui dois dormitórios e dois banheiros, garantindo conforto para famílias pequenas, casais ou investidores que buscam imóveis de locação. O dormitório frontal possui varanda privativa de 4,90m², favorecendo iluminação e ventilação natural. A unidade central recebe área levemente ampliada, mantendo simetria estrutural e reforçando o melhor aproveitamento interno. Os terraços laterais criam áreas externas úteis e valorizam a estética da fachada.
Arquitetura moderna com destaque para varandas e volumes limpos
A fachada utiliza linhas retas, guarda-corpo em vidro e volumes superiores marcantes. Os balanços geram proteção solar e reforçam a estética contemporânea. A composição final cria um conjunto harmônico e de forte apelo comercial. A planta foi dimensionada para terrenos urbanos compactos, permitindo excelente custo-benefício e rápida execução.
Projeto versátil para moradores ou investidores
O conjunto atende perfeitamente a quem deseja morar em unidades independentes ou investir em um triplex de aluguel com alto retorno. O layout facilita manutenção, garante privacidade entre vizinhos e mantém identidade visual elegante.












Avaliações
Não há avaliações ainda.