Descrição
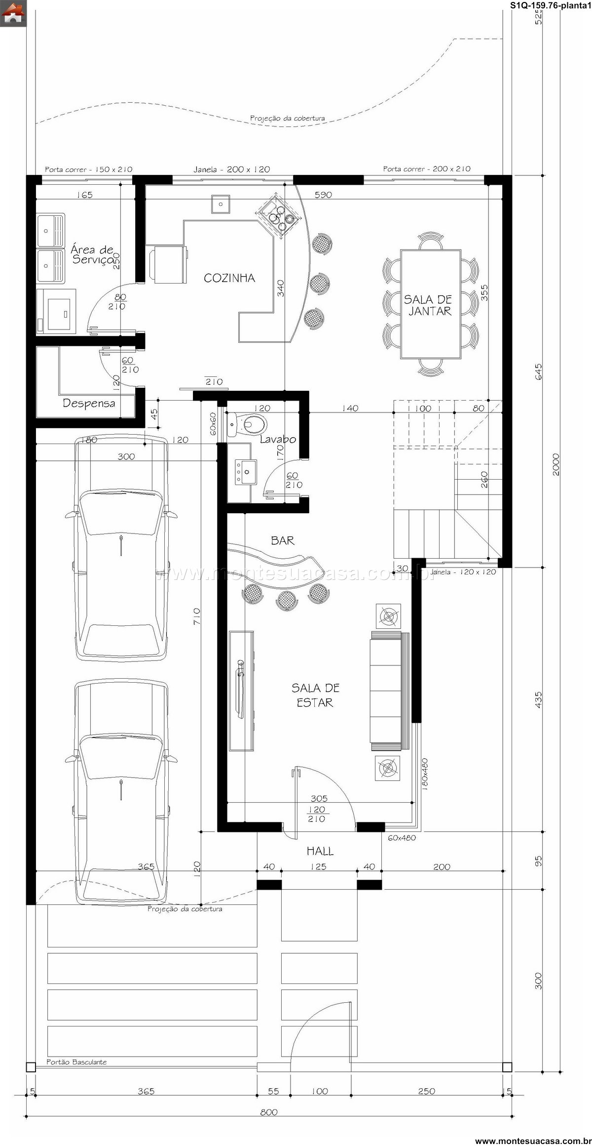
Este projeto de sobrado moderno de 225.39m² apresenta uma distribuição inteligente dos ambientes em dois pavimentos, criando uma harmoniosa separação entre as áreas social e privativa. A fachada, revela uma arquitetura contemporânea com linhas clean e elementos que conferem personalidade ao conjunto. A circulação vertical é resolvida de forma eficiente, conectando os espaços com praticidade e conforto para o dia a dia.
O pavimento térreo abriga a área social integrada, onde sala de estar, sala de jantar e cozinha se conectam visualmente, criando um ambiente amplo e convidativo para o convívio. A área gourmet se abre para a primeira sacada através de portas de correr de 200×210 cm, garantindo perfeita integração com o exterior e proporcionando excelente ventilação e iluminação natural. A cozinha conta com despensa e área de serviço anexa, assegurando total funcionalidade.
Suíte Master e Área Privativa
O pavimento superior é dedicado ao bem-estar e privacidade, abrigando uma generosa suíte master com closet planejado e banheiro privativo. A suíte possui acesso direto à segunda sacada, criando um refúgio particular para relaxamento. O escritório no andar superior oferece versatilidade, podendo funcionar como home office ou ambiente de leitura, complementado por um banheiro social de uso conveniente. Os guarda-corpos com 90 cm de altura nas sacadas garantem segurança sem comprometer a vista.
Integração e Conforto Térmico
A projeção da cobertura foi cuidadosamente estudada para garantir conforto térmico throughout todo o ano, enquanto as esquadrias em vidro maximizam a entrada de luz natural. O projeto utiliza materiais de qualidade que combinam durabilidade e estética refinada, resultando em um sobrado que oferece praticidade moderna e acolhimento. Cada detalhe foi pensado para criar um lar que equilibra sofisticação e funcionalidade em perfeita sintonia.










Avaliações
Não há avaliações ainda.