Descrição
Conceito e Estrutura do Sobrado
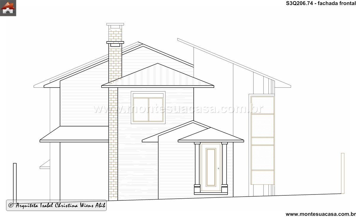
Este projeto arquitetônico apresenta um sobrado moderno distribuído em dois pavimentos, totalizando uma área construída de 206,74 m². O pavimento superior, com 93,92 m², abriga os ambientes íntimos incluindo três quartos, demonstrando um planejamento espacial eficiente e bem distribuído. A concepção arquitetônica prioriza a integração entre os volumes e a funcionalidade dos espaços, garantindo privacidade e conforto para todos os moradores. As fachadas frontal e posterior revelam uma linguagem contemporânea, com linhas clean e uma composição equilibrada de cheios e vazios que criam uma dinâmica visual interessante. O arquiteto desenvolveu esta proposta para atender às demandas de uma família moderna, buscando sempre a harmonia entre a forma e a função em cada ambiente.
Distribuição dos Ambientes e Conforto
A implantação do sobrado considera cuidadosamente a orientação solar e a ventilação cruzada, garantindo ambientes internos com ampla iluminação natural e renovação constante de ar. Os três quartos foram estrategicamente posicionados para oferecer privacidade e conforto acústico, enquanto as áreas sociais se integram de forma fluida. As aberturas estrategicamente planejadas nas fachadas permitem a criação de interessantes jogos de luz e sombra ao longo do dia, valorizando os espaços internos. Consequentemente, a residência estabelece uma conexão harmoniosa com seu entorno imediato, criando ambientes agradáveis e funcionais. Os materiais propostos para o exterior conferem personalidade e robustez à edificação, enquanto a paleta de cores complementa a linguagem arquitetônica contemporânea.
Integração de Espaços e Funcionalidade
A circulação entre os pavimentos foi cuidadosamente estudada para proporcionar praticidade no dia a dia, criando uma transição suave entre os ambientes sociais e íntimos. Cada um dos três quartos foi dimensionado para atender diferentes necessidades, incluindo um suíte master espaçosa e quartos secundários igualmente confortáveis. As áreas técnicas receberam atenção especial, garantindo eficiência operacional sem comprometer o design interior. A varanda e outros espaços de transição entre interior e exterior ampliam a sensação de amplitude dos ambientes. Este sobrado representa a perfeita união entre estética contemporânea e funcionalidade prática, criando um lar que atende tanto às necessidades atuais quanto futuras de seus moradores, com espaços versáteis e adaptáveis.










Avaliações
Não há avaliações ainda.