Descrição
Conceito e Distribuição dos Ambientes
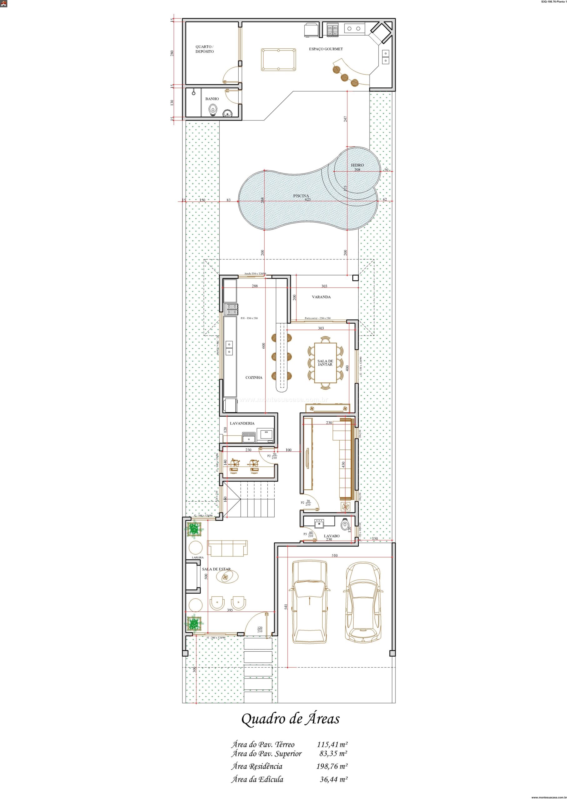
Este sobrado contemporâneo de 198.76 metros quadrados foi meticulosamente planejado para oferecer conforto e funcionalidade em dois pavimentos. A planta inteligente distribui os ambientes de forma a valorizar a privacidade da área íntima sem descuidar da integração dos espaços sociais. No pavimento térreo, a sala de estar se conecta perfeitamente com a área gourmet e a varanda, criando um amplo ambiente de convivência ideal para receber amigos e familiares. A circulação fluida entre os cômodos garante praticidade no dia a dia e um senso de amplitude. Os materiais e acabamentos propostos seguem uma linguagem moderna, com linhas retas e neutras que compõem uma atmosfera ao mesmo tempo aconchegante e sofisticada.
Conforto e Privacidade nos Dormitórios
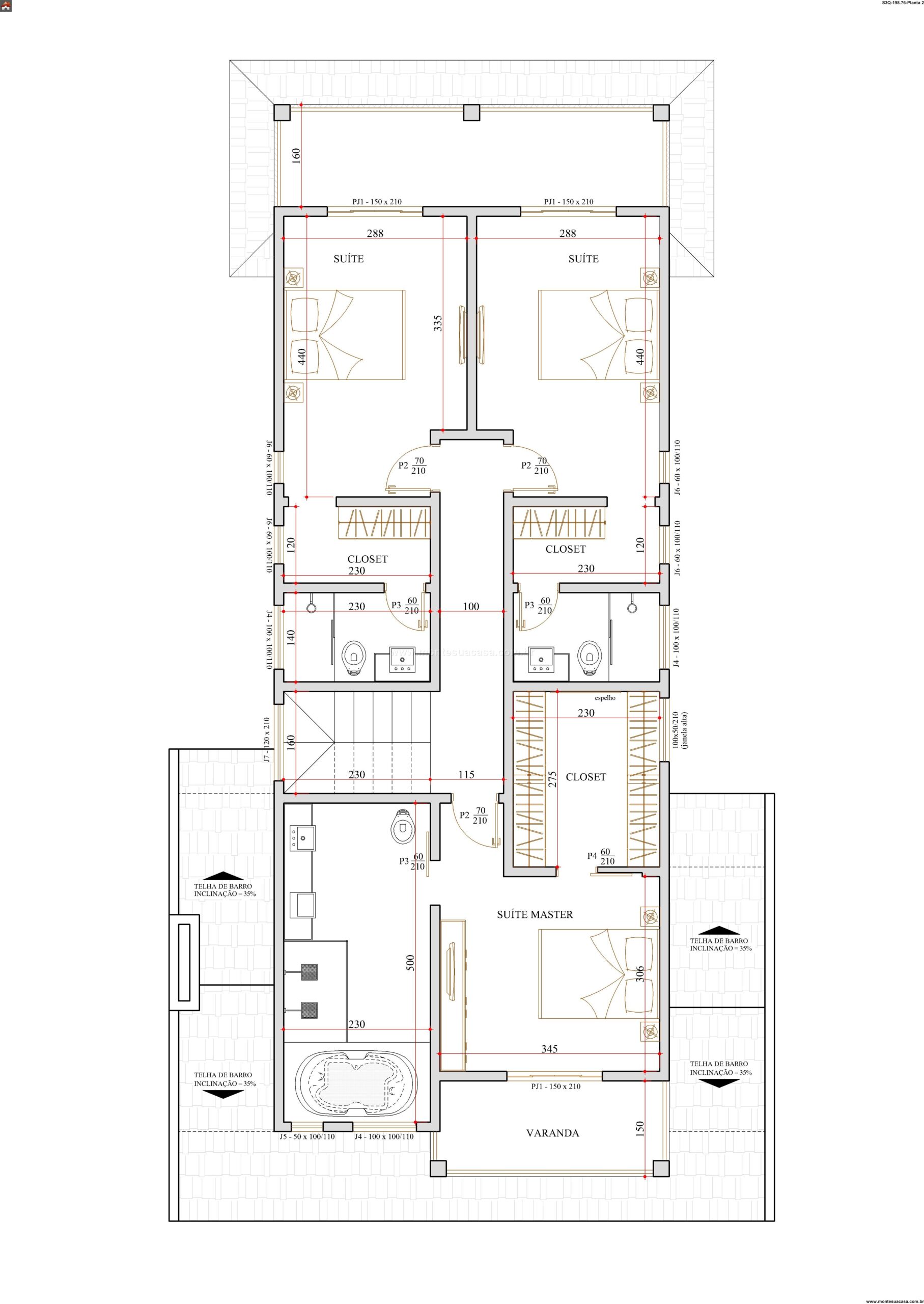
A área íntima, localizada no pavimento superior, foi estrategicamente posicionada para garantir máximo sossego. Este andar abriga três dormitórios, incluindo uma suíte master com dimensões generosas que oferece um refúgio pessoal completo. Os outros dois quartos, igualmente bem dimensionados, compartilham um banheiro social bem localizado. Todos os dormitórios são projetados para aproveitar ao máximo a iluminação e ventilação naturais, contribuindo para o bem-estar dos moradores. O layout assegura que os ruídos da área social não interfiram no descanso, criando um equilíbrio perfeito entre vida social e tranquilidade. Armários embutidos nos quartos maximizam o espaço e a organização.
Funcionalidade e Áreas de Serviço
A praticidade do dia a dia foi uma prioridade absoluta no desenvolvimento deste projeto. A área de serviço, compacta e eficiente, está convenientemente localizada no térreo, próximo à cozinha e ao acesso da garagem. Esta disposição facilita enormemente a rotina doméstica e o manejo de roupas e compras. A cozinha, integrada à área gourmet, foi projetada para ser tanto um local de trabalho funcional quanto um ponto de convívio. Sua bancada em ilha ou península serve como central de preparo de alimentos e também como uma bar descontraída. A garagem coberta completa a funcionalidade deste sobrado, que foi pensado para simplificar a vida moderna, unindo estilo, conforto e praticidade em cada detalhe de seus 198.76m².
















Avaliações
Não há avaliações ainda.