Descrição
Este projeto residencial de 198,23 m² se apresenta como um sobrado contemporâneo, ideal para famílias que buscam amplo espaço, conforto e uma distribuição inteligente dos ambientes. A arquitetura foi pensada para proporcionar privacidade aos dormitórios e uma área social generosa e integrada, perfeita para convívio. A fachada, disponível para visualização, complementa o conceito moderno da residência. Cada detalhe foi meticulosamente planejado para criar um lar que combina funcionalidade e estilo em um projeto de valor significativo.
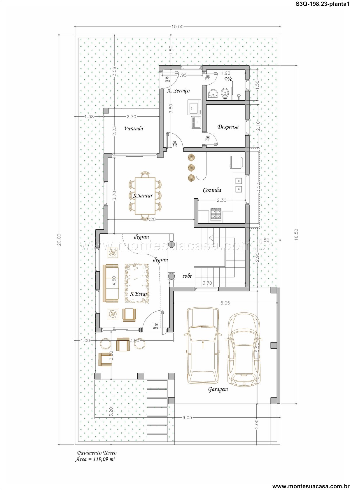
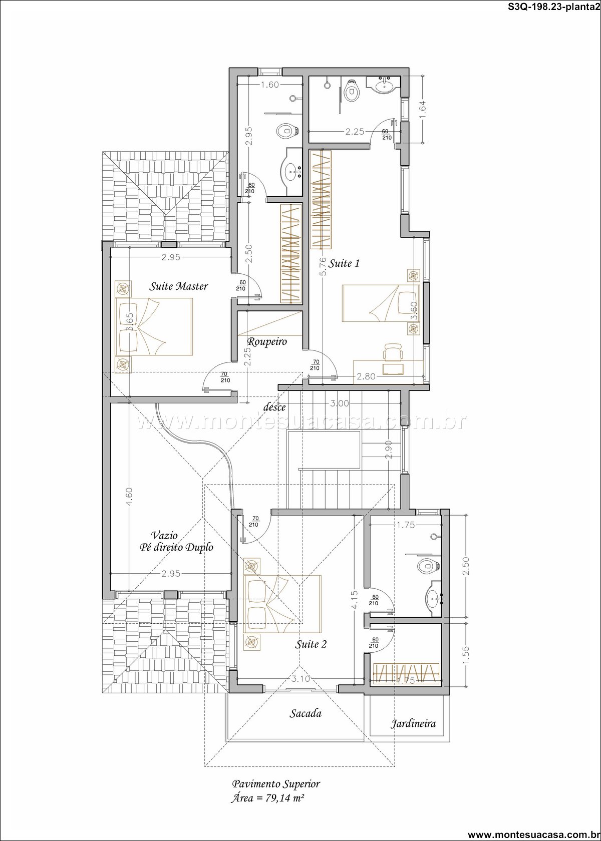
Distribuição e Layout dos Ambientes
O projeto distribui os ambientes em dois pavimentos, organizando os espaços de forma lógica e aconchegante. No pavimento superior, localizam-se os três dormitórios, garantindo um andar íntimo e tranquilo para os moradores. A suite master é um destaque, oferecendo um retiro privativo com roupeiro planejado. Os outros dois quartos proporcionam versatilidade para a família. A área técnica e as circulações são amplas, assegurando praticidade no dia a dia e uma sensação constante de conforto em todos os cômodos.
Características Arquitetônicas e Conforto
Uma das características mais marcantes deste sobrado é o pé direito duplo, que confere grandiosidade e sofisticação aos ambientes. Esse elemento arquitetônico amplia visualmente os espaços e melhora a iluminação e ventilação natural. A presença de uma jardineira permite um toque de natureza, possibilitando a criação de um jardim privativo. Com uma área total construída de 198,23 m², a residência oferece espaço mais do que suficiente para o lazer e o descanso de toda a família.
Integração e Estilo de Vida Familiar
A planta promove uma integração harmoniosa entre os ambientes, criando um fluxo contínuo que é ideal para o convívio familiar e para receber amigos. A área social integrada se torna o coração da casa, um espaço convidativo e funcional. O projeto é uma solução completa para um estilo de vida moderno, unindo a estética contemporânea à funcionalidade que uma família precisa. Este sobrado representa o equilíbrio perfeito entre espaço, privacidade e design inteligente.









Avaliações
Não há avaliações ainda.