Descrição
Projeto residencial moderno com varanda gourmet e sacada panorâmica
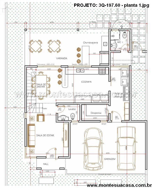
O projeto 3Q-197.60 é uma residência contemporânea de dois pavimentos, pensada para famílias que valorizam conforto, estética e funcionalidade. Com 197,60m² de área construída, esta casa oferece uma planta inteligente e bem distribuída, que privilegia a integração dos ambientes sociais e a privacidade dos espaços íntimos.
No térreo, o destaque vai para a ampla varanda gourmet com churrasqueira, ideal para momentos de lazer e confraternização. A sala de jantar conecta-se diretamente à cozinha e à sala de estar, criando um ambiente fluido e acolhedor. O lavabo e a despensa complementam a praticidade do dia a dia. A garagem coberta comporta dois veículos com acesso direto ao hall de entrada.
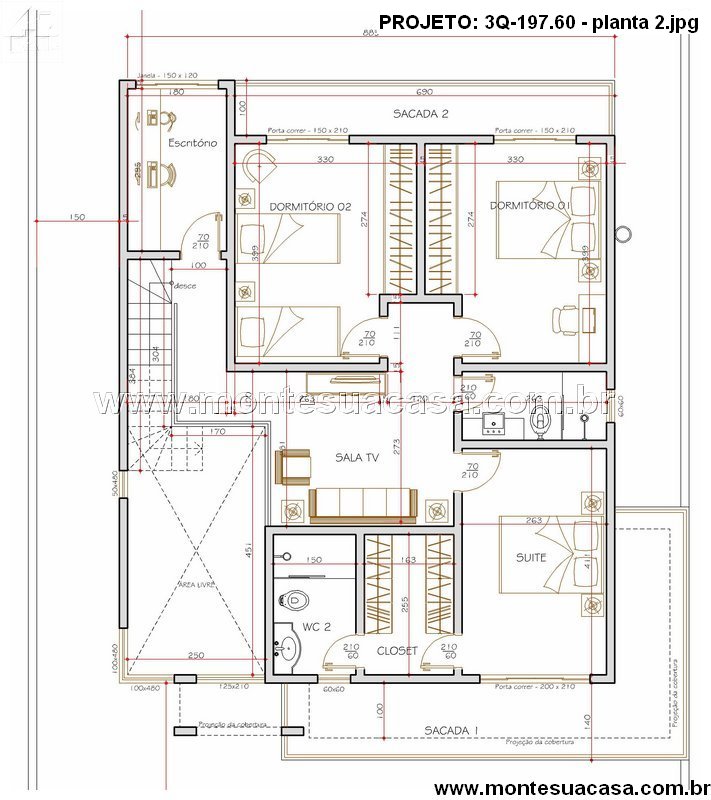
O pavimento superior abriga três dormitórios, sendo um deles uma suíte com closet e sacada privativa. Os outros dois quartos também contam com acesso à sacada e compartilham um banheiro completo. A sala de TV no andar superior proporciona um espaço adicional para relaxamento. O escritório, estrategicamente posicionado, oferece tranquilidade para o trabalho remoto ou estudos.
A fachada moderna combina volumes geométricos, revestimentos em pedra natural e grandes aberturas envidraçadas, que garantem iluminação natural abundante. O paisagismo valoriza o projeto com canteiros floridos, caminhos em pedra e áreas verdes que emolduram a construção.
Este projeto é ideal para terrenos urbanos e esquinas, aproveitando ao máximo a área disponível. A proposta arquitetônica equilibra sofisticação e funcionalidade, tornando-se uma excelente escolha para quem busca morar com estilo e qualidade.














Avaliações
Não há avaliações ainda.