Descrição
Conceito e Distribuição
Este sobrado de 195.16 m² se desenvolve verticalmente em três pavimentos, otimizando o terreno e criando uma clara divisão de funções. O projeto prioriza a luminosidade natural e a ventilação cruzada, criando um ambiente saudável e energeticamente eficiente. Cada andar foi meticulosamente planejado para atender às necessidades de uma família moderna, garantindo tanto momentos de convívio quanto de privacidade. A circulação fluida entre os ambientes é uma característica marcante deste projeto arquitetônico.
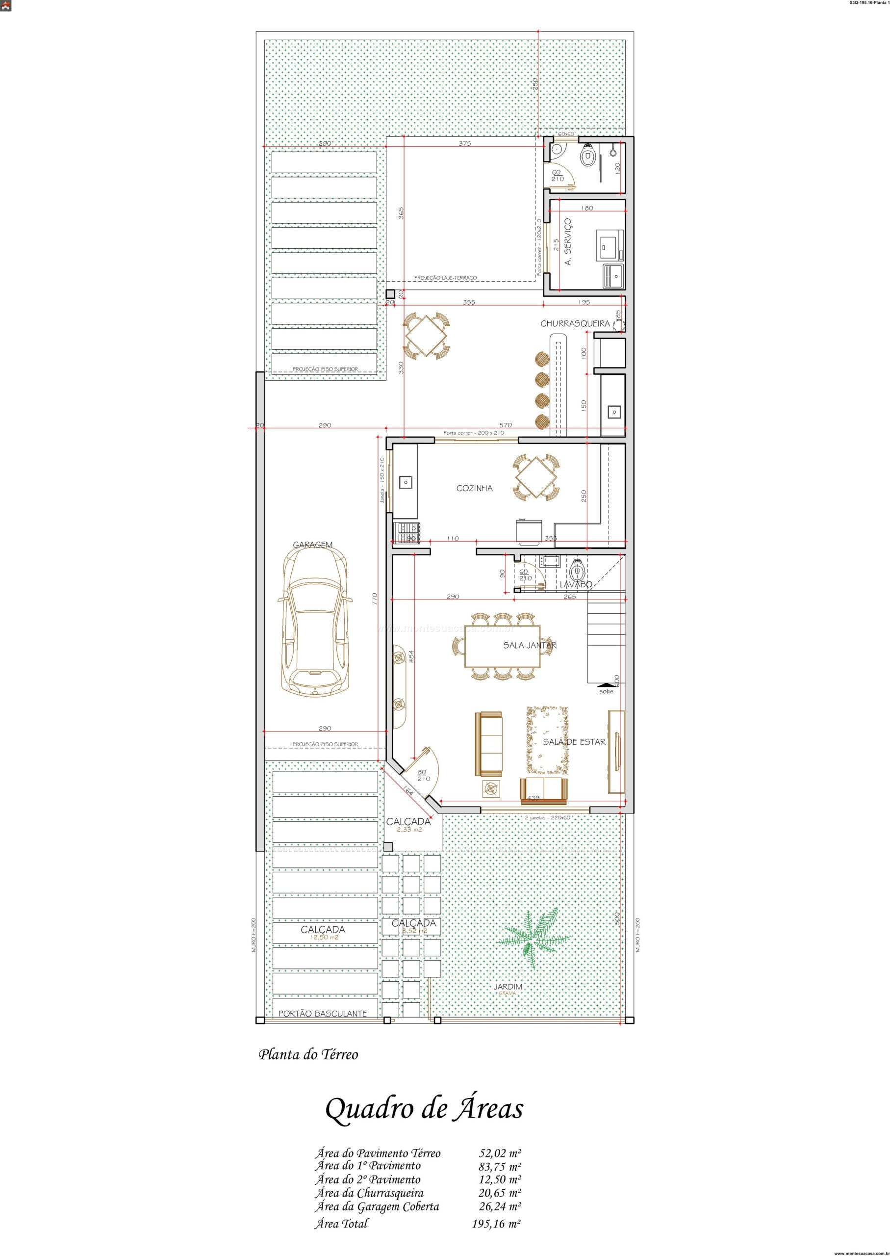
Pavimento Térreo e Áreas Sociais
O acesso se dá por uma generosa garagem coberta de 26.24 m². A área social do térreo, com 52.02 m², é integrada e convidativa. A churrasqueira, um espaço de 20.05 m², torna-se o coração das reuniões familiares e festas com amigos. Grandes portas de correr conectam a sala de estar e jantar a uma varanda, dissolvendo os limites entre o interior e o exterior. Este pavimento é dedicado ao lazer e ao entretenimento, promovendo uma vida social ativa e descontraída.
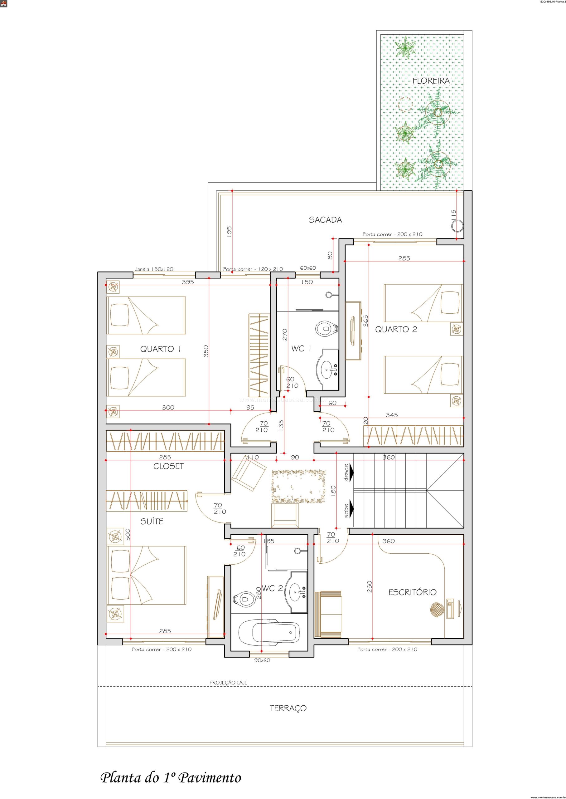
Primeiro Pavimento e Suítes
O primeiro pavimento, com 83.75 m², abriga a zona íntima da residência com três quartos, sendo uma suíte master com closet. Um escritório isolado oferece um ambiente silencioso para trabalho ou estudos. O segundo banheiro social atende os demais cômodos com praticidade. A sacada neste nível proporciona um refúgio privativo, ideal para desfrutar de momentos de tranquilidade. Os ambientes são organizados de forma a garantir conforto e funcionalidade para os moradores.
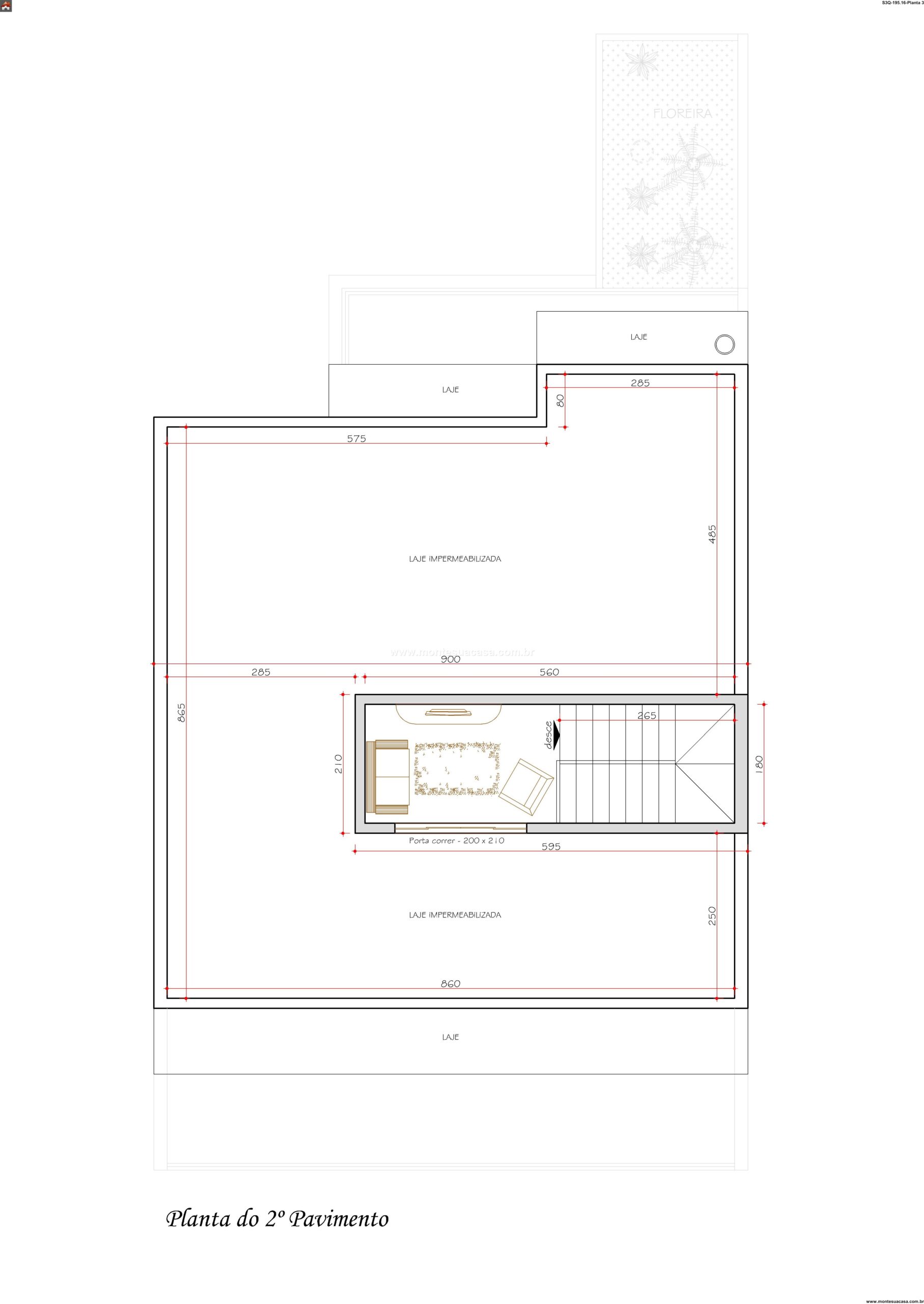
Segundo Pavimento e Lazer
O segundo pavimento, com 12.50 m², apresenta uma área de lounge intimista. Este espaço versátil pode ser adaptado como um home theater, uma biblioteca ou um local de descanso. A varanda superior oferece uma vista privilegiada do entorno. A laje inacabada proporciona uma oportunidade de personalização futura, permitindo que a família expanda a casa conforme suas necessidades evoluam. Este andar se torna um recanto personalizado dentro do sobrado.
Características Arquitetônicas
A linguagem arquitetônica é contemporânea, com linhas retas e volumes bem definidos. As grandes esquadrias de vidro maximizam a entrada de luz e ampliam visualmente os cômodos. O projeto valoriza os materiais em sua textura e cor natura, criando uma estética atemporal. A integração com o exterior é uma premissa fundamental do desenho. Cada detalhe foi pensado para combinar beleza estética com absoluta funcionalidade no dia a dia.






















Avaliações
Não há avaliações ainda.